全球設計風向感謝來自 鑫龍郡裝飾工程有限公司 的民宿項目案例分享:
項目位於廈門市同安區東北部,地處竹壩南洋風情景示範景區內。在設計之初,即定調為南洋風情、國貿文旅民宿示範單位,作為參觀接待及後期規劃樣板。
The project is located in the northeast of Tong’an District, Xiamen City, in the Nanyang scenery demonstration scenic spot of Zhuba. At the beginning of the design, it was set as a demonstration of Nanyang style, Home stay demonstration of ITG real estaet group, as a model for visiting reception and later planning.
原建築為自建民宅返租,結構及外觀都不能進行調整,因此在室內的設計上,盡可能的利用室內空間,以功能引導平麵。同時,要在緊迫的設計及施工時間內,盡量平衡設計效果及施工難度。
The building is a rural self built house, so the structure and appearance cannot be adjusted. the indoor space should be used as much as possible to guide the plane by function. At the same time, in the urgent design and construction time, try to balance the design effect and construction difficulty.
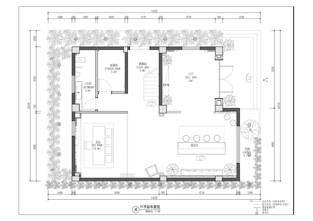
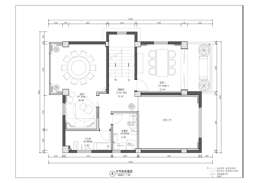
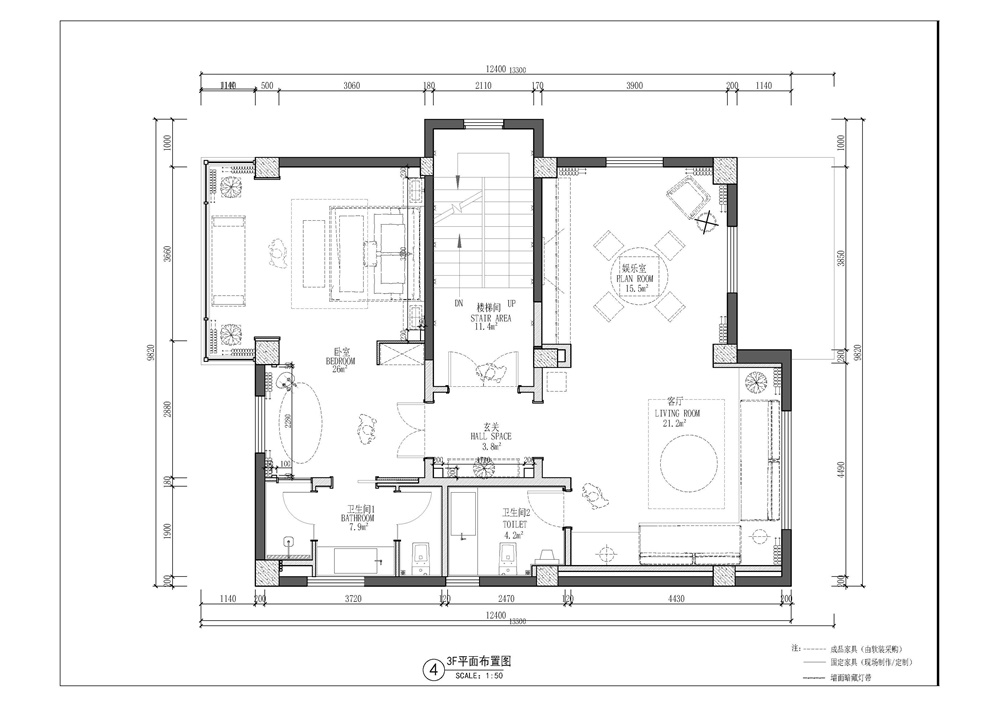
一層主要功能為接待茶室,其中一個茶室為了滿足私密需求,采用夾藤玻璃的折疊門做為區隔。二層為餐廳,且在挑空位置增加了牆麵開口,原本封閉的二樓與一樓空間產生了對話空間。三層為民宿示範套房,配置臥室及客廳,可以滿足私人接待及小型會議功能。
The first floor is reception teahouse. In order to meet the private needs, one teahouse adopts the folding door with rattan glass as the partition. The second floor is the dining room, and the wall opening is added in the empty position. The original closed second floor and the first floor space have a dialogue space. The third floor is a residential demonstration suite, equipped with bedroom and living room, which can meet the functions of private reception and small meetings.
客人在進入空間後,便能沉浸於營造的南洋風情之中,隔絕外部的繁雜。牆麵米黃色肌理與地麵花磚拚塊;竹編燈具與藤藝家具;隨著空間的不斷探索,能感受不一樣的體驗。
After entering the space, guests can immerse the Nanyang style and isolate the external complexity. Beige texture on the wall and tile on the ground; bamboo lamps and rattan furniture; with the continuous exploration of space, you can experience different experiences.
∇ 平麵圖
主要項目信息
項目名稱:廈門竹壩256民宿接待房屋
項目地點:廈門市同安區竹壩新村
項目麵積:約292.3平方米
開業時間:2019年8月
設計公司:鑫龍郡裝飾工程有限公司
主創團隊:肖光輝(主創設計師)、柯新琴、楊麗鵬、許寶洪、紀錦洋
項目攝影:周誌春
聯係郵箱:303891831@qq.com























