全球設計風向感謝來自 廣州尚逸裝飾設計 的別墅項目案例分享:
如濃稠的墨,如荒野的夜空,神秘低調的黑曜石,即使受強光照耀,也毫不驕縱,仍然保留著一股坐看風雲的穩重且高貴的雍容氣度。現陳列於紐約大都會藝術博物館的一條黃金與黑曜石製成的項鏈,被認為製作於公元前1810年至公元前1700年的埃及,惹人遐想。
設計師受神秘的黑曜石啟迪,將之與運籌帷幄的高淨值商務人士聯係起來。位於全國宜居城市珠海西湖濕地的保利天和“嶼墅”群組中,黑曜石別墅為麵積最大的一個。為突出其無與倫比的體量,設計師深度挖掘居住者的生活追求及品位所在,借黑曜石的品質感充分顯示空間的尺度和穩重,為居住者打造高端酒店、會所式度假湖居。
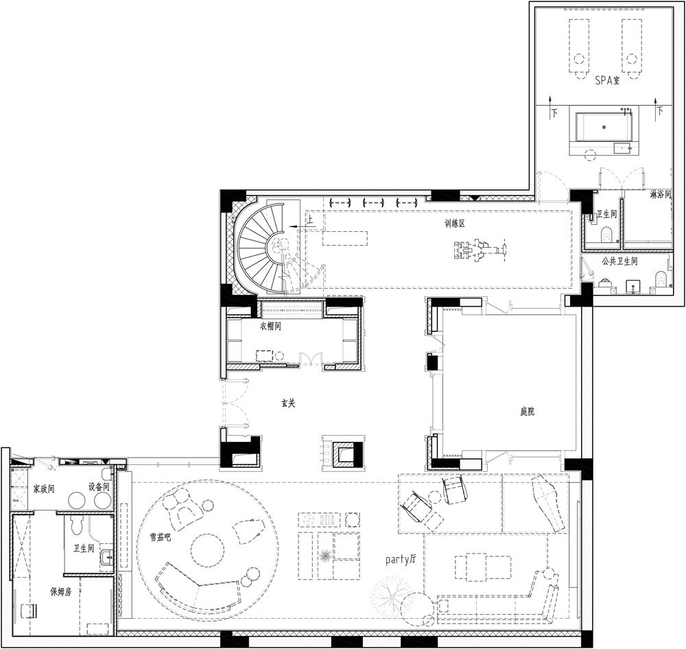
Basement
地下室作為整個別墅的最大特色,兼具了各項休閑度假的居家功能,體現出名副其實的奢華內涵。整個地下空間充滿藝術、時尚氣息,其本身就是一則精雕細琢的藝術品。
Δ 負一層平麵
會客廳分為雪茄區和Party區。Party區采用黑灰金紅四色的搭配,采用不同的紋路來豐富整個空間的視覺。高低錯落、造型別致的家具布置,連同兼具Mini吧的微型景觀區,大可廣邀好友,暢意派對。
雪茄區中,藝術設計感極強的家具或聚攏或分散,呈現適合密友輕鬆交談的舒適氛圍。
運動訓練區已經成為豪宅類豪宅的新型常駐標配。黑曜石別墅的運動訓練區十分寬敞,以黑金色調包裹,透露出別樣的力量感。
旋轉樓梯改為鋼結構以便塑造出更為輕盈的造型。參照跳水運動員跳水的姿態而創作的原創藝術作品《上善若水》分天地兩部分,借旋轉樓梯彼此呼應,遙遙相連。“天水”與“地水”的結合,平衡陰陽,包羅萬象。
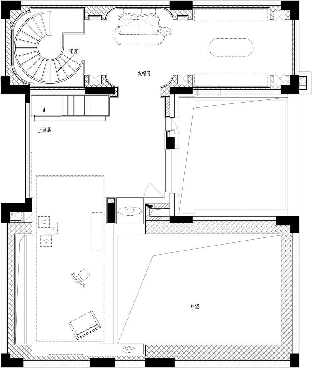
夾層專屬於女主人的瑰麗幻想,保留金色為主色調,采用專賣店、藝術畫廊的燈光布置的思路,與其他空間形成鮮明的對比,以強調其自身的獨特性,從而呈現出一個散發著高貴和奢華的藝術空間。
繪畫作品《洋流》離樓梯間最近,其上藍色繁雜的波紋象征海洋。流水彙聚,海納百川。粼粼波光象征著大海的波瀾壯闊,更象征著生命的力量和藝術。
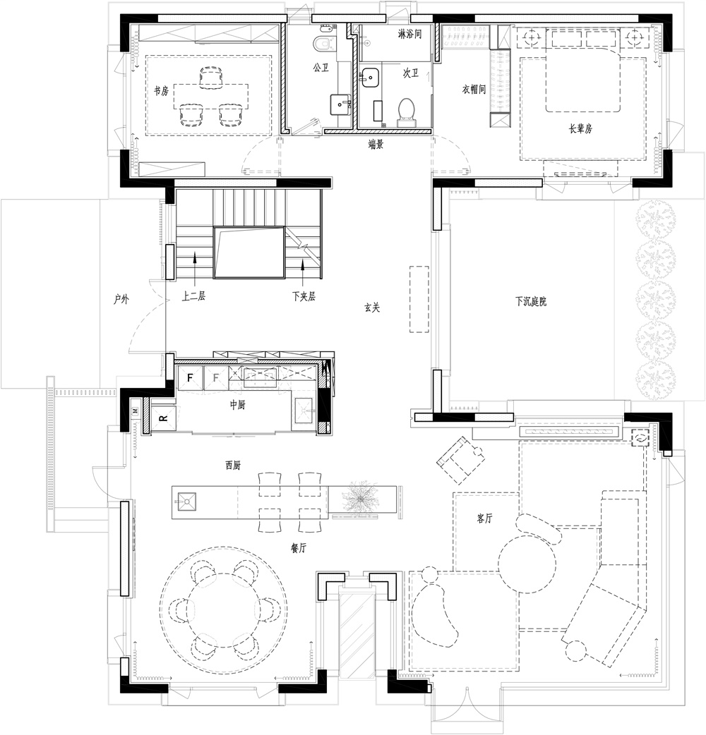
First Floor
樓梯間由格紋覆蓋,黑色的襯托下宛如定製西裝上細密的針腳。置於玻璃隔檔後的藝術陳設裝置,捕捉水滴將落的瞬間,雕塑的雙手虔誠合捧,凝固並升華那一刻的張力,虛實結合的設計頗有幾分神秘感,寓意靜水流深,寧和致遠。
首層客廳、餐廳均運用自帶獨特金屬光澤的黑曜石定義及襯托空間奢華氣質。複合回環的動線組合,力圖在動靜分離的空間之中創造豐富的交互和呼應,真正實現一步一景、借景入戶的豪宅級居住體驗。
空間各處隱藏式燈位設計令照明起到烘托氛圍的作用。采用酒店布燈方式重點照明,引導視線停留在裝飾元素上,從而營造富有情調氛圍的暗調體驗,烘托高貴神秘的特性。
中西廚的結合體現了高淨值人士的休閑度假的期許。餐廳結合中西廚,適用於多種使用場景,滿足主人隨心所欲為家人朋友烹調美食的需求。
Second Floor
寬敞的主臥擁有橫跨兩個開間的尺度。現代化大都會風格之下,空間多采用筆直銳利的線條,呈現出一種簡潔又不落俗套的幹練氣質。
若即若離的隔斷配合豐富而精準的照明手法,在點線麵之間創造出千變萬化的功能場景,更在無言中訴說著主人的個性和追求。
主衛中,設計打破陳規,將淋浴間與衛生間置於整個主衛的中央,覆以大理石作背景牆,又加黃銅金屬位塑造框架,創造出趣味性與時尚性兼具回環動線和視覺焦點。圍繞“中島”結構,再整合步入式衣帽間、洗漱台和浴缸區,令整個主衛突破固有的形製,煥發出全新的空間氣質。
兒童房在類似的“黑曜石”質感基礎上,以黃、綠詮釋寧靜、動感的氛圍,貼合兩個孩子截然不同的性格。
Opinion Of the Designer
設計大膽融入休閑度假、藝術運動的理念,綜合呈大都會風格下空間設計的張力,彰顯都市新貴神秘、高貴、銳利、幹練的一麵。賦予生活空間與品位空間不同的情趣,配以高級灰的主色調及皮革、石材等材料再現高端人士的生活場景。圍繞大麵積沉著,局部閃耀的設計思路,黑曜石別墅兼具低調、神秘和充滿格調的品質細節,充分顯示空間和主人的穩重和高貴。
那些與都市同步發展起來的新貴們,以一份深邃含蓄遊走在時代的前端,避鋒芒又保有自身的格調,憑石寄意,神秘奢華如同石頭中的脈絡,絲絲滲入生活的日常。
主要項目信息
項目名稱:珠海保利九洲天和三期嶼墅-黑曜石別墅
項目地址:珠海
室內設計:尚諾柏納空間策劃聯合事務所
項目麵積:885㎡
委托範圍:硬裝及軟裝設計
總設計師:王小鋒
設計團隊:王小鋒工作室
建築設計:上海尤安建築設計股份有限公司
景觀設計:杭州安道建築規劃設計谘詢有限公司
室內燈光顧問:廣州市冰燭照明設計有限公司
藝術顧問:廣州洛方藝術設計有限公司
拍攝團隊:一千度視覺
家具定製:佛山市銘思家具有限公司
尚諾柏納空間策劃聯合事務所(SNP)成立於2008年,以“源自生活·追求卓越”為設計理念,立足廣州,一直專注為房地產及商業地產提供專業空間設計、陳設藝術設計服務。
SNP聚集超過230名人才的多層次組合,SNP從設計、研發、生產、空間陳設、藝術設計等方麵,為客戶提供產業鏈整合的高品質專業設計及陳設藝術服務。SNP秉承內建築設計的概念,強調空間設計最重要的是考慮空間的關係以及空間與人的情感共鳴。



























































