全球設計風向感謝來自 廣東厚幾設計 的兒童商業空間項目案例分享:
設計的目的在於改變以往兒童上課父母等候的少兒體能培訓模式,創造一個親子共同運動的健康生活方式,因此我們為MILOGYM設計了一個既能滿足少兒培訓同時也為家長提供了一個可以共同運動的場所。
The purpose of the design is to change the previous physical training mode of children waiting for parents in class and create a healthy lifestyle of parent-child joint sports. Therefore, we have designed a place for Milogym that can not only meet the needs of children’s training, but also provide parents with a place for joint sports.
通過對品牌理念進行分析和深化,以健康科學體能育人的品牌精神為出發點,箭頭元素及斜坡屋頂作為設計元素,目的是營造出一個可以包含成人與兒童共同運動且溫暖如家的教學空間。
Through the analysis and deepening of the brand concept, starting from the brand spirit of Health Science and physical education, arrow elements and sloping roof as design elements, the purpose is to create a teaching space that can include adults and children to work together and be warm as home.
不同於其他類型的少兒培訓,在少兒體能課程的教學過程中,家長過多的幹預反而不利於形成兒童健康積極的活動性格,焦急的等待對於家長來說也是一種考驗,因此,在成人空間與兒童空間的邊界營造上,我們以品牌logo演變出基礎圖形應用在其中,以成人與兒童視線高差為依據調整圖像位置,使父母與兒童在各自空間活動的同時仍能保持一定的視線交流。創造出空間之間的趣味聯係。
Different from other types of children’s training, in the teaching process of children’s physical fitness course, parents’ excessive intervention is not conducive to the formation of children’s healthy and active activity character, and anxious waiting is also a test for parents. Therefore, on the boundary construction of adult space and children’s space, we use the brand logo to evolve the basic graphics to apply in it, with adults and children According to the height difference of vision, adjust the image position, so that parents and children can maintain a certain amount of vision communication while their own space activities. Create interesting connections between spaces.
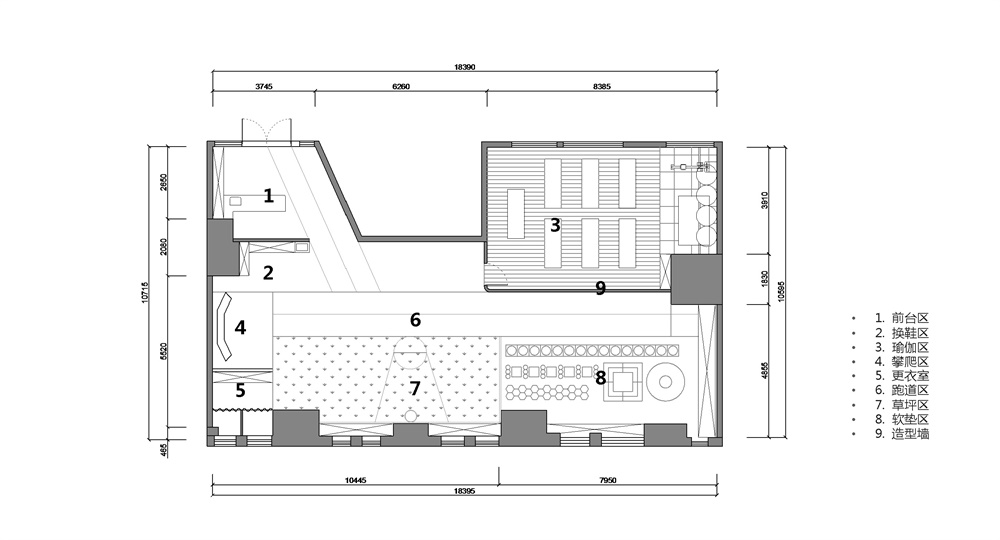
跑道區以明亮的黃色地膠為主要材料延伸至內部空間,既體現了品牌的運動特點又起到了視線引導的作用。
The runway area extends to the interior space with bright yellow glue as the main material, which not only embodies the sports characteristics of the brand, but also plays a role of line of sight guidance.
軟墊區可根據兩種麵積大小進行鋪設,不占用跑道區時需要用到28塊1200*600*50mm的兩折軟墊,需要更大麵積時可以40塊軟墊進行鋪設。40塊軟墊在不需要時都可收納在收納櫃中,保持空間整潔。
The cushion area can be laid according to two area sizes. When the runway area is not occupied, 28 pieces of 1200 * 600 * 50mm two fold cushion need to be used. When the larger area is needed, 40 pieces of cushion can be laid. 40 cushions can be stored in the storage cabinet when they are not needed to keep the space clean.
草坪區以環保綠色的人造草坪進行鋪設,並在草坪上針對不同的體育項目進行區域劃分,是兒童在進行鍛煉時獲得更加多樣化的體驗。
The lawn area is paved with green artificial lawn and divided into different sports areas on the lawn, which is a more diversified experience for children when they exercise.
∇ 平麵圖
∇ 品牌標誌
∇ 品牌標誌網絡製圖
∇ 海報標誌風格
主要項目信息
項目名稱:敏樂加少兒體適能培訓空間設計
設計方:廣東厚幾設計
聯係郵箱:951854501@qq.com
項目設計 & 完成年份:2020.2.4—2020.5.6
主創及設計團隊:盧伊揚、王鑠瀚、黃映境
項目地址:廣州海珠區寶崗大道宏宇同創彙A209
建築麵積:191.45㎡
攝影版權:廣東厚幾設計
Project name:Space design for children’s physical fitness training in Milogym
Design:Guangdong Hoji Design
Contact e-mail:951854501@qq.com
Design year & Completion Year:2020.2.4—2020.5.6
Leader designer & Team:Ivan Lu、Alvahanx Wang、Yingjing Huang
Project location:Hongyu tongchuanghui A209, Baogang Avenue, Haizhu District, Guangzhou
Gross Built Area (square meters):191.45㎡
Photo credits:Guangdong Hoji Design
廣東厚幾集團簡介:
厚幾集團是由萬達係高管創業群體發起的,聚集全國泛商業精英創業者共同組建的,針對商業地產全領域打造創業協作生態圈。































