這座麵積為5,000平方英尺的房屋和1,700平方英尺的後座房屋是為一對年輕夫婦設計的,坐落在1920年代帕洛阿爾托附近21,000平方英尺的平地上。 該建築以堅固的簡單構圖和高度細化的材料工藝為重點進行研究。該體量定義了固體和空間,捕捉自然光線,並將室內與景觀連接在一起,力求“從內部體驗室外”。
Designed for a young couple, the 5,000 sf home and 1,700 sf back house sit on a flat 21,000 sf lot in a 1920’s Palo Alto neighborhood. The architecture is a study in strong simple composition and highly refined materiality with an emphasis on craft. The massing defines solid and void, captures natural light, and connects the indoors with the landscape, seeking to ‘experience the outdoors from within.’
一層的體塊包裹著來自丹麥的細長的手工燒製的磚,強調了建築堅實地分布在地麵上的水平性。青銅飾邊的天花板在磚體之間滑動,從地板到天花板的玻璃開口被薄型的青銅框架捕捉。
The ground floor volumes wrapped in an elongated hand-fired brick from Denmark, emphasizing the horizontality of the architecture that lays solidly on the land. Bronze-trimmed ceiling planes slide between the brick masses, and floor-to-ceiling glazed openings are captured by thin-profiled bronze frames.
與地麵磚體形成對比的是,二樓覆蓋著不鏽鋼麵板和超大的鋁框窗戶。二樓的明亮度和開放度位於該地點的橡樹樹冠之間。在地下室,一個酒窖和品酒室通向一個下沉的庭院。一個30英尺x 10英尺的連續玻璃板與巨大的浮動石階樓梯相連,將房屋的三層連接起來。
In contrast to the grounded brick volumes, the second floor is clad in stainless steel panels and oversized aluminum-framed windows. The lightness and openness of the second floor is nestled among the oak-tree canopies of the site. At the basement level, a wine cellar and tasting room open to a sunken landscaped courtyard. A 30ft by 10ft continuous pane of glass runs alongside the grand stairwell of floating stone steps, connecting the three levels of the house.
在房屋內部,選擇了定製皮革門和青銅陽極氧化等材料,以彰顯其獨特的工匠風格品質。另一個定製設計的元素是鋼絲網,它包圍了廚房的隱私空間,將其與相鄰的公共“賓客接待”區域分隔開來。鋼製屏幕沿著嵌入柚木板條天花板的軌道滑動,縮回後消失在儲藏室裏。
Inside the house, materials such as a custom leather door and bronze anodized details were selected for their unique craftsman-style quality. Another custom-designed element is the steel mesh screen that wraps around to enclose the kitchen for privacy, separating this from the more public “guest hosting” areas adjacent. The steel screen slides along a track embedded into the teak slatted ceiling and disappears into the pantry when retracted.
∇ 爆炸分析圖
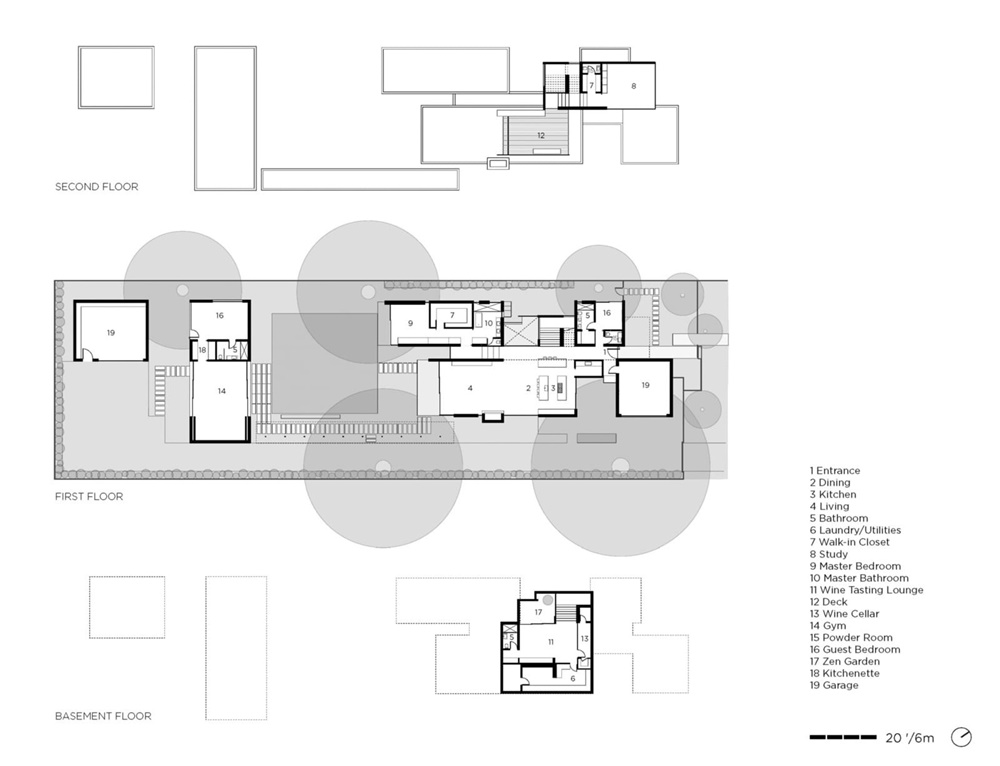
∇ 平麵圖
∇ 剖麵圖
∇ 立麵圖
∇ 詳圖
主要項目信息
項目名稱:Waverley House
項目位置:美國加州
項目類型:住宅空間/現代住宅設計
完成時間:2018
項目麵積:6740 ft²(約626㎡)
設計公司:Ehrlich Yanai Rhee Chaney Architects
室內設計:Kristi Will Home + Design
照明設計:DWP Lighting Design
總承包商:Matarozzi Pelsinger Builders
結構工程:GFDS Engineers
土木工程:Lea & Braze Engineering, Inc.
攝影:Amit Geron, Yahav Trudler

































