全球設計風向感謝來自 ZERSU 擇術空間設計 的民宿項目案例分享:
作為木夕美宿的創始人和設計方,對木夕美宿2.0(武隆店)自然是有更多的理解與期許。
項目沿襲木夕美宿1.0(新壹城店)的構成板塊,主要由咖啡廳和行旅客房兩部分組成,構建具有新鮮活力與舒適平和的都市體驗。
As the founder and designer of Muxi Misu, I naturally have more understanding and expectation of Muxi Misu 2.0 (Wulong Branch).
The project follows the composition of Muxi Misu 1.0 (Xinyicheng Store), which is mainly composed of a cafe and a passenger room to build a fresh, vibrant and comfortable urban experience.
建築開放的落地玻璃給人親切而開闊的舒適感,各個方位的采光保證了項目基礎體驗的質量。抬頭見山景,遠眺賞烏江,明亮而通透的窗外景觀和光影遊曳的曼妙毫無保留的裝進這個空間中,滿足了人對自然與純粹的向往,在這樣一個簡約的空間中,感受時間的靜止,享受唯美的意境。
The open floor-to-ceiling glass of the building gives a kind and open comfort, and the lighting in all directions ensures the quality of the basic experience of the project. Looking up at the mountains and admiring the Wujiang River in the distance, the bright and transparent window scenery and the grace of the light and shadow travel are unreservedly installed in this space, satisfying people’s yearning for nature and pureness. , Feel the stillness of time and enjoy the beautiful artistic conception.
牆麵水泥色質感塗料略帶粗狂,搭配上溫潤的木材盡顯溫馨,配以合適的材料輔助呈現出舒適自然的狀態,去除形式化裝飾,讓材料本身就成為一種美化,這樣卻讓整個空間有了張力和辨識度。
Wall cement color texture paint is a little rough, with warm wood to show the warmth, with suitable materials to help present a comfortable and natural state, remove formal decoration, so that the material itself becomes a kind of beautification, but it makes The whole space has tension and recognition.
木夕從來不僅僅是一個物理的空間,而是一個平易近人的場域,可以成為匆匆而過的路徑中人們願意停留的所在。
Muxi is never just a physical space, but an approachable field, which can be a place where people are willing to stay in the hurried path.
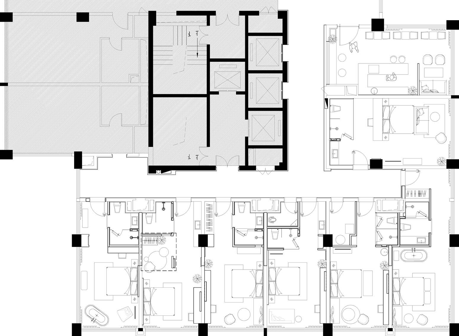
∇ 平麵圖
項目名稱:木夕美宿·重慶武隆
項目地點:重慶市武隆區榮融大廈12F
項目麵積:800㎡
室內設計:重慶擇術空間設計
設計團隊:黃雀 張楚
完成年份:2020.04
攝影攝像:黃小豔






































