建築局Pranala Associates已在印度尼西亞爪哇島萬隆郊區實施了一個私人住宅項目。麵積為462平方米的現代別墅,可讓您閉上眼睛就能聽見寂靜的聲音,感受柔風的吹拂,享受自然光,感受材料,欣賞周圍風景如畫的自然。建築師希望房子能夠愈合並給人一種寧靜的感覺。
這套三居室別墅位於湖邊,是一對年邁的夫妻的家,能為整個大家庭和朋友聚集提供足夠的空間。
房屋被四周的牆壁封閉,從正門到庭院有一條人行道,人行道上鋪有混凝土磚,並以一棵常綠的樹做點綴。該建築的特點是完美地結合了機械加工的鑄造混凝土,拉絲鋼支架和鐵木天花板。
日式屋頂突出了細長的懸挑,並用鋼結構加固。該住宅的總體設計包括兩棟相互連接的建築,建築具有傾斜的屋頂,帶有辦公功能的平屋頂空間以及一個開放的停車場。所有空間的整體順序已針對當地氣候進行了優化,從而最大程度地減少了日常維護和昂貴的空調需求。
左邊的建築包括兩間在第一層設有浴室的客房,以及一間在第二層設有浴室和陽台的主臥。右邊的建築是一個單層開放式空間,包括廚房,飯廳和客廳,該空間進入一個開放式露台,並設有一個四米高的頂篷,設計師希望將湖景定格,並產生一種漏鬥效應,將景觀引到室內。
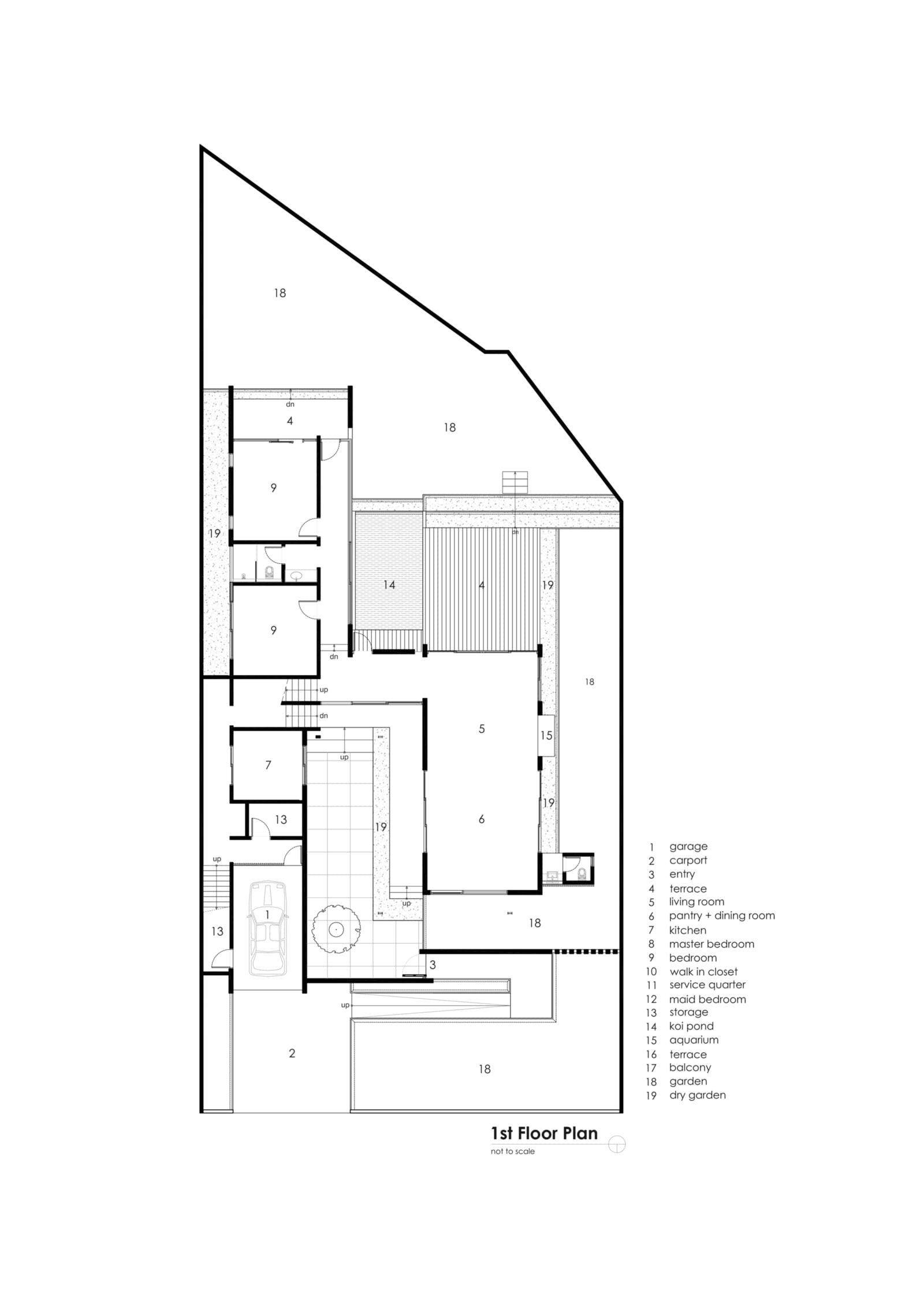
∇ 一層平麵圖
∇ 二層平麵圖
∇ 頂層平麵圖
版權聲明:本站所有文章除投稿授權發布外,其他文字內容均為原創,享有著作權保護,未經許可不得以任何形式進行轉載(包括且不限於:媒體、網站、公眾號等)。所有項目照片/設計圖形版權歸原作者所有。本站部分內容源自網絡公開資源或用戶分享,如若侵犯了原作者的合法權益,可聯係我們進行處理。










































