全球設計風向感謝來自 上海嚴暘建築設計工作室 的商業空間項目案例分享:
一個複合型開放空間、微型的立體社區…
A comprehensive open space, micro three-dimensional community…
00 項目背景 Project Background
京津冀協同發展戰略上升為中國國家戰略後,北京非首都功能向外疏解,服裝批發及服裝加工業首當其衝。滄州東塑集團利用滄州地域優勢投資興建了明珠商貿城和明珠國際服飾產業特色小鎮項目。全產業鏈承接了北京服裝產業疏解,並在承接基礎上進行服裝產業轉型、升級,試圖打造一個集設計研發、生產加工、批發零售、倉儲物流、電子商務、娛樂休閑為一體的全新商業運營模式。
After the Beijing-Tianjin-Hebei Integrated Development Outline Plan was upgraded to China’s national development plan, Beijing’s non-capital functions have been transferred outwards, with the clothing wholesale and processing industries bearing the brunt. Under such background, Cangzhou Dongsu Group took advantage of Cangzhou’s geographical advantages to invest in the construction of Mingzhu Trade City and Mingzhu International Clothing Industry Characteristic Town. The whole industry chain has undertaken the pressure from Beijing’s Clothing Industry and even transformed and upgraded on top of it, trying to create a new business operation model that integrates design and development, production and processing, wholesale and retail, warehousing and logistics, e-commerce, entertainment and leisure.
本案位於滄東經濟開發區明珠國際服飾產業特色小鎮內,項目已全麵啟動,承接了北京服裝業的研發、設計、加工、銷售全產業鏈,同時自己也建立了服裝研究院、服裝設計院。在承接北京服裝產業轉移上,滄東開發區優勢明顯,這裏有大片未利用與開發的鹽堿地,交通也很便利。整個小鎮以時尚產業為主導,以服裝智造產業為主要切入點及定位特色。希望形成集產業聚集與服務、產業園區開發、服裝設計研發、麵輔料一站式采購、金融服務、物流服務、營銷服務、品牌塑造、會展服務等於一體的專業服裝產業集群。
This project is located in the Mingzhu International Clothing Industry Characteristic Town of Cangdong Economic Development Zone. The project has been fully launched. It has undertaken the entire industrial chain of R&D, design, processing, and sales of Beijing clothing industry. At the same time, it has also established a clothing research institute and a clothing design institute. Cangdong Development Zone has obvious advantages in this process because there is a lot of unused and undeveloped saline land and it has very convenient transportation. The entire town is dominated by the clothing industry featuring the smart manufacturing. The goal is to form a professional clothing industry cluster that integrates industry aggregation and services, industrial park development, clothing design research and development, one-stop sourcing of materials and accessories, financial services, logistics services, marketing services, branding, and exhibition services.
∇ 項目原貌 © y.ad studio
01 適當設計原則 Proper Design Principles
初次勘查場地業主方帶我們勘查現場,並順便考察了已經完工的工程。表達了希望不要像過往房地產工程那樣的方式依靠大量裝飾手法及貴重材料堆砌的方式去營造空間及場景的意願。也不希望將建築當成“網紅打卡點”或“地標”的方式去製造那種刻意的形式感及空間感去達到吸引眼球及關注的目的。希望以實際使用機能及現實狀況為出發點去建造,回歸使用機能。同時不要過於追求材質的極致及工藝的極致,順勢而為。寄托於設計、美感、空間氛圍來創造空間。並希望以此建築為“原點”為整個園區創造一處開放、友善、自然、具有吸引力的綜合型公共交流、休閑、展示空間,向整個產業園區進行擴散及延伸。這些想法與工作室一直以來堅持及踐行的“節儉憂患、克製、融合、追求真實、日常、自然美感的準則及以實際情況為出發點進行適度設計”的理念及設計習慣不謀而合。
In the initial site survey, the client took us to the site and some completed projects. The client was against relying on too much purely decorations or expensive materials to create spaces and scenes like some other typical real estate projects. They did not want us to deliberately build an “internet-famous spot” or “landmark” by creating catchy architectural form or spaces. Instead, the client team hoped us to approach the design based on functionality and actual situations while avoiding excessive pursuit of perfectionism of materials or craftsmanship. We were asked to figure out an appropriate solution, and to define the space through the design, aesthetic and atmosphere. They also imagined this building as a “starting point” to create an open, friendly, natural and attractive public space for communication, leisure and exhibition, which can then extend to the entire industrial park. These ideas are perfectly aligned with the design philosophy of our studio. We adhere to and practice the design principles of “staying thrifty, restraint and integrated, pursuing reality, daily life and natural beauty, and ensuring proper design based on actual conditions”.
02 開放空間/立體社區 Open Space/ Three-dimensional Community
地塊西南角已有一棟建築物作為研發及辦公空間在使用。所以原本方形的地塊缺了一角呈L型狀。我們在整體規劃時,不僅要考慮這棟具有鮮明形式感的建築物與新建建築之間的關係,同時還需考慮兩個建築之間的動線與關聯。由於西南角建築體量和高度都不小,從整體體量關係上我們將最高的建築體設置在對應的東北角上,以此來平衡整個建築群之間的形態。
There was an existing R&D office building in the southwest corner of the site, which had re-shaped the site from the original square to an L-shaped one. Therefore, we needed to not only consider the formal relationship between the existing building and new buildings, but also take care of the circulation between them. Since the volume and height of the existing building are not small, we placed the tallest volume in the corresponding northeast corner to balance the overall architectural form of the entire building cluster.In terms of spatial organization, we stacked the functional spaces, living communities and supporting services with an open entry as connection. We intended to create a three-dimensional composite space, where commercial, exhibition, working, living and leisure functions can be integrated into one so as to achieve an ideal scenario of coexistence.
∇ 設計手稿 © y.ad studio
∇ 形體分析圖 © y.ad studio
在功能空間分布上我們將使用功能、生活社區與配套服務進行疊加,以開放的進入方式進行串聯,試圖創造出一個立體的複合型空間,將商業、展示、工作和居住、生活、休閑功能融為一體,達到共存並置的理想狀態。
∇ 功能軸側分析圖 © y.ad studio
∇ 軸側圖 © y.ad studio
∇ 景觀軸側圖 © y.ad studio
∇ 南立麵 ©Peter Dixie(英)/洛唐建築攝影
∇ 東立麵 ©Peter Dixie(英)/洛唐建築攝影
∇ 北立麵 ©Peter Dixie(英)/洛唐建築攝影
∇ 北立麵多功能活動區 ©Peter Dixie(英)/洛唐建築攝影
∇ 北入口廊道 ©Peter Dixie(英)/洛唐建築攝影
∇ 北立麵沿街商鋪 ©Peter Dixie(英)/洛唐建築攝影
∇ 南立麵設計師工作室、麵輔料圖書館 ©Peter Dixie(英)/洛唐建築攝影
∇ 東立麵設計師工作室、麵輔料圖書館 ©Peter Dixie(英)/洛唐建築攝影
∇ 西入口廊道空間 ©Peter Dixie(英)/洛唐建築攝影
∇ 西入口連續散步道 ©Peter Dixie(英)/洛唐建築攝影
∇ 從景觀水池中看向酒店/公寓樓 ©Peter Dixie(英)/洛唐建築攝影
∇ 公寓局部 ©Peter Dixie(英)/洛唐建築攝影
03 內向院落/虛實轉換 Inward Courtyard / Solid vs. Void
為了避免將整個建築做的體量過於龐大,我們試圖通過體塊的錯位穿插與高低錯落的組合方式來構築空間的構成元素,同時在體塊與體塊之間形成大量庭院與呼吸空間。通過虛與實的轉換作為空間敘事脈絡,用灰空間將不同的功能建築主體與庭院空間形成自然過渡。
To avoid making the whole building cluster too bulky, we tried to construct the space through stagger and intersection of volumes and meanwhile, create many courtyards and open spaces between the building masses. The shift of the solid and void functions as the thread of the spatial narrative, and the in-between spaces enable natural transition between different functional blocks and courtyards.
∇ 連續步道向內庭院視角 ©洛唐建築攝影
∇ 從景觀水池望向連續步道 ©Peter Dixie(英)/洛唐建築攝影
∇ 連續步道望向多功能活動空間 ©Peter Dixie(英)/洛唐建築攝影
∇ 多功能活動空間外立麵 ©Peter Dixie(英)/洛唐建築攝影
∇ 植物生長樹洞 ©Peter Dixie(英)/洛唐建築攝影
∇ 植物生長庭院 ©Peter Dixie(英)/洛唐建築攝影
∇ 景觀水池望向麵料圖書館/設計師工作室 ©Peter Dixie(英)/洛唐建築攝影
∇ 傍晚時分下的麵料圖書館/設計師工作室 ©Peter Dixie(英)/洛唐建築攝影
∇ 從內庭院看智能工坊 ©Peter Dixie(英)/洛唐建築攝影
∇ 廊道中的呼吸空間 ©Peter Dixie(英)/洛唐建築攝影
∇ 廊道空間 ©Peter Dixie(英)/洛唐建築攝影
04 結構感與光影 Light, Shadows and Structure
真實是整個設計中想要貫徹的一個重要理念。不過度裝飾追求材質與空間真實呈現,從前期功能配置到實際建造盡可能的清晰,避免拆改與反複造成浪費。從選擇清水混泥土這種低調與樸素的材料來建築開始,也是想避免做過多的裝飾麵從而可以達成一次成型。由於建築室內外整體設計,在各個專業上都盡可能做到融合,各專業、結構與建築都統一集成。用近乎裸露的方式將結構美感與實際力學融合,同時通過製造光影來塑造空間。
Reality is an important concept that we wanted to implement throughout the design. We abandoned the excessive decoration and pursued the true presentation of materials and spaces. We also tried to make sure the process was as clear as possible from the functional space distribution in the early stage to the final construction to prevent waste from modification or duplication. Starting from selecting simple and modest materials such as fair-faced concrete, we also wanted to avoid too many decorative surfaces so that one-time molding can be achieved. Due to the overall design of the interior and exterior of the building, different types of professions, like structure, MEP and architectural design, can be integrated as much as possible. The structure is almost completely exposed to display its beauty. Natural light and shadows also help shape the space.
∇ 設計手稿 © y.ad studio
∇ 光影下的廊道空間 ©Peter Dixie(英)/洛唐建築攝影
∇ 光影下的廊道灰空間 ©Peter Dixie(英)/洛唐建築攝影
∇ 設計師工作室中庭空間 ©Peter Dixie(英)/洛唐建築攝影
∇ 多功能活動空間 ©Peter Dixie(英)/洛唐建築攝影
∇ 多功能活動空間鋼結構屋頂 ©Peter Dixie(英)/洛唐建築攝影
∇ 多功能活動空間階梯 ©Peter Dixie(英)/洛唐建築攝影
∇ 內向透光的玻璃盒體 ©Peter Dixie(英)/洛唐建築攝影
∇ 中央樹陣與廊道 ©Peter Dixie(英)/洛唐建築攝影
∇ 連續步道上看多功能活動空間 ©Peter Dixie(英)/洛唐建築攝影
∇ 設計手稿 © y.ad studio
∇ 設計剖麵圖 © y.ad studio
∇ 酒店空間中庭及樓梯 © y.ad studio
05 技術圖紙
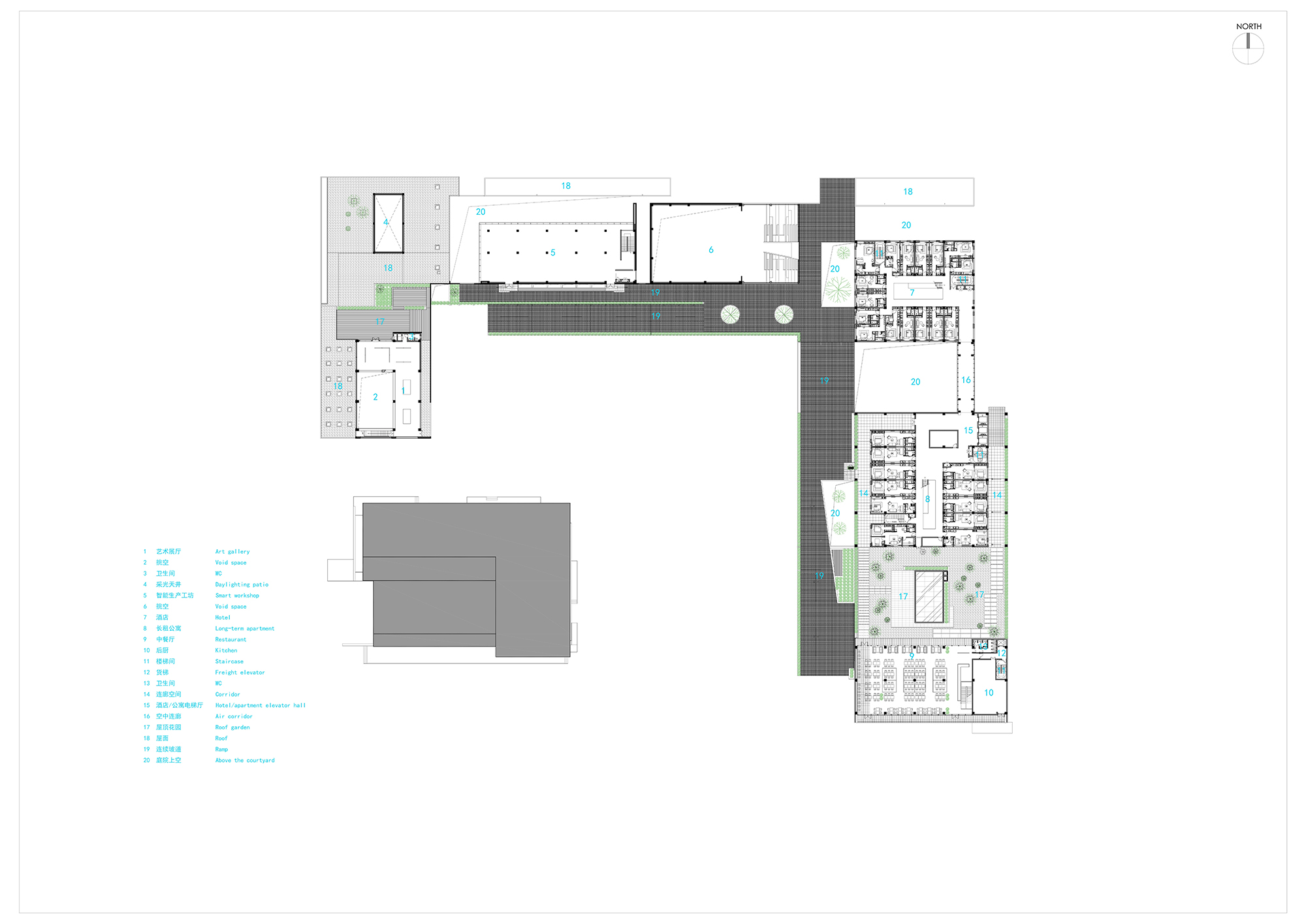
∇ 1F設計平麵圖
∇ 2F設計平麵圖
∇ 3F設計平麵圖
∇ 剖立麵圖
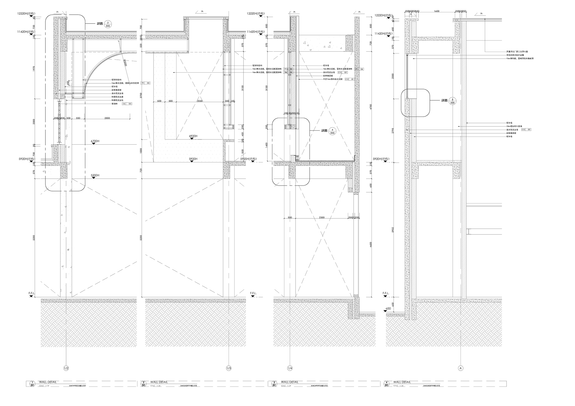
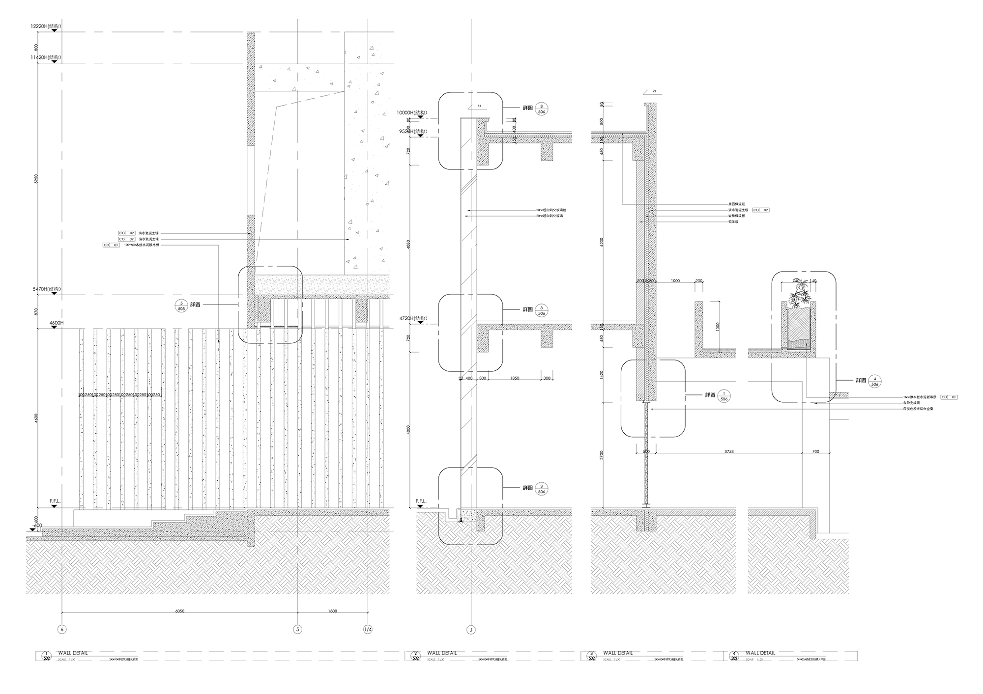
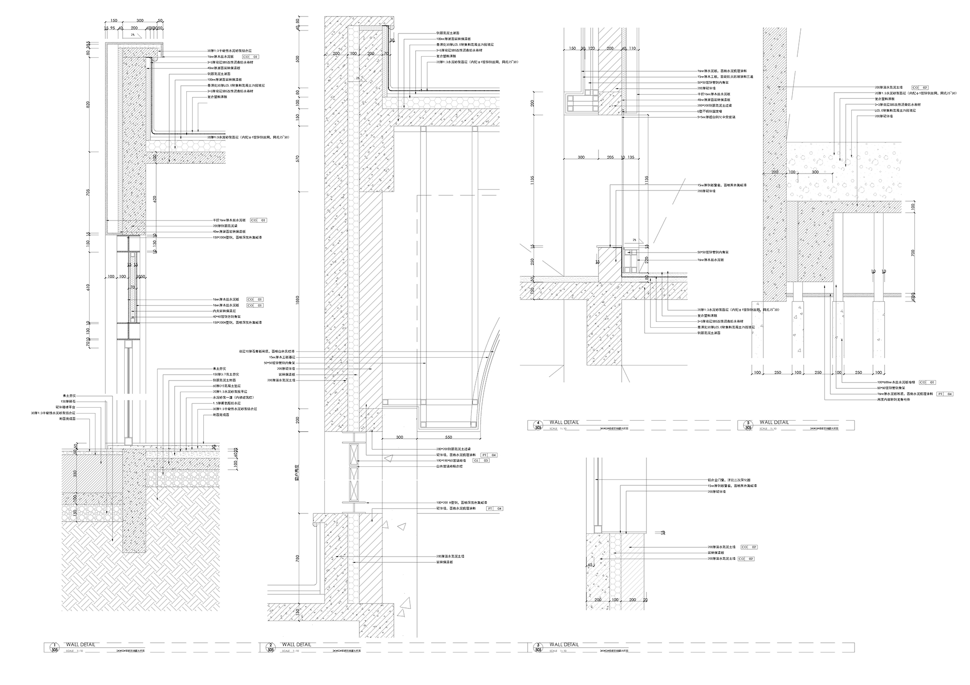
∇ 節點詳圖
項目信息
項目名稱:滄州明珠國際服飾生態新城會客中心
項目地址:中國河北省滄州市滄東開發區黃河道與齊雲路交叉口
建設單位:河北明珠服飾文化有限公司
項目麵積:26666.8平方米
建築設計:y.ad studio I上海嚴暘建築設計工作室(www.sh-yad.com)
室內設計:y.ad studio I上海嚴暘建築設計工作室
景觀設計:y.ad studio I上海嚴暘建築設計工作室
燈光設計:y.ad studio I上海嚴暘建築設計工作室
項目團隊:嚴暘、賀茂峰、嚴昱
施工圖設計:河北晶程建築設計有限公司
鋼結構設計:霍振忠
主要材質:清水混凝土、黑洞石、木絲水泥板、竹鋼板、水磨石磚
設計時間:2018.12-2019.06
建造時間:2019.05-2020.05
攝影:Peter Dixie(英)/洛唐建築攝影
Project name: Cangzhou Mingzhu International Clothing Industry Characteristic Town’s Service Community
Location: Intersection of Huanghe Road & Qiyun Road, Cangdong Economic Development Zone, Cangzhou City, Hebei Province, China
Client: Hebei Mingzhu Garment Culture Co., Ltd.
Project area: 26,666.8 square meters
Design firm: y.ad studio (www.sh-yad.com)
Design scope: Architecture, interiors, landscape, lighting
Design team: YAN Yang, HE Maofeng, YAN Yu
Construction drawings: Hebei Jingcheng Architectural Design Co., Ltd.
Steel structure design: HUO Zhenzhong
Main materials: Fair-faced concrete, black travertine, wood cement board, laminated bamboo panel, terrazzo
Design period: December 2018 – June 2019
Construction period: May 2019 – May 2020
Photographer: Peter Dixie (UK) / Lotan Architectural Photography










































































