全球設計風向感謝來自 壹席設計事務所 的辦公空間項目案例分享:
設計思考 Design Thinking
如何定義個人與外部的邊界
是已知還是未知
亦或是各種認知的延伸
How to define the boundary between individual and external?
Is it known or unknown?
Or is it the stretch of all sorts of cognition?
工廠革命,源自於新生代流的意識覺醒。
The factory revolution was born of the consciousness of the young generation.
革命 Revolution
革命的目的不是定義最終的結果,而是讓質問與改變成為通向結果的道路。
The purpose of a revolution is not to define the end result but to make questioning and change become the path reach to the result.
YISEN辦公室位於東莞萬江,工廠招聘難已然成為阻礙工廠發展的重要因素之一,年輕一代對於工作選擇除了發展前景也會非常注重工作環境,辦公環境或者是辦公空間的人性化與趣味性都能給企業帶來招聘競爭力;工廠革命,要改變的首先就要顛覆認知重新定義工廠辦公空間形式。
YISEN office is located in Wanjiang, Dongguan. Obviously, the difficulty in factory recruitment has become one of the important factors hampering the development of the factory.Not only development prospect but also working environment is important to the young generation in their choice of work. Working environment, or office space in a humanized and entertaining way can bring the recruitment competitiveness to the enterprise.In factory revolution, the first step is to overturn the cognition and redefine the form of factory office space.
革命是認知而不是形式,意味著要顛覆傳統,重新定義工廠辦公空間,讓新舊在對抗衝突中找到平衡。
Revolution is a kind of cognition rather than a form. It means reversing tradition, redefine factory office space and find out the balance in the antagonism and conflict between old and new.
藍色交彙著紅色光影, 一切在緩緩的時間流動中充滿了凝聚的力量,印證著在同一享受的空間裏原本就沒有真正異己之物的存在。所有可透視的表象明見性,使存在本身變得不由分說,空間也由此相互獨立、融合,從而創造有趣生動。
Blue mingled with red light and shadow, and everything was full of condensed power in the slow flow of time, which proved that there was no truly alien thing in the same space of enjoyment.All the transparent representation make the existence itself to allow no explanation, and the space is thus independent and integrated with each other, thus creating interest and vividness.
有人說“哲學在用不同的方式解釋世界”,設計就是在用不同的概念釋放空間。每個概念的背後,隨著色彩過渡、結構方程式都會使其產生質疑。光,也會引導人去自我求知另一層境界,這種“進行質疑”本身就是“與他人的相遇”。
It is said that “philosophy explains the world in different ways”, and design is to release space with different concepts. Behind each concept, color transition and structural equation will make it questioned. Light also leads people to another level of self-cognition, and this “questioning” itself is “meeting others”.
空間禮儀 Space Etiquette
進入總經理辦公室的空間過渡,從一個空間到另一個空間用深色牆麵暗示完成狀態的過渡;
In the office of the general manager, use dark walls to indicate the finish of transition from one space to another.
再塑 Reshape
推翻、打破、重塑,建築的本質開始在這個過程中反映,包含著自我意誌的活躍。
The essence of architecture begins to be reflected in the process of overturn, break and reshape. Including the activity of self-will.
在規則內、線條裏、在方框之中,不受束縛、樂玩工作、自由暢想。
To break free in the rules, lines and boxes.Feel fun to work and free to think.
時間印跡 Time mark
尋找建築最原始的印跡轉換成空間詩意。
Looking for the most original imprinting of the building and change it into poetic space.
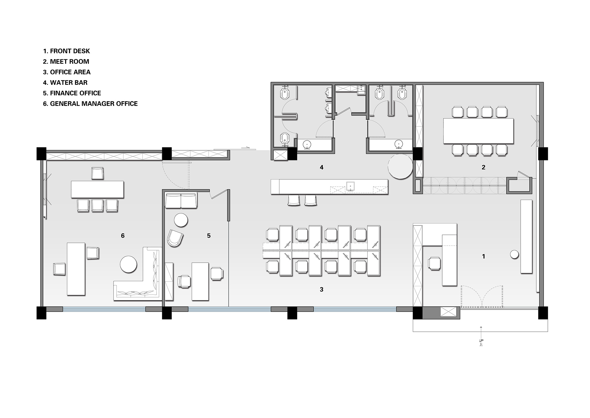
∇ 平麵圖
項目信息
項目名稱:YISEN OFFICE
項目地點:東莞萬江
項目麵積:200㎡
項目業主:YISEN益森彈簧
完成時間:2020年6月
室內設計:壹席設計事務所
主案設計:胡濤
設計團隊:周嚴傑、尹詠嫻、林武源、葉柏輝
藝術裝置:Studio V3︱Jemmo、Apink
項目物料:瓷磚、木地板、novacolor塗料、鏡麵不鏽鋼
項目攝影:陳銘
project name:YISEN OFFICE
project location:Wanjiang, Dongguan
project area:200㎡
project owner:YISEN益森彈簧
finish time:2020年6月
interior design:壹席設計事務所
Lead Designer:Huson
design team:周嚴傑、尹詠嫻、林武源、葉柏輝
artistic installation:Studio V3︱Jemmo、Apink
materials:Ceramic tile, wood floor, Novacolor paint, mirror stainless steel
photography:陳銘




























































