由Cousins&Cousins設計的Kenwood Lee私人住宅位於英國倫敦。它是為同時擔任該項目主要承包商的建築商設計的。該住宅采用了多種材料,包括磚,混凝土,橡木,大理石和金屬。而室內設計的關鍵元素是懸浮的秋千和螺旋樓梯。
Kenwood Lee私人住宅位於自然保護區,俯瞰公園,並在後院的一部分與森林相鄰,外牆采用全景玻璃裝飾。從路邊看,該建築看起來非常傳統,可與周圍環境相匹配。
該建築的四層樓圍繞一個三層樓的混凝土核心而組織。起居區由大理石壁爐隔開,廚房與帶玻璃屋頂的用餐區隔開。
帶有橡木台階的螺旋樓梯通向地下室,地下室設計有電影院,遊泳池,客房和健身房,所有照明均由自然采光所照亮。圍繞中央浴室的兩個對稱臥室。上層由主臥室,寬敞的更衣室和浴室占據,金屬屋頂中的三個屋頂窗將光線照到頂層。
∇ 場地區位圖
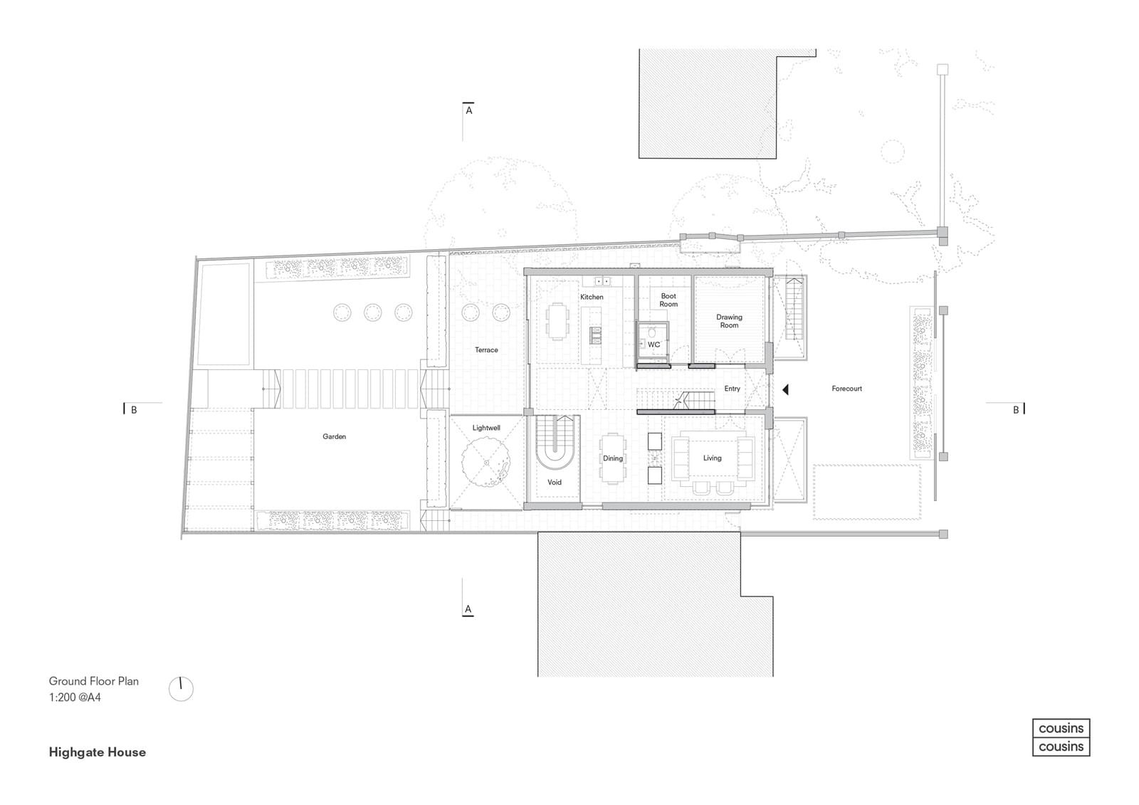
∇ 一層平麵圖
∇ 二層平麵圖
∇ 三層平麵圖
∇ 立麵圖
∇ 剖麵圖
版權聲明:本站所有文章除投稿授權發布外,其他文字內容均為原創,享有著作權保護,未經許可不得以任何形式進行轉載(包括且不限於:媒體、網站、公眾號等)。所有項目照片/設計圖形版權歸原作者所有。本站部分內容源自網絡公開資源或用戶分享,如若侵犯了原作者的合法權益,可聯係我們進行處理。








































