Tangent House是一棟現代住宅,位於西班牙瓦倫西亞附近的低密度住宅區。該房屋由Ruben Muedra Estudio de Arquitectura於2017年設計,該房屋由一係列相切的體塊組成,麵積為700平方米(7,535平方英尺)。
該項目具有極大的幾何和形式上的圓度,具有明顯的美學特征,力求與自然環境保持最大的聯係。
為此,建築由一係列相切的體塊組成,這些體塊彼此相對偏移,從而從所有相切體塊中獲得最佳視野。這些體塊中的每一個-高度也是可變的-在縱向上由兩層灰色的混凝土牆以及在橫向上的大玻璃窗界定。以這種方式,為鄰近的地塊產生了必要的不透明性和私密性,同時有利於朝向花園和高爾夫球場的視野。混凝土作為牆體–重元素與玻璃窗作為可穿透和輕元素之間呈現出鮮明的對比。
每個體塊對應於特定用途,它使連續的外部空間保持連續性,並在相切體塊內部空間之間的產生巨大的關聯性。
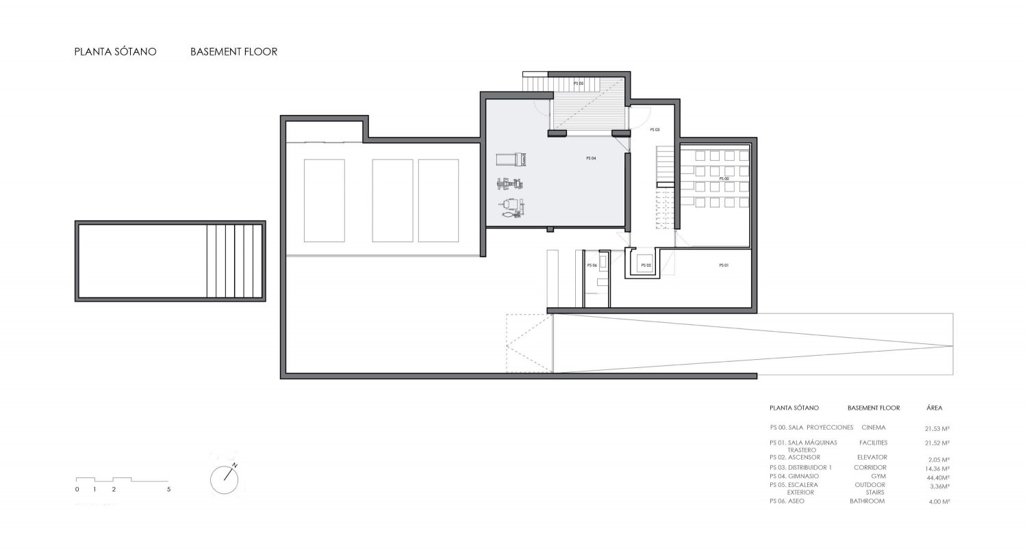
∇ 負一層平麵圖
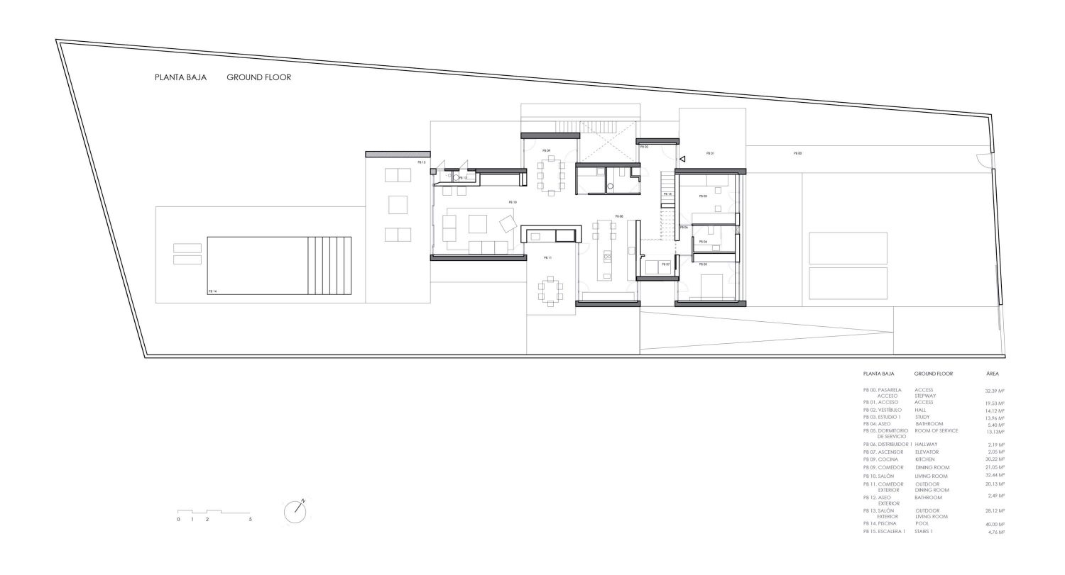
∇ 一層平麵圖
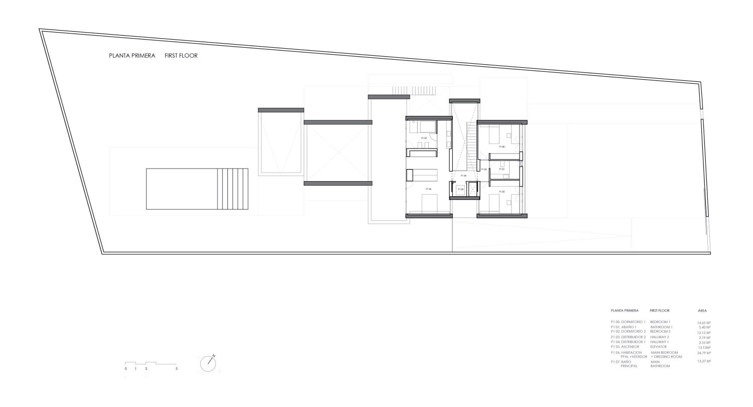
∇ 二層平麵圖
∇ 屋頂平麵圖
版權聲明:本站所有文章除投稿授權發布外,其他文字內容均為原創,享有著作權保護,未經許可不得以任何形式進行轉載(包括且不限於:媒體、網站、公眾號等)。所有項目照片/設計圖形版權歸原作者所有。本站部分內容源自網絡公開資源或用戶分享,如若侵犯了原作者的合法權益,可聯係我們進行處理。











































