+green是即愈街上的一間有機餐廳,距離東京最大公園之一——奧林匹克公園僅有幾步之遙。餐廳位於一棟三層公寓樓的一層,是一個半地下狀態。
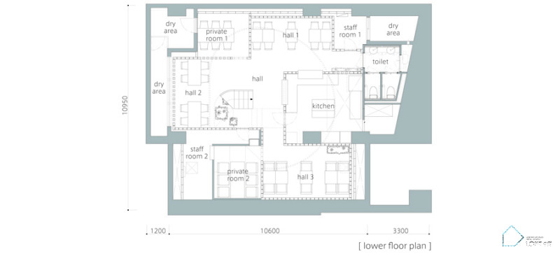
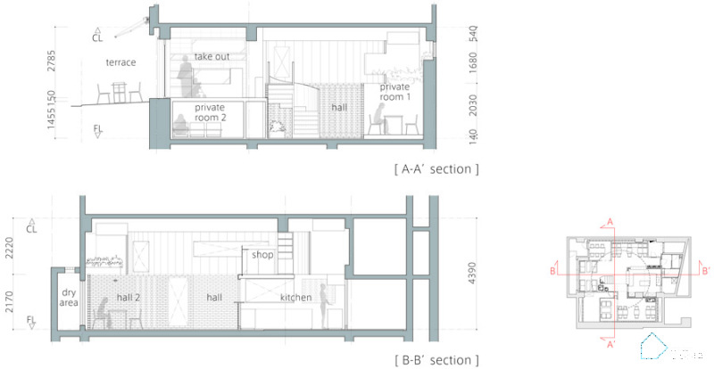
餐廳由三個基本功能組成:一個外賣小酒館、有機食品商店和餐廳。空間最大特點是地麵低於入口地平麵1.61米,這意味著室內天花板高度為4.39米。因此設計師需要在這樣的空間中合理安放三個功能區。通過將餐廳放在半地下一層,外賣櫃台設在地麵前麵的入口處,商店則移到外賣櫃的對角處,從而使光線可以進入餐廳區域。商店比外賣空間高0.56米,廚房剛好放在它下麵。
三層的功能區,使顧客可以在空間中自由穿梭,上層和下層空間設計了不同的牆壁,用不同的方式來劃分空間,使人們體驗到不同的環境,同時又對其它的空間也充滿了好奇。
上層空間,白色的牆壁將原始牆壁和設備(如空調係統和管道)隱藏起來,牆上的開口將餐廳內部的植物或景觀收納其中,好像一幀幀的圖畫;這麵牆環繞樓梯,勾勒出一個內部大空間。
下部空間,你仍然可以感受到白牆浮在你的頭頂,同此層分區的磚牆形成對比。大廳內的磚牆設為連續的直角,創造出私人區域。廚房和儲藏室位於磚牆和原始牆之間的外部。
大廳空間被分成三個區域,同時它們又連接在一起。分散放置小綠植,使人們在空間的任何一個地方都可以看得到。
Photos © Toshiyuki Yano
版權聲明:本站所有文章除投稿授權發布外,其他文字內容均為原創,享有著作權保護,未經許可不得以任何形式進行轉載(包括且不限於:媒體、網站、公眾號等)。所有項目照片/設計圖形版權歸原作者所有。本站部分內容源自網絡公開資源或用戶分享,如若侵犯了原作者的合法權益,可聯係我們進行處理。



















