RINA LOVKO設計基輔78㎡白色極簡小戶型。
最初,該住宅到處都是不必要的門,陰暗的角落,中間被一堵厚重的牆隔開。建築師決定拆除所有牆壁,並從頭開始重新劃分所有空間,與開發商提供的最初計劃無關。
有限的麵積,這個項目涉及複雜的計算,
不尋常的規劃方法,
以最大限度地利用空間,
而不設置不必要的抽屜和灰塵收集器。
看起來很寬敞,
這個單人小公寓有一個儲物間,
一個帶烘幹機的洗衣單元,
飲用水過濾器,
以及舒適生活的所有必要設備。
由於客戶決定將浴室和衛生間分開,
因此建築師對浴室空間進行了特別的開發。
因此,
位於窗邊的浴缸浸泡在日光中,
這對於基輔的典型公寓來說是很不尋常的。
淋浴區正對著窗戶,
所以每天早上客戶可以在開始一天的時候欣賞城市的風景。
浴室配有Rimadesio的滑動鏡門,
因此浴室的光線會突出客廳區域並照亮公寓的北部。
緊湊的廚房區域連接到客廳,
並放置在簡易的小空間中。
最後,整個公寓隻剩下兩扇門,
分別位於洗手間和入口處,
在空間中沒有暗角。
衣櫃既可用於入口區域,也可用於臥室,
從視覺上將臥室和走廊分隔開。
為了視覺上擴大空間,
建築師在公寓裏使用了很多鏡子。
例如,在L形走廊中,鏡角反射了衣櫃,
使空間顯得很方正。
考慮到建築的天花板較低,
最大的挑戰是規劃通風係統。
但是僅在更衣室降低天花板可以解決此問題。
在起居室中建造一麵多功能牆,
以便將空調係統,生物壁爐,
家庭影院和音響設備,投影儀,
隱藏式櫥櫃和動態背光裝置
全部安裝在一處。
公寓中的主要照明燈是Deltalight。
該項目僅采用天然材料。櫥櫃以橡木貼麵完成,
玻璃櫥窗櫃由橡木和玻璃定做,
帶有床頭櫃的木製床架和百葉窗也是量身定製的。
浴室中醒目的麵板由Anna Krut設計。
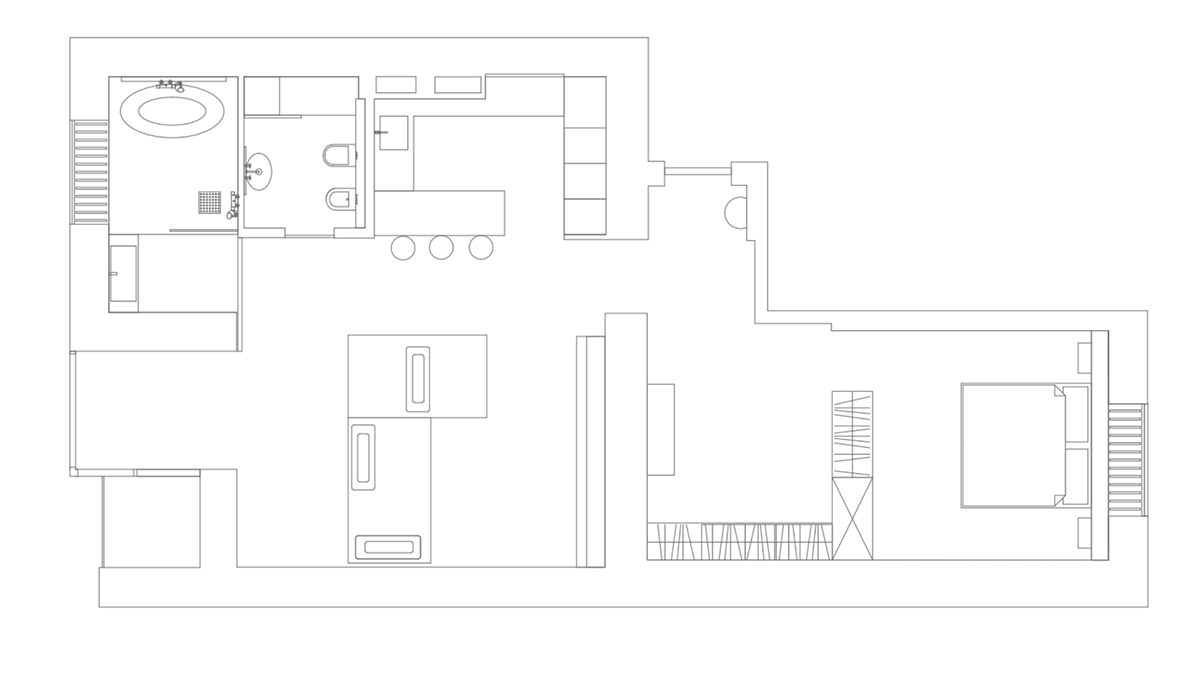
△平麵布置圖
版權聲明:本站所有文章除投稿授權發布外,其他文字內容均為原創,享有著作權保護,未經許可不得以任何形式進行轉載(包括且不限於:媒體、網站、公眾號等)。所有項目照片/設計圖形版權歸原作者所有。本站部分內容源自網絡公開資源或用戶分享,如若侵犯了原作者的合法權益,可聯係我們進行處理。


































