這間莫斯科79㎡擁有柔和色調的住宅項目由Bureau Slovo設計,
設計師在空間中加入了秋天的棕色、杏黃色和森林的綠色時髦的兒童房間,
在那裏它們與歡快的黃色交織在一起。
這是一個舒適的極簡主義方案。
年輕夫妻客戶的偏好為:⠀
使用斯堪的納維亞家具,
種植更多植物。
總的來說,
想在柔和的配色和天然材料中
營造一個明亮的空間。
家具像是漂浮在幹淨的空間中,
而開放式的架子則擺滿了室內植物和藝術品,
營造出一種家的個性化的感覺。
室內入戶門上方優雅的拱形氣窗給房子帶來了獨特的個性,
並激發了定製家具和大鏡子的曲線美。
棕色油漆與客廳中柔軟的灰色組合沙發相得益彰,
薄薄的架子為輕巧的裝飾牆增添了趣味,
而黑色內襯擱板角落則營造出大膽的風格。
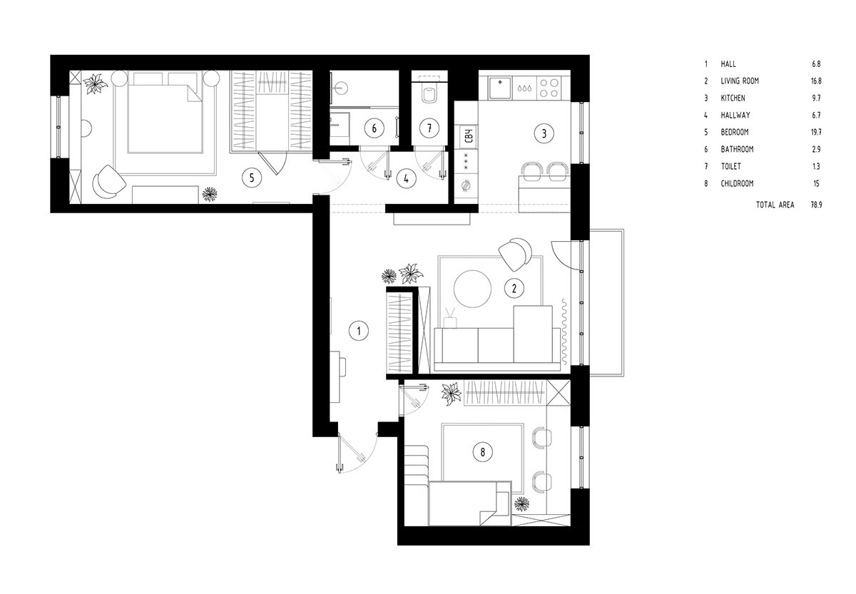
△平麵布置圖
版權聲明:本站所有文章除投稿授權發布外,其他文字內容均為原創,享有著作權保護,未經許可不得以任何形式進行轉載(包括且不限於:媒體、網站、公眾號等)。所有項目照片/設計圖形版權歸原作者所有。本站部分內容源自網絡公開資源或用戶分享,如若侵犯了原作者的合法權益,可聯係我們進行處理。





































