全球設計風向感謝來自 於強室內設計師事務所 的售樓處空間項目案例分享:
美國建築師埃羅.沙裏寧(Eero Saarinen)曾這樣形容:城市是一本打開的書,從中可以看到它的抱負。
回望時光,唯有1號被銘記。十年前,深圳灣一片灘塗,十年後,深圳灣一號屹立於大灣區核心之重,映照深圳的城市精神。作為“中國頂級豪宅標杆締造者”,鵬瑞以前瞻的品位,布局粵港澳大灣區,為城市塔尖人群創造跨時代的頂豪生活。
∇ 鵬瑞集團&於強設計作品一覽
七年時光裏,YuQiang & Partners攜手鵬瑞,為其打造了鵬瑞總部辦公、深灣會和深圳灣一號員工食堂。如今,我們繼續堅持品質設計的理念,從鵬城到鳳城,去探索人與空間的連接,找尋這座城市的渴求,執筆「1」號信念作品——順德皓玥灣。
光之庭 藝之廊 ESTUARY GLORY
每一座豪宅,都是一座孤品。秉承深圳灣「1號」信念與信仰,項目擇址美麗的南國之城——順德,集城市最極致的土地資源和最高層次規劃格局,注入鵬瑞頂豪基因,與全球設計精銳再塑「1號作品」——鵬瑞·皓玥灣,為順德注入標杆式高端人居生活範本。
矩形立麵素淨而典雅,每一塊石材有序地拚接,在同色調的單一材料的使用中創造出建築的陰影和紋理。它不僅是一座建築的立麵,而是一個巨大的建築雕塑。
精心設計的玻璃盒子破石而出,猶如“美器中盛放的水晶”。設計以同一關聯的邏輯延展,將「營銷中心」與「藝術博物館」奇妙結合,打造沉浸式的空間體驗。
∇ 設計意向緣起:光與水的交融
水,是城市的靈魂。德勝河是順德的母親河,這片土地,沒有矯飾與虛浮,以柔性文化養育一方人。結合“以水養城”的理念,設計從此原點出發,拉開了順德文脈的序幕。
設計以清新雅淡的水鄉風物為線索,從城市的脈絡中攝取靈感和元素,將河流、龍舟、民俗轉化為空間視覺。
光影以極強的序列感,奏響起空間的前奏。自高處而下的光線使得牆麵上的藝術品像漂浮於空中。自然光線透過天窗和結構梁,空間中的牆和地板仿佛瞬間消融,為展示區留下了完美而純淨的背景。
我們延續建築“雕琢而現”的手法,利用大塊麵強調出重點空間,將室外純淨的形體關係延續至室內,流轉的動線讓場所更加豐富。現代的建築語彙構建了空間通透、自然的格調。
在高達10米的神聖尺度中,雕塑感極強的室內樓梯成為空間中震撼的藝術裝置。樓梯貫穿起兩層,成為嶺南曆史走向現代文明的轉換通道。設計結合曆史元素和現代理念,完美詮釋了城市的發展與人類的精神訴求。
建築的體量與空間的輕盈相結合,這裏抹去了都市尖銳的棱角,一切都回歸於平靜、舒緩的狀態。像是一個被包裹在盒子裏的藝術品,等待著人們去探索和觀賞這裏的未知,感受人與空間的情感連接。
建築在二層插入一個水體,打造“星空藝術館”概念,觀者在此抬頭可見滿目夜空,飽覽令人驚歎的無邊江景,成為空間的最大亮點。
陳設產品中大量的鐵藝、金屬、玻璃,與溫潤的木色相得益彰,營造整個空間的拙樸之美。
∇ 硬裝材質
燈光是空間的靈魂,它是靜謐、溫暖、舒適、不過分耀眼的。空間延續簡潔的設計語言,吧台由黑色框體一體建構,冷靜而克製。
好的環境在無形中勾勒人們的情緒,塑造人們的心境。謙遜的色彩、自然的天光讓這裏看似靜止,又充滿趣味的變化。
該空間以“城市的旋律”為主題,設計在原有平麵上重新布局,使各區間規整,二層囊括洽談區、VIP室、水吧區、簽約室、冥想區、觀景區和兒童活動區,為來訪者提供一個拋開浮躁、擺脫束縛、放下包袱的交流空間。
中心區引入天光,巨型藝術裝置成為空間的焦點。木條狀屏風保持原始的肌理紋路,不僅巧妙劃分各洽談區,同時保持空間的通透性。為營造更為高端舒適的洽談體驗,所有來訪者均需預約。洽談區以不同的組團形式呈現,既適合輕鬆開放的交流,也考慮到私密性的保障。
簽約區以暖灰色肌理漆為底色,營造如歸家般的氛圍,彰顯法式、東方、優雅的格調,180度采光玻璃將參觀者引導到更廣闊的景觀中去。
該展示空間中建築、景觀與室內相互滲透,是一場關於美的精神空間的營造運動,而非各種藝術品的堆疊來聚焦空間意向。
在這個通透的場地中遊走,會讓人感受到不同季節不同時段呈現的微妙差異和視覺感受。
建築的光與影、空間與結構在此消融,最終達到藝術與空間的共鳴。
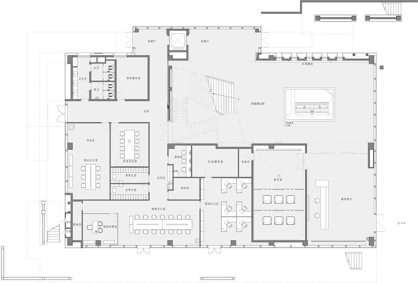
∇ 一層平麵圖
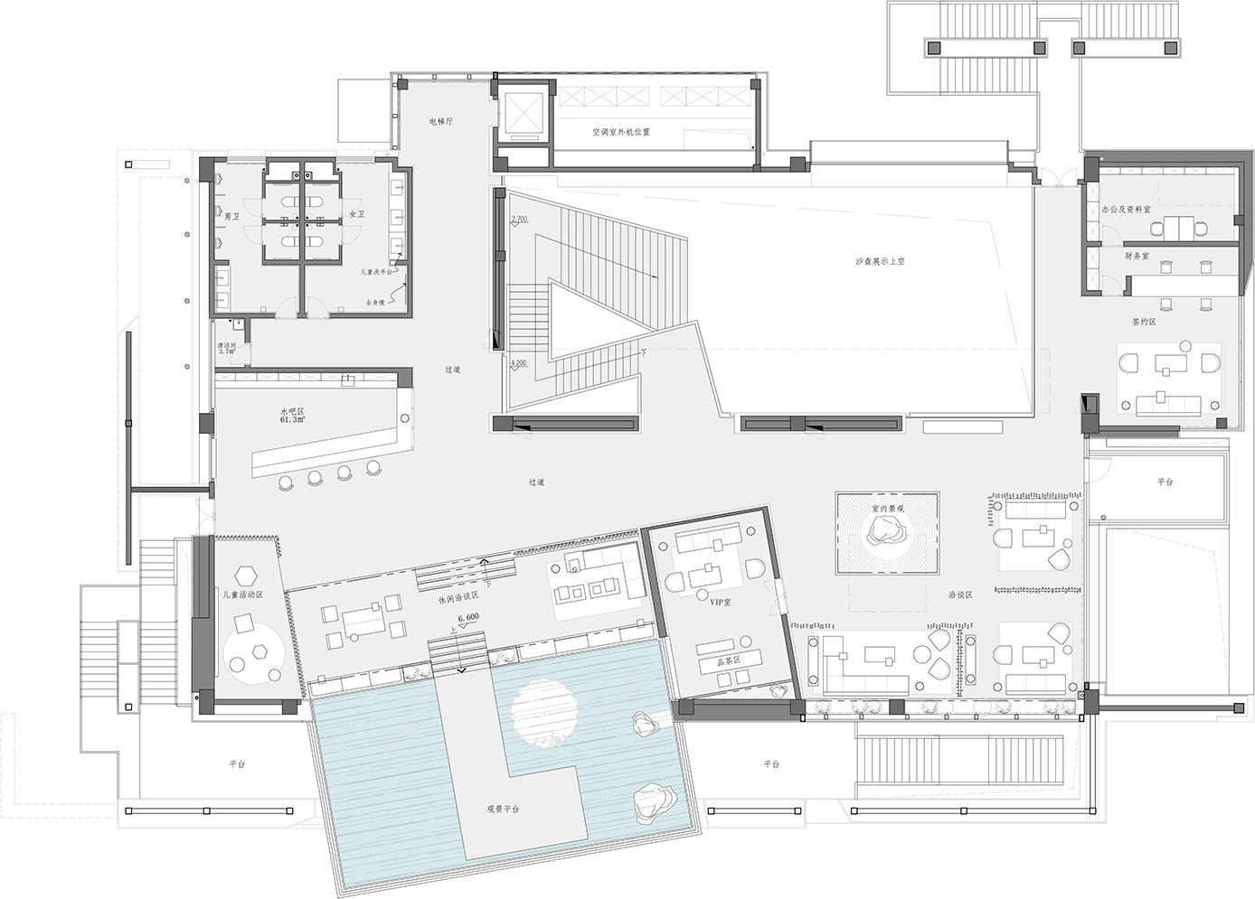
∇ 二層平麵圖
項目信息
工程名稱:鵬瑞皓月灣營銷中心
建築設計:華彙建築設計事務所
室內設計:於強室內設計師事務所
軟裝設計:沃屋陳設
項目完工:2020年
項目麵積:905㎡
項目地點:廣東順德
項目攝影:鄭焰










































