咫尺園林
構築未可預料的曲折與邊際
山林之怡從不在於身之所處,穿梭於綠影蒼石層層架構的遊園路徑,登高對望自然雅致,細窺卻見工藝細膩,文明與自然存於咫尺相稱,待賓客前行,續寫文人雅士之聚。
立於大型開發案街廓,基地將連結地鐵出口並麵迎中央公園腹地,考量日後商業行為,平地樓麵多內縮釋放人行尺度,分解體積向上靈活架疊,輔以空中廊道搭接縱橫體係,包括基地三樓增設出口埠接空橋。
∇ 空間與環境基地的關係
本案預計運作十年之久,未來亦交付社區永續使用,設計者需參考內外動線、街廓性能確保美感及機能耐久度。負責室內空間的水相設計,思及開發案主軸及內外網絡係統,在玻璃為主的建築皮層內疊砌區塊量體,一來切合銷售需求,二則呼應開發區的都市景觀。
超越奢華的價值
釋放人行麵積之外,開發商更計畫性植入綠帶串連街廓,調節自然與文明的疏密比例。有鑒於此,建造頂端生活的訴求前,我們認為當代價值裏「平衡」比「奢華」珍貴,與其符號浮濫拚貼華美,更應挖掘滋養「奢」的品味底蘊,思考過往保存並豐富文化的人文機製,如何由設計衍生運用至現代空間。
舉凡十一世紀中國孕育雅集的園林,十八世紀法國激蕩文學藝術的沙龍,空間本體象征勝於財富的深度及廣度。由此發想,場域所能聚集的精致工藝或儀式,能提升物質至抽象層次,恰到好處地將使用者和空間整合在相同氣質頻率,建構去俗賦雅、適應當代的文化聚點。
點到點的悠長迂回,深化空間想像維度
為重現古典園林曲折迂回、亦繞亦遊的視野意境,我們將空間切分為多塊量體、錯置堆疊進退麵,即便展示尺度的挑空區域,也刻意切挪角度使垂直向不貫穿,舍棄點對點的直線邏輯,讓詩意取代效率。
交錯階梯、探伸平台劃分了行為群落;隧道般的廊道、隔牆劃開的半獨立會室,則提供洽談區和其他機能相對幽靜之所。
量體虛實形構的「繞」,使人逐步深入空間猶如探訪園林廳堂,花木與開闊轉為藏品與精致,空處有景、疏處不虛,中軸對稱布局有低垂夜幕為襯,賓客步入正廳靜候宴饗之啟,環境儀式感暗示著尊貴,使人自然浸入古代風雅。
設計使建築提供沉浸條件,欲在現代售樓處創造園林韻味,我們不挪植栽曲橋、亭榭雕欄拚貼複製,而借室內量體圍塑相仿情致。其設計骨幹在於:即便固定靜止的建築也能靈活使用者行為,路徑不僅一條,同個空間能自不同位置、高度觀之賞之,反覆玩味探詢即為園林樂趣之一。
品味即是看待事物的目光
擇物方麵,石材紋理象征山岩,色澤散發青、蔥、碧、翠,扭轉人對自然必聯想花葉山川的慣性連結,以抽象但保有約略美感的原則鋪排。灰、白與各式綠的幫襯關係,也呼應戶外綠地蜿蜒於街廓建築間隙的整體色調。
君子貴於不露圭角,在尺度營造的宏觀感受之外,細節藏入設計的奇與巧更能留下耐人尋味的記憶點,例如石材銜接麵處理,立麵轉角混合陰刻陽刻手法內嵌訂製壁燈,皆為點到為止的內斂精致。同時,瑣碎軟裝配件依循比例和巧藏規則進入空間係統,才成就整體果斷俐落但品味獨特的效果。
語彙保持一致性的壁燈,腳邊點亮軸線關係的內斂地燈,門把、扶手以皮革包覆的溫潤,深化古代建築裏宮燈、木革雕刻工藝的訂製內涵,再轉換為現代空間使人感覺體貼的元素。
當使用者隨動線一進一進累積細微感受,行為儀式對應的尊貴亦不言而喻,信手撚來,皆成雅集回韻。
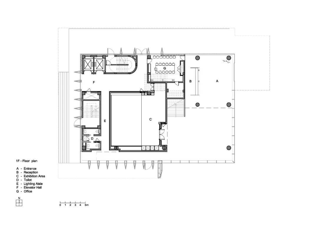
∇ 一樓平麵圖
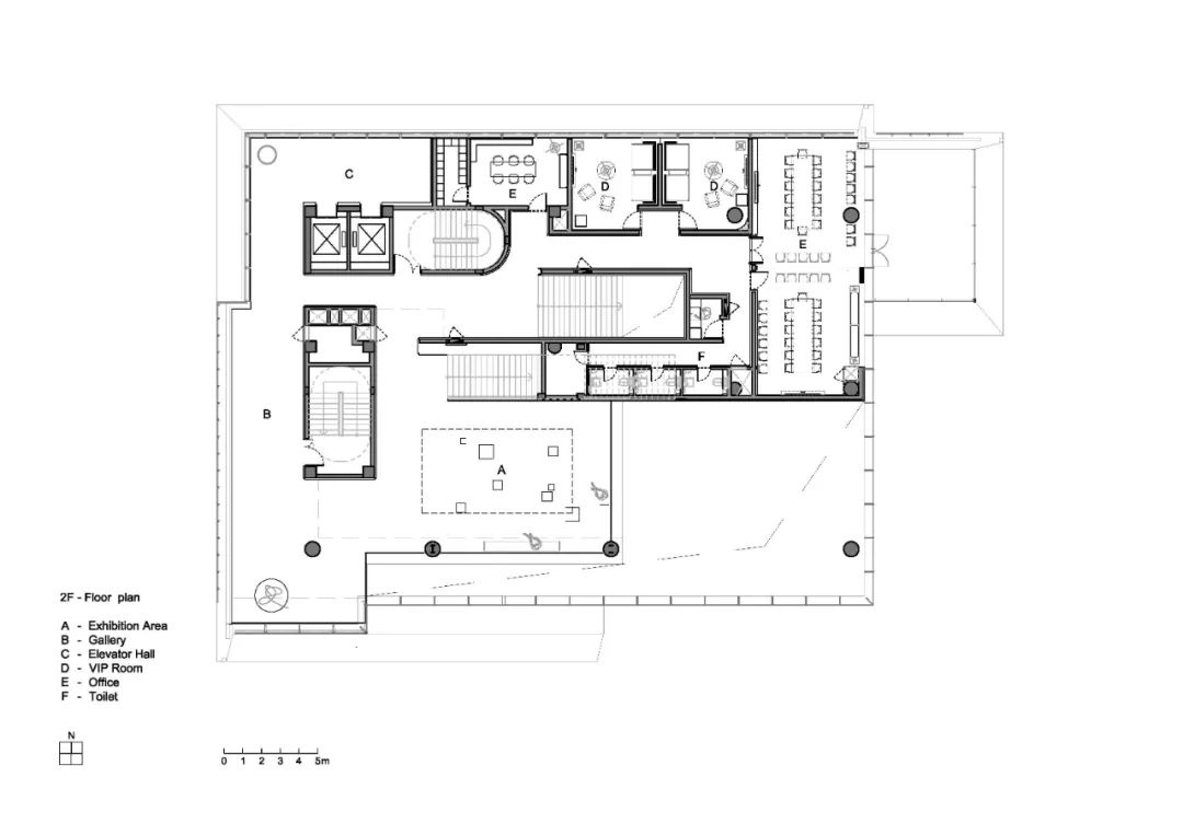
∇ 二樓平麵圖
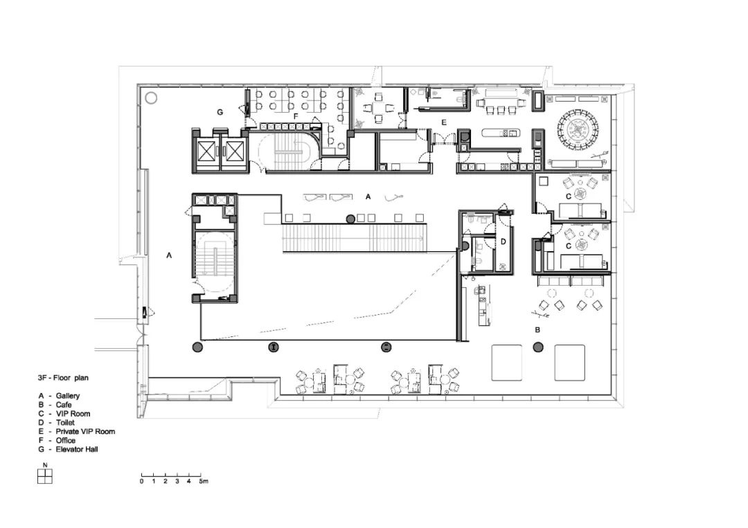
∇ 三樓平麵圖
∇ 剖麵圖
項目信息
項目名稱:東莞悅府城市展廳
空間設計:李智翔、葛祝緯、陸安妮、湯傳亞、蕭偉富 /水相設計
項目業主:華潤置地東莞片區公司
座落位置:東莞
室內麵積:2400平方米
空間格局:接待區、洽談區、品牌展示區、私宴廳、辦公室、衛生區、多功能區
設計時間:2022.01~2022.08
施工時間:2023.02~2023.05
主要材料:石拚銀之舞大理石、蛇紋石、玉石、米色大理石、手工漆、皮革、銅染黃銅、鍍鈦板
項目攝影:吳鑒泉

























































