全球設計風向感謝來自 DUTS杜茲設計 的圖書館空間項目案例分享:
近日,DUTS杜茲設計的國際競標作品“成都市金牛區圖書館”在曆時四年後建成竣工。該項目位於成都市中心城區的⻄北部,作為金牛區的文化地標,以獨具魅力的建築形象,為天府之城呈現了一部令人驚歎的“三維之書”,體現出新時代公共文化建築在文化及建築實踐上的高層次追求。
DUTS design has recently completed the new“Chengdu Jinniu District Library”, after four years of construction. The project is located in the northern part of the downtown area of Chengdu. As a cultural landmark of the Jinniu District, it comes out as a surprising “three-dimensional book” for the city of Chengdu with its unique and charming architectural image, reflecting the public culture of the new era into a high-level of architectural culture.
項目背景與設計挑戰 Project background and design challenges
金牛區圖書館位於成都金牛大道”天府文化景觀軸”的南部,行走在這條軸線上,能感受天府文化與城市人文氣息。該項目地塊包含金牛區圖書館及外化成中學兩大功能板塊,項目的設計難點:
功能難點:金牛區圖書館包含圖書館,地方誌館與檔案館,空間需求巨大;外化成中學需確保教學空間的東、南向分布,以保證師生的教學活動享受充分的日照,及室外操場的活動場地。
場地束縛:場地地塊限高36米;
The Jinniu District Library is located in the south of “Tianfu Cultural Landscape Axis” on Jinniu Avenue in Chengdu. The cultural presence of Southwest china is strong as you walk along this axis. The project includes two functional programs: Jinniu District Library and Waihuacheng Middle School.The design challenge of the project:
Functional challenge:The Jinniu District Library includes a library, a local chronicle and an archive, which have enormous space requirements; Waihuacheng Middle School needs to be placed on the south-east of the teaching space to ensure that the teachers and the students enjoy sufficient sunshine and outdoor playground activity.
Site Restraint:The site is long and narrow with a 36 meters plot height limit.
由於地塊本身呈狹長態勢,綜合理性需求功能,外化成中學布局在了地塊南端,保證中學操場寬闊地塊的使用及日照條件;圖書館則位於地塊北側,與城市綠地接壤,可作為圖書館的借景或前廣場,在總體布局上為最節地方案。
Waihuacheng Middle School is located at the southern end of the plot to maximize the use of the middle school playground and the sunlight conditions; the library is located on the north side, bordering with an urban green space that is “borrowed” as the front square for the library, saving plenty of space in the overall layout. This decision has been made with multiple design iterations, taking rational needs and functions into consideration.
突破想象:以橫向懸挑形態打破用地束縛
Breaking through imagination: breaking land constraints with a horizontal overhang
金牛區圖書館與外化成中學兩大部分通過場地北側一條貫穿西東行道路劃分,界限清晰且各自獨立。現有的平麵布局已經做到了“地盡其用”,但仍然難以完全滿足兩大地塊的功能需求。金牛區圖書館作為一個區級的大型圖書館,其功能包含圖書館,地方誌館,檔案館,是綜合性的公共文化空間,對空間需求較大。
The Jinniu District Library and Waihuacheng Middle School are divided by a west-east bound road on the north side of the site. The boundaries are clear and independent. The layout achieved the “full use of the land”. However, it is still difficult to fully meet the functional requirements of two large programs. As a district-level library, the Jinniu District library has functions like local chronicles, and archives. It is a comprehensive public-cultural project due to its demands for a large volume of spaces and urban pockets for the public.
如何在現有占地狹小的三角地塊的頂端,同時有限高要求的場地裏,創造出滿足空間需求,並令人驚喜的公共文化建築?
How to create a public cultural building with the characteristics of cultural landmarks and meeting space requirements in a site with height restrictions on the top of a small triangular plot?
項目的總設計師,DUTS杜茲設計的創始人鍾淩提到,“這個項目上其實我們用了一種“升維”的設計思考,將城市規劃設計的思路融入到了建築形態的實踐中。金牛區圖書館和它旁邊的外化成中學,實際上是兩個社會功能的地塊,但它們又有著文化上的一致性,且恰好屬於同一個業主。在多種方案推敲之下,我們最後創新性地利用空中的橫向延伸,將圖書館頂層的一部分空間 “懸挑”到了外化成中學的教學樓之上,打破了場地條件的束縛,讓兩個建築的功能與形態實現了完美的“互補”,增加了城市空間的使用效率,也成為了這個建築最大的特色。”
The chief designer of the project, Zhong Ling, the founder of DUTS Design, mentioned, “In this project, we actually used a kind of “upgrading” design thinking, and integrated the idea of urban planning and design into the architectural form. The Jinniu District Library and the Waihuacheng Middle School next to it are actually two plots of social functions, but they are culturally consistent, and they happen to belong to the same owner. Under the deliberation of multiple plans, we finally Innovatively use the horizontal extension of the building in the sky to “cantilever” part of the top floor space of the library onto the teaching building of the Waihuacheng Middle School. This design breaks the constraints of the site conditions and allows the functions and forms of the two buildings to beachieved perfect “complementarity”, increasing the use efficiency of urban space, and becoming the biggest highlight of this building.”
三維空間的精致布局 Exquisite layout of three-dimensional space
金牛區圖書館建築由三個體量不同矩形穿插而成,高低錯落,內部聯通。圖書館建築部分懸浮於學校上方,立麵采用玻璃和金屬幕牆係統,結構形式則采用鋼結構,輕盈的體量與原停車場穩定厚重的形體形成對比,體現出現代建築的精致和高技,加強了兩個獨立地塊的整體性和互動性。
The library building in Jinniu District is made up of three rectangles with different volumes intersected with each other. The library building is partially suspended above the school. The facade adopts a glass and metal curtain wall system with a steel structural system. The light volume contrasts with the stable and heavy shape of the original parking lot, reflecting the high technology of modern architecture. This design also reinforces the integrity and interaction of the two independent plots.
建築的造型取意為“三維之書”,將書的文化寓意與現代建築的簡潔線條結合,圖書館及學校造型采用明快的直線條為主旋律,通過拉長縱深線條,讓圖書館的內在區域得以最大程度擴充,抽象的將竹簡及書籍的形態元素進行提取及整合,整體呈現連續、上升的態勢,簡潔而富有動感,大氣明快,寓意著蓬勃發展的城市人文精神。
The shape of the building takes the meaning of “three-dimensional book”, which combines the cultural meaning of the book with the clean lines of modern architecture. The library and school are shaped with bright straight lines. By extending the deep lines, the inner area of the library can be maximized. The degree of expansion, abstractly extracts and integrates the morphological elements of bamboo slips and books, presenting a continuous and rising trend as a whole, concise and dynamic, magnificent and lively, implying the flourishing urban humanistic spirit.
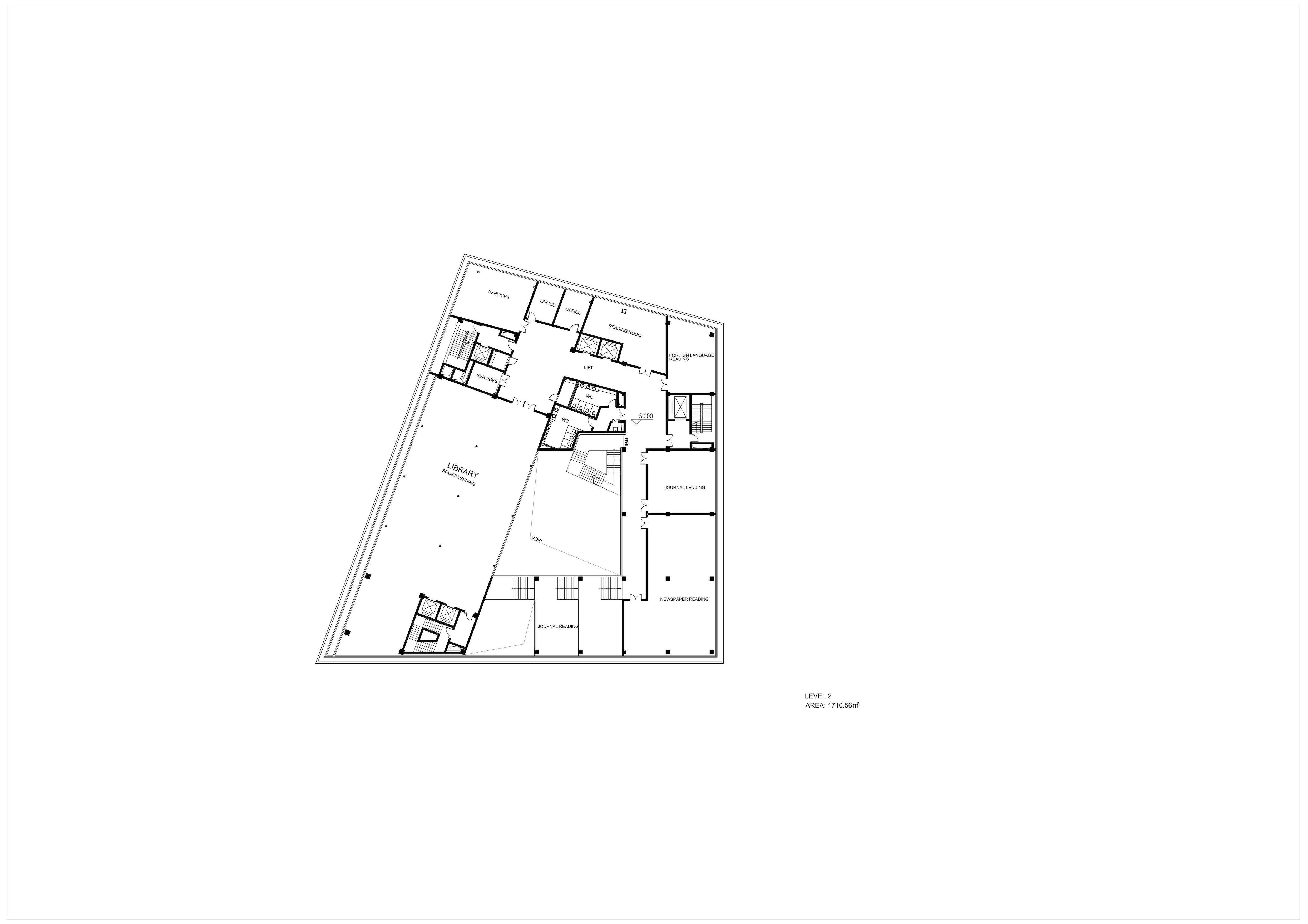
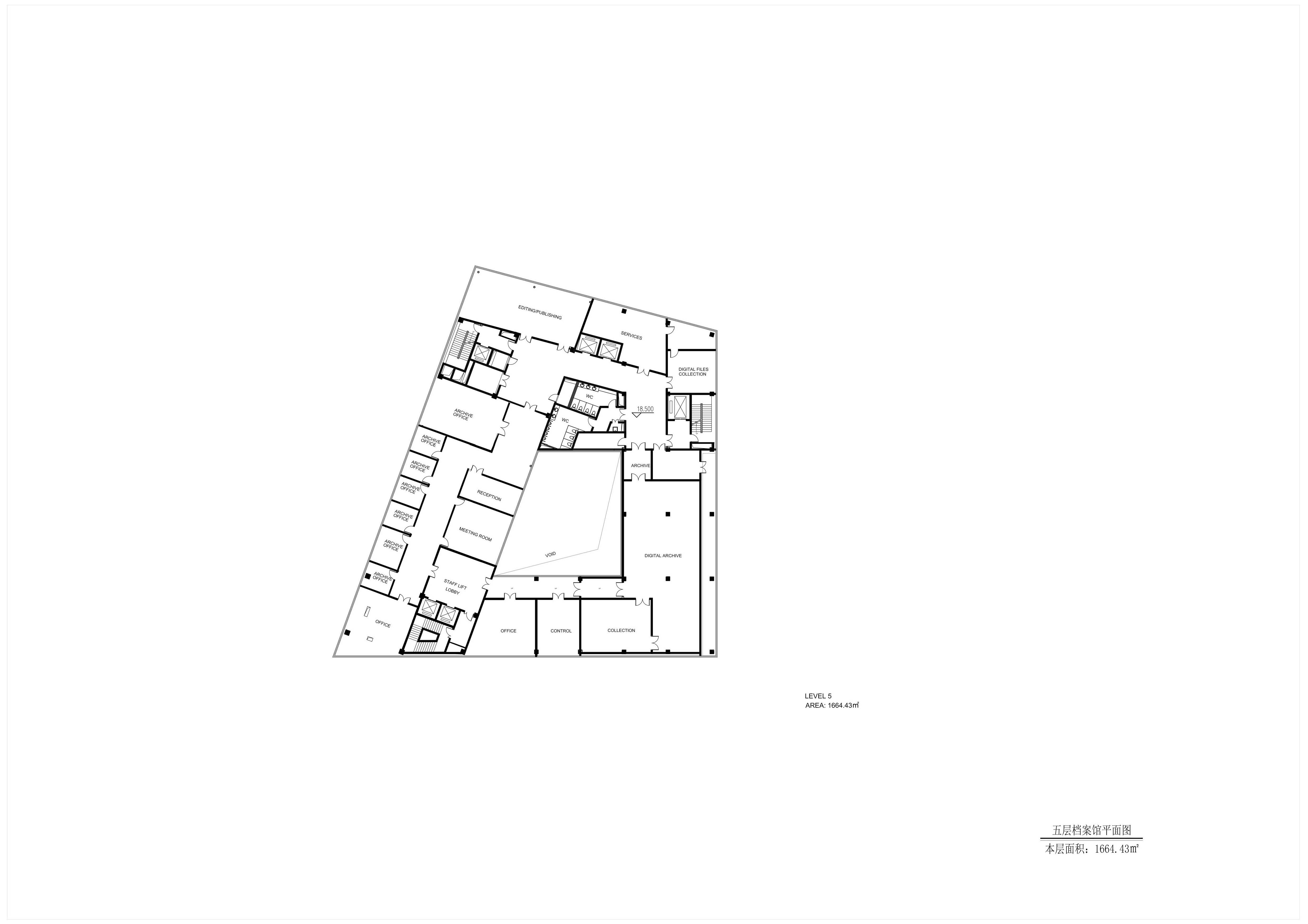
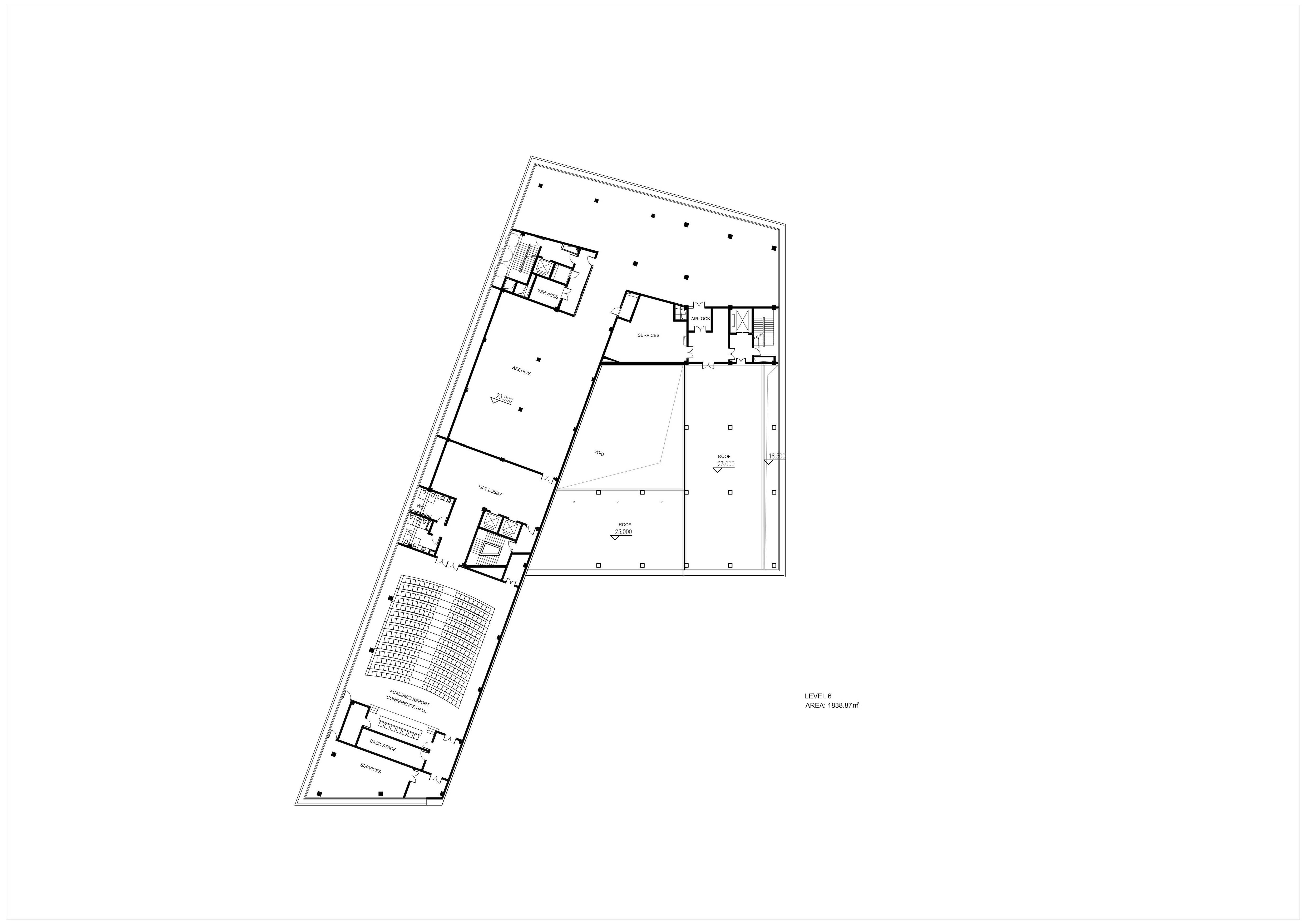
圖書館采用以層分區的布局方式,圖書館主體位於建築1~3層,檔案館位於4~6層,地方誌館則位於半地下室,分區明確,各自流線互不幹擾。圖書館,地方誌館,檔案館與學校有機結合,流線通透流暢。
The library adopts the layout method of partitioning by layer. The main body of the library is located on the 1st to 3rd floors of the building, the archives is located on the 4th to 6th floors, and the local chronicles are located in the semi-basement. The divisions are clearly defined and their respective flow lines do not interfere with each other. The library, the local chronicles, the archives and the school are organically integrated, and the flow is transparent and smooth.
建築師不僅從平麵入手滿足各種功能的均衡統一,更傾向於從整體的三維空間著眼,營造人性化怡人空間。利用內院綠化,退台綠化,組織多層次的景觀環境,實現自然通風,爭取良好的日照,營造出寬敞明亮的現代城市公共文化空間。
圖書館⾸層的⼊⼝⼤廳,通透開敞,營造出的輕鬆氛圍,可⿎勵⼈們進⾏交流,給⼈賓⾄如歸的舒適感覺。
Architects not only start from the plan to meet the balance and unity of various functions, instead we tend to focus on the overall three-dimensional space to create a humanized and pleasant space. Utilize the greening of the inner courtyard and the afforestation of the terrace to organize a multi-level landscape environment, provide natural ventilation, strive for good sunlight, and create a spacious and bright modern urban public cultural space.
The large hall on the first floor of the library is transparent and open, creating a relaxed atmosphere, which can encourage people to communicate to each other giving guests a comfortable feeling of being at home.
建築在中部設置七層通⾼中庭,有效解決了建築內部的采光通⻛問題,打破了⽅形建築的沉悶格局,引進的⾃然光不僅節省⽤電,綠⾊環保,且由玻璃及⾦屬組成的透明屋頂能夠在不同光影下展⽰出千變萬化的氛圍,卻⽆眩光之擾。
A seven-story atrium is set up in the middle of the building, which effectively solves the problem of lighting inside the building and breaks the dull pattern of the building’s shape. The introduction of natural light not only saves electricity, is green and environmentally friendly, but it is also made of glass and metal transparent roof that can show an ever-changing atmosphere under different lights and shadows, but without glare.
圖書館閱覽室采⽤開架式格局,引⼊國際流⾏的階梯式概念,閱覽室跨層布置,導向型強,形式活潑,近似“圖書螺旋”的設計思路,也寓意知識的連貫性和上升性。
The library’s reading room adopts an open-shelf style, introducing the internationally popular ladder concept. The reading room is arranged across floors and has a strong orientation. The design is similar to a “book spiral”, which also implies the continuity and rise of knowledge acquisition.
該項目建成後,已成為成都金牛區的新晉的文化地標。為市民創造令人驚喜的視覺效果的同時,空間還能滿足多種不同類型的活動及場景需求。
After the completion of the project, it has become a new cultural landmark in Jinniu District, Chengdu. While creating surprising visual effects for the citizens, the space can also meet the needs of many different types of activities and scenes.
立麵幕牆打造新型“生態建築” Facade curtain wall to create a new type of “ecological building”
金牛區圖書館從立麵及平麵的空間布局,都力求達到節能、生態的效果。
立麵幕牆的日照分析是以統計成都地區年氣象數據為依據,結果為立麵開窗部分的全年太陽輻射平均值,能夠直觀精確地反應建築每塊玻璃麵地太陽輻射情況,為建築節能設計提供了有力的設計依據。
The Jinniu District Library strives to achieve energy saving and ecological environmental protection from the facade and the spatial layout of the plan.
The sunshine analysis of the curtain wall is based on the statistics of annual meteorological data in Chengdu. The result is the annual average solar radiation of the windowed part of the facade, which can intuitively and accurately reflect the solar radiation of each glass of the building. Based on scientific analysis, it provides a strong basis for creating an energy-saving and ecological building design.
運算結論說明:
黃色為最大太陽輻射值,藍色為最小值。北立麵受到全年的太陽輻射最大, 東西立麵次之,南立麵最小,出於建築造型的考慮,建築立麵設計了豎向隔扇,依據此次建築立麵的太陽輻射計算,可對隔扇設計進行優化,設計出更為節能優化的立麵隔扇。
Operation conclusion description:
Yellow is the maximum solar radiation value, and blue is the minimum. The north façade receives the most of the solar radiation throughout the year, followed by the east-west façade, and the south façade is the lowest. For architectural modeling considerations, the building facade is designed with vertical partitions. According to the calculation of the solar radiation the partition were optimized to provide a better energy-saving.
曆時四年,成都市金牛區圖書館及外化成中學項目終於建成竣工,建築師通過升維的設計思考與創新的建築形態探索,突破了用地條件的束縛,創造了一個為城市環境及市民都帶來積極效應的公共文化空間。
After four years, the Jinniu District Library and Waihuacheng Middle School project in Chengdu were finally completed. Through the design thinking of upgrading and the exploration of innovative architectural forms, the architects broke through the constraints of land use conditions and created an environment for the city and citizens. Both bring positive effects in the public cultural space.
∇ 平麵圖
∇ 立麵圖
∇ 總平麵圖
項目信息
項目名稱:成都市金牛區圖書館及外化成中學
項目地點:成都市金牛區
項目業主:成都市金牛城建投資有限公司
項目麵積:39795平方米
項目建成時間:2019年
主持建築師:鍾淩
建築設計:Ahn Yunsil、Ellix WU、張丹鳳
攝影:吳清山
More: DUTS杜茲設計 http://www.dutsdesign.com/
Contact:contact@dutsdesign.com
Project:Jinniu District Library and Waihuacheng Middle School,
Location: Jinniu District, Chengdu, China
Client: Chengdu Jinniu Urban Construction Investment Co., Ltd
Area: 39795 sqm
Date of Completion: 2019
Architect studio: DUTS Design
Architect in charge: Ling Zhong
Design Team: Ahn Yunsil、Ellix WU、Danfeng Zhang
Photographs: Qinshan Wu
DUTS Design: http://www.dutsdesign.com/
Contact:contact@dutsdesign.com











































