全球設計風向感謝來自 長空創作 的住宅/別墅項目案例分享:

家 不僅僅是物質的填充,更應該有精神的渲染。
Home is not only a material filling, but also a spiritual rendering.
而H+中的“+”,就是我們的生活。
And the “+” in H+ is our life.
本案坐落於玉溪 · 城市林語。
This case is located in Yuxi · Urban Forest Language.


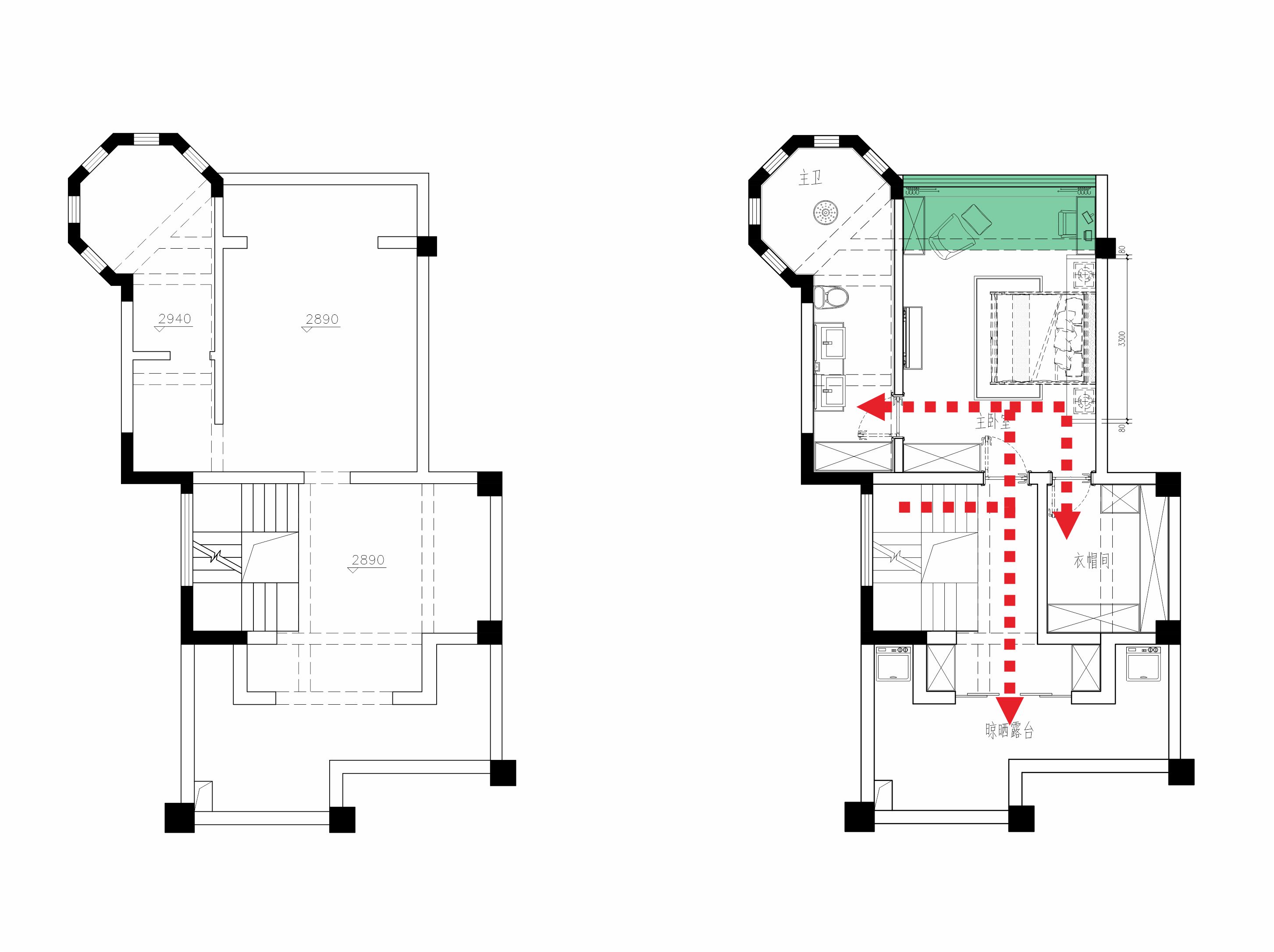
原始一層的空間布局和動線存在很大的問題。
There are big problems with the spatial layout and circulation of the original first floor.
於是我對它進行了改造,除了解決空間布局和動線流暢問題,另外還增加了獨立的餐廳和茶室。
So I modified it. In addition to solving the problem of spatial layout and smooth movement, I also added an independent restaurant and tea room.



玄關是對於家來說是很重要的部位,進門的第一印象就是玄關。於是我在玄關設計上引入了“家中四季”的概念。
The entrance is a very important part of the home, the first impression of entering is the entrance. So I introduced the concept of “Four Seasons at Home” in the hallway design.
而承載四季的是什麼呢?我想到了書頁。於是呈現了家中有四季的意境。
And what is it that carries the four seasons? I thought of the page. So it presents the mood of the four seasons in the home.




與業主交流時,我發現她特別喜歡看書,且家中自有大量藏書,同時她希望在家中營造良好的閱讀氛圍。
When communicating with the owner, I found that she particularly likes to read books, and she has a large collection of books at home, and she hopes to create a good reading atmosphere at home.
於是我想到圖書館,它有高高的書架和取書的梯子。
So I thought of the library, which has tall bookshelves and ladders for books.
我將這想法融入設計中,圖書館與家的結合就此出現,因此我給本案提名為《書境》。
I incorporated this idea into the design, and the combination of library and home emerged, so I nominated this case as “Book World”.








書房的設計我延續了“圖書館”的概念,營造一個明亮輕鬆的閱讀空間,讓家人在此享受閱讀的樂趣。
The design of the study room continues the concept of “library”, creating a bright and relaxing reading space, where family members can enjoy reading.





一個家,總有著承載記憶和感情的東西,我想這些東西保留下來是有意義的,於是我將它們放到長輩房中。
A home always has things that carry memories and feelings. I think it makes sense to keep these things, so I put them in the elders’ rooms.

通過對空間功能的重組,給業主創造了理想中的衣帽間和衛生間。
Through the reorganization of the space function, an ideal cloakroom and toilet were created for the owner.
設計主臥時,我想起在大興安嶺度假時的情景。
When designing the master bedroom, I remembered my vacation in Daxinganling.




大雪過後森林靜悄悄的沉睡了,而我在林中的小木屋裏烤著火。
After the heavy snowfall, the forest fell asleep quietly, and I was on fire in the log cabin in the forest.
看窗外白雪皚皚,屋裏的我感到一絲暖意流入心中,這是幸福的感覺,我希望將這種幸福傳遞。
Looking at the white snow outside the window, I feel a trace of warmth flowing into my heart. This is a feeling of happiness, and I hope to pass on this happiness.
於是我設計了溫暖而靜謐的就寢空間。
So I designed a warm and quiet sleeping space.

衛生間是品味的象征,它不應該隻是空間中的邊角料。
The bathroom is a symbol of taste, it should not be just leftovers in the space.
它承載著我們生活中的日常,洗滌我們的身體,除去汙垢,還原最美的自己。
It carries the daily routines in our lives, washing our bodies, removing dirt, and restoring the most beautiful self.
它為什麼不可以陽光燦爛?空氣清新?於是通透明亮的衛生間就此誕生。
Why can’t it be sunny? Fresh air? Thus the transparent and bright bathroom was born.

超大的頂噴花灑,讓人隨時可以體驗雨中沐浴的感覺。
The oversized top spray shower allows people to experience the feeling of bathing in the rain at any time.




我非常喜歡一句話:設計是為人而設計的,服務於人的生活需要,才是設計的最終目的。
I like a sentence very much: Design is designed for people, and serving people’s needs in life is the ultimate goal of design.

一杯一盞,一座一忘
One by one cup, one by one forget
眼裏無塵,心境無暇
No dust in the eyes, no time in mind
閑消半日,暫消俗慮
Idle for half a day, for the time being
卷冊之間的文字,流淌著千百年來的脈脈深情
The words between the volumes flow through thousands of years of affection
它可溫暖冬寒,也可告慰餘生
It can warm the winter and comfort the rest of your life
吐故、納新、修身、律己、閑讀,暖心便是“書鏡”
Talking about the old, accepting the new, self-cultivation, self-discipline, leisurely reading, heart-warming is the “book mirror”
∇ 一層平麵圖

∇ 二層平麵圖

∇ 三層平麵圖

項目信息
項目名稱:書境
設計主題:以書為境
項目地址:雲南省玉溪市城市林語
項目麵積:540㎡
設計機構:長空創作
聯係郵箱:ynckcz@qq.com
設計主創:靖旭初
設計團隊:張寶華 劉思唐
項目攝影:靖旭初
項目主材:大理石,實木地板,胡桃木飾麵
設計時間:2018年
竣工時間:2019年12月
Project Name: Book Environment
Design theme: book as the environment
Project address: Urban Forest Language, Yuxi City, Yunnan Province
Project area: 540 square meters
Design agency: Changkong Creation
Contact email: ynckcz@qq.com
Designer: Jing Xuchu
Design team: Zhang Baohua Liu Sitang
Project Photography: Jing Xuchu
Main materials of the project: marble, solid wood flooring, walnut veneer
Design time: 2018
Completion time: December 2019









