全球設計風向感謝來自 十方建築設計有限公司 的餐飲空間項目案例分享:
【宋朝餐廳】顧名思義設計的文化背景為宋朝文化,
設計師采用了天然材料與解構的設計手法來呈現當代的宋朝美學餐飲。
從史上頗高藝術造詣的宋徽宗皇帝所繪的《瑞鶴圖》中提取仙鶴元素做為空間中不可或缺的裝置藝術。
將宋人生活四雅——點茶、焚香、插花、掛畫潛移默化植入餐廳,
使更多的人在嘈雜的社會中能靜下心來享受一份宋宴。
[Song Dynasty Restaurant] as the name implies, the cultural background of the design is Song Dynasty culture, Designers use natural materials and deconstruction to present the contemporary aesthetic catering of Song Dynasty. The crane element is extracted from the painting of crane drawn by Emperor Huizong of Song Dynasty, who has high artistic attainments in history, as an indispensable installation art in space. The four elegance of Song people’s life — ordering tea, burning incense, arranging flowers, hanging pictures, imperceptibly implanted them into restaurants.
品茶區頂上利用軟膜透光模擬天井自然光,借一束天光品一壺茶。
On the top of the tea tasting area, the soft film is used to transmit light to simulate the natural light in the patio.
設計師在二層品茶區巧用移動隔斷讓公共區域與包廂的空間多些靈活性,應需而用。
The designer skillfully uses the mobile partition in the tea tasting area on the second floor, so that the space of public area and box is more flexible and can be used on demand.
樓梯處設計師采用解構手法,用石材與鋼板相互碰撞,給於空間多重層次與結構。
樓梯下設置《瑞鶴圖》中提取的仙鶴造型藝術雕塑與多媒體中流動的瀑布從而增強空間的趣味性的同時也增強用戶的對空間記憶點。
The designer at the staircase adopts the deconstruction technique, using stone and steel plate to collide with each other to give the space multiple levels and structure.
Under the stairs, the crane plastic sculpture extracted from “Rui he Tu” and the flowing waterfall in multimedia are set up to enhance the interest of the space and enhance the user’s memory of the space.
當人在行走在走廊中水霧徘徊在腳下,金屬格柵後置水景中兩隻不鏽鋼仙鶴會隨著腳步的移動他也隱約在揮動著翅膀,仿佛在向我們打招呼。
When people are walking in the corridor, water mist lingers at the foot, and two stainless steel cranes in the waterscape behind the metal grille will follow the movement of their feet. They also vaguely wave their wings, as if to say hello to us.
宋人生活四雅中插花在空間中亦多處體現,幹枯的枝幹遇上鮮花,一麵死亡,一麵重生!
In the four elegance of life in Song Dynasty, flower arrangement is also reflected in the space. When a dry branch meets a flower, one side dies and the other side reborn!
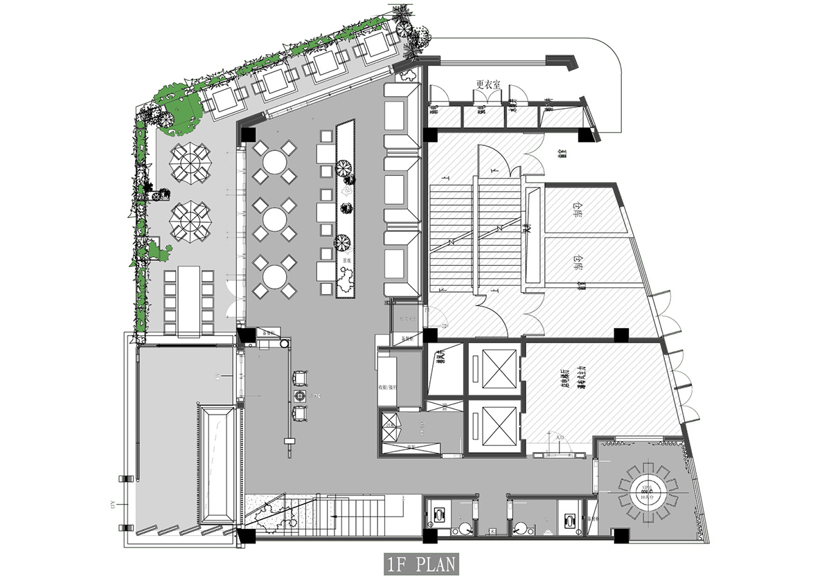
∇ 一層平麵圖
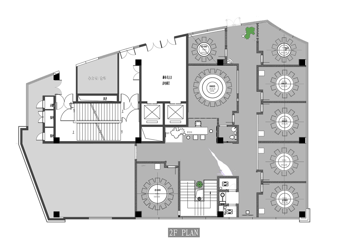
∇ 二層平麵圖
項目信息
設計出品:十方建築設計有限公司
項目地點:安徽蚌埠市
項目麵積:650平方米
竣工時間:2019年12月
設計主創:許俊俊
設計團隊: 李洋、吳莉
主要材料:火山岩、鋼板、榆木、夾娟玻璃





























