全球設計風向感謝來自 長空創作 的民宿空間項目案例分享:
悅蓮莊達布墅院位於美麗神秘的瀘沽湖
大落水摩梭古村落
依格姆⼥神⼭⽽⽴,傍瀘沽湖⽽建。
前院靠湖,後院望⼭,別致⻛景,⼀覽⽆餘。
晨起靜心品茗眺望煙霧繚繞的格姆女神山,切身體會“神山仙島畫湖中,日照三時景不同”的世外仙境。
設計,擴大了湖景遠山在第一視覺的驚豔
讓人感受到這是一個可以靠近、可以依存
可以感受呼吸的地方
恰到好處與瀘沽湖相融
感受四季變幻的自然更替
站在達布的窗前,看四季變幻,賞四時不同。
春 望神⼭⽩雪皚皚
夏 看湖岸⽣機盎然
秋 賞明⽉星河璀璨
冬 觀西伯利亞海鷗遠道⽽來
可謂是,神⼭仙島畫湖中,⽇照三時景不同。
設計,把民族特色刺繡融化在空間裏
融化在場景裏
室內⻛情布幔與壁內⽊堆的奇妙搭配
舒適愜意的茶室、通透精致的庭院
以及開窗及見瀘沽湖的客房
集本地摩梭族⻛情和現代混搭⻛格於⼀體
山野湖川風光融於室內
年歲光景在窗影之間
感受日出與日落餘暉
隔絕了往⽇喧囂
隻剩下⾃然浩瀚帶來的震撼
穿梭在摩挲風土人情裏
閑暇時在前院靜坐茗茶
臨湖聽⻛
⻛⾥感受億萬年瀘沽湖的潮起潮落
置⾝其中,猶如⾝處平⾏時空
在時間和空間裏不斷延續、伸展
一場山水漫旅,風煙環抱,天山共色
遊走其間,喚起人在畫中遊,意趣自橫生
唯親臨
方知出塵意
∇ 立麵圖
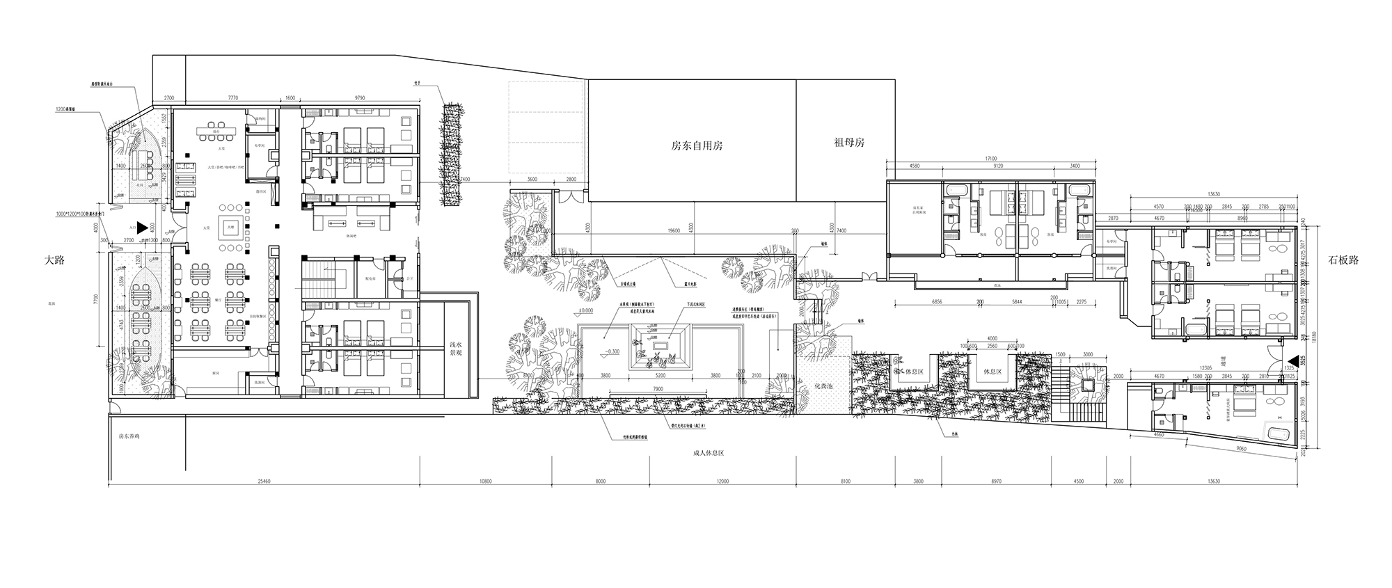
∇ 平麵圖
項目信息
項目名稱:達布墅院海景民宿
項目地址:雲南省麗江市寧蒗彝族自治縣瀘沽湖大落水村14號
設計主題:融入自然
項目麵積:2000平方米
項目造價:600萬
設計機構:長空創作
設計主創:張寶華
設計團隊:劉思唐 靖旭初 蔣應強 王春藝 李泉江 周林華
項目主材:大理石、原木、瓷磚、刺繡
設計時間:2018年1月
竣工時間:2019年9月
聯係郵箱:ynckcz@qq.com
公司官網:www.ckcz.cn



































