全球設計風向感謝來自 上海馥高設計 的軟裝方案/售樓處空間項目案例分享:
台州中天望江府|顛覆界限,經典時尚與東方寫境的交融
猶如一幅清雅的雲間水墨畫,立於其間的白鶴或展翅而欲飛,或悠然而舒展,無添濁色,卻以寥寥數筆渲染了極致的氣韻之美,為中天望江府勾勒出別開生麵的序幕。
經典再譯
徑直踏入,多元且奇異的情景向內正式展開。以創意的思索拆分經典的寶格麗戒指元素,變幻出各具特色的環形結構設計。接待區上空點綴著一串“會發光的珍珠項鏈”,與金色的幾何台麵共同重構時尚新勢力。
旁側,蜿蜒盤旋的彩色景觀帶一直延伸至盡頭,那夢幻且耀眼的色彩組合完美契合寶格麗設計的精髓,而精致的鑲嵌形狀和創新的呈現方式則引領人們深入感受藝術的魅力。
進入沙盤區域,滿目星光流轉,隻為夢想中的場景而閃耀,以尊貴的儀式感向未來的美好生活致敬,同時波浪式的起伏為空間營造律動的視覺畫麵,形成特有的節奏感。
雅致東方
以現代手法的轉譯和重構來詮釋新時代的雅致東方,讓東方水墨的意境之美融於環境且由此暈染散開。前廳接待處獨設的簡約花藝與好似宇宙星球的藝術裝置共同佇立,伸展出自然的生命力。
對稱式結構的通體收藏櫃局部分隔了深入洽談區,窗外的景色可以完全顯露。創造一麵縱橫交錯的線性隔斷牆並零星點綴著琉璃燈飾,虛與實,顯與隱,互相作用成就視覺的張力。
容納石頭的玻璃裝置彰顯了大自然的鬼斧神工。汲取自東方意境中經典的山石元素,以沉穩且內斂的存在為VIP室烘托出雅致的格調。
靈感源於水中漣漪的壁燈設計隨處可見,定格了轉瞬即逝的美感,同樣給予一種東方禪意之美。透過天然的大理石紋理描繪洽談區場景,和諧的天花留白釋放了無限的想象空間。
愜意時光
不同區域的細節處充盈著浪漫且夢幻的藝術裝置,在不同花語的環繞中等待著觀賞的人們。存在物、情境與人的多向互動激活了場景活力,並不斷發掘出生活的趣味性。
以國際化視野融自然、藝術和時尚於東方意境中,創造出契合現代生活的品質居所。東方與西方,現代與傳統,顛覆界限,碰撞衍生出對未來美好生活的暢想,並重新定格了家的溫度。
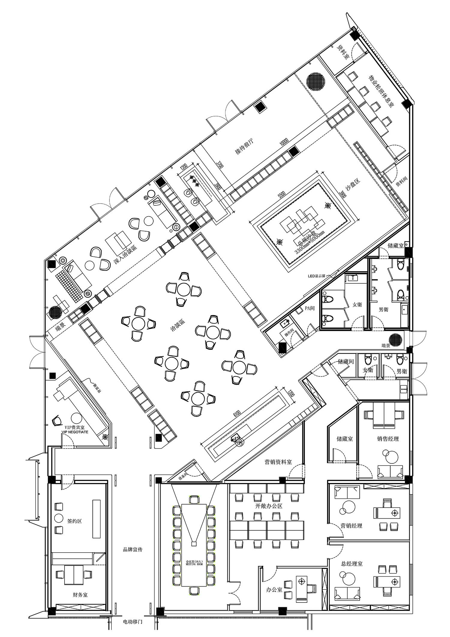
∇ 平麵圖
項目信息
項目業主:中天美好集團
項目名稱:中天·台州望江府
項目地點:浙江省台州市
項目類型:售樓處
項目麵積:460m²
完工時間:2020.10.25
設計範圍:室內軟裝設計與陳列布置
硬裝設計公司:杭州潘天壽環境藝術設計有限公司
軟裝設計公司:上海馥高設計(www.chicforgo.com)
攝影公司:三像攝






































