全球設計風向感謝來自長空創作 的住宅/別墅項目案例分享:


港灣
在繁華似錦的城市尋覓一靜處,詮釋內心之所向的現代中式居住空間,
給予熱愛生活的人一處歸心之所,在心靈港灣,尋得生活之本義。






















日常平凡的小物件卻是越經得住時間的打磨、審美的挑剔,有著不經意的浪漫與溫馨之感,
鬆軟的坐榻、紙上未幹的字跡、排列有序的茶具、幾隻兔尾草。














設計在有限的空間構建日常生活方式的詩性時間,安放居住者的靈魂與情感,詩性時間即是循環的、永恒的、私人的、靜謐而安然的港灣。












∇ 負一層平麵圖

∇ 一層平麵圖

∇ 二層平麵圖

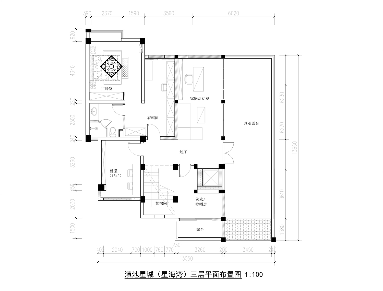
∇ 三層平麵圖

項目信息
項目名稱:港灣
項目地址:雲南昆明
項目麵積:560平方米
項目造價:380萬
設計機構:長空創作
聯係郵箱:ynckcz@qq.com
設計主創:蔣應強
設計團隊:劉思唐 張寶華 周林華 李泉江 王春藝 靖旭初
項目攝影:靖旭初
項目主材:原木、木飾麵板、古銅、大理石、鋼材、玻璃等
設計時間:2018年2月
竣工時間:2019年12月
版權聲明:本站所有文章除投稿授權發布外,其他文字內容均為原創,享有著作權保護,未經許可不得以任何形式進行轉載(包括且不限於:媒體、網站、公眾號等)。所有項目照片/設計圖形版權歸原作者所有。本站部分內容源自網絡公開資源或用戶分享,如若侵犯了原作者的合法權益,可聯係我們進行處理。









