全球設計風向感謝來自 杭州DNA邸內建築設計 的住宅空間項目案例分享:
一切從簡,結構重塑和信息的構築,是對現代主義的醒悟。現代設計給人們提供了新的思考方式,人們通過工業產品和彼此間的溝通對生活品質有了新的體會。
是社會主義風潮帶動了包豪斯思想的形成——原研哉
“剛柔相濟” Hard and Soft
該項目位於杭州,在符合舒適性與實用性的前提下,發揮空間優勢,表現現代年輕化的居家風格。不過分追求裝飾性和複雜化,堅持思想融入設計。
The project is located in Hangzhou. Under the premise of comfort and practicality, it will give full play to the advantages of space and express a modern and young home style. Not excessively pursuing decoration and complexity, insist on integrating ideas into design.
對於簡約,設計師理解為選材上的克製,用色的純粹,不同的功能細節來支撐空間的平衡。材質的選擇在冷暖調和中也顯得剛柔相濟。
For simplicity, the designer understands the restraint in material selection, the use of pure color, and different functional details to support the balance of space. The choice of material is also a combination of rigidity and softness in the harmony of cold and warm.
“輕盈與熱情”light and warm
設計師經過了反複的考量和打磨之後生成對空間結構的調整和重塑,增加了空間的通透性和利用度。在保證實用性的前提下,為空間注入了時尚簡約的氣質。
After repeated consideration and polishing, the designer has adjusted and reshaped the space structure, which has increased the permeability and utilization of the space. On the premise of ensuring practicability, it injects a stylish and simple temperament into the space.
不規則的幾何線條互相結合,無裝飾的立麵造型,紅與黑的對撞色構成了一個自由開放的幾何平麵,為空間奠定了風格基礎,為其注入了熱情和溫度。
Irregular geometric lines are combined with each other, the undecorated facade shape, and the contrasting colors of red and black form a free and open geometric plane, which lays the style foundation for the space and injects passion and temperature into it.
輕盈簡約的線條感、木質與燈光的結合,將原本帶有煙火氣的餐廳多了一份對品質生活的儀式感。
Light and simple lines, the combination of wood and light, for dining room that have a family atmosphere added a ritual feeling to quality life.
色彩與幾何的設計理念已夠強烈,因此設計師對於門套進行減法處理,打破常規。創造出有趣的互動視覺。
The design concept of color and geometry is strong enough, so the designer subtracted the door cover to break the routine. Create interesting interactive visions.
當陽光撒進書房的一角,幾本喜愛的書在椅邊,舒適而愜意。
When sunlight scattered into the corner of the den, a few favorite book in the edge of a chair, comfortable and cozy.
“至簡與內斂” simple and Restrained
臥室延續了簡約的氣質,不需要過多的裝飾,呈現優雅內斂的空間。每一處的細節,都表現了設計師對審美質感的要求。
The bedroom continues the simple temperament without excessive decoration, presenting an elegant and restrained space. Every detail expresses the designer’s requirements for aesthetic texture.
低飽和度的灰色和米白色,自然與光影的運用,營造出溫馨舒適的氛圍。
Low saturation gray and off-white, the use of nature and light and shadow create a warm and comfortable atmosphere.
梳妝台處紅色與黑色的色彩對比,增加空間的層次感。
The colour contrast of red and black is passed in dresser, the administrative levels that increases a space feels.
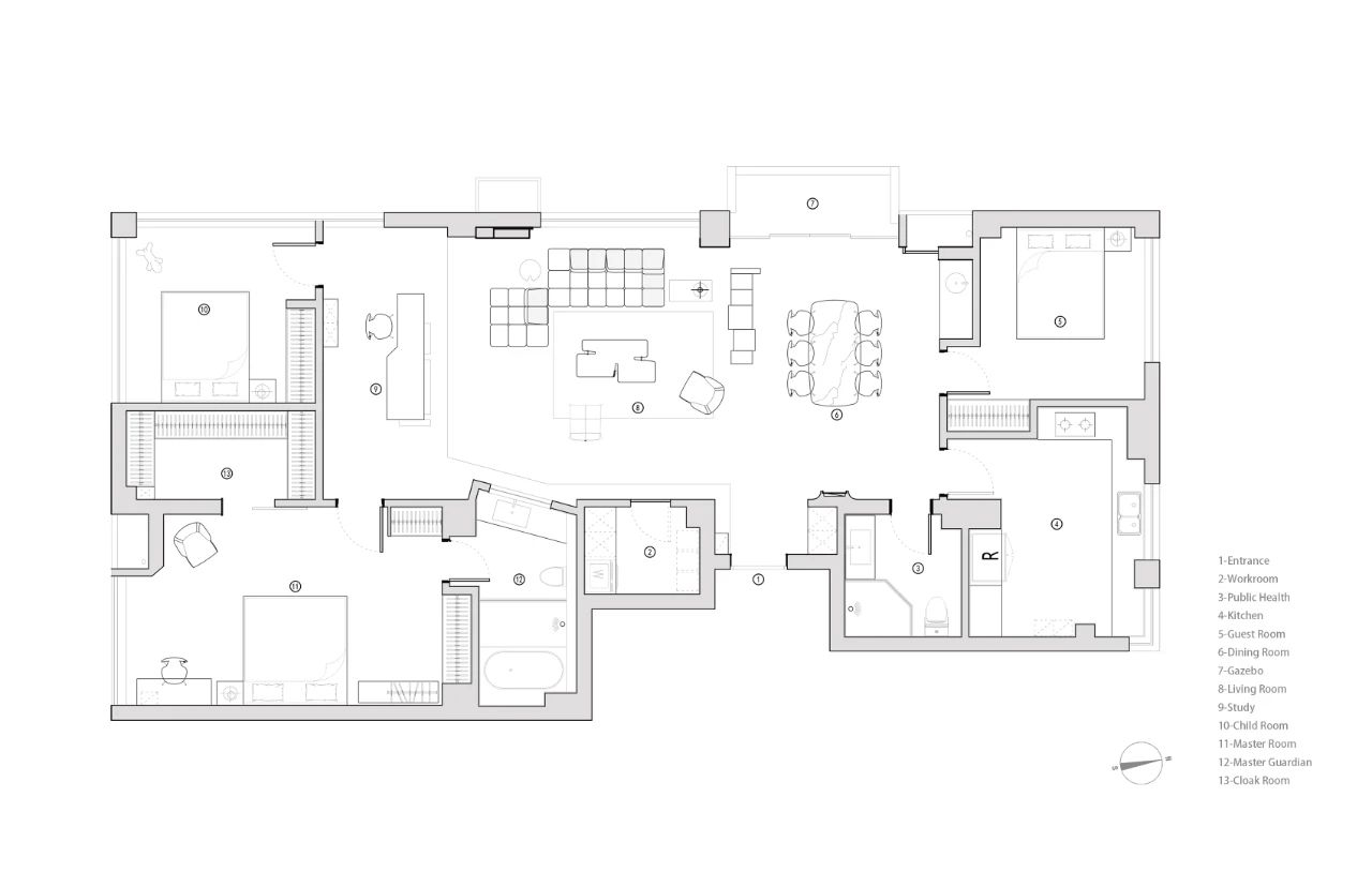
∇ 平麵圖
∇ 軸測圖
項目信息
項目地點:中國杭州
項目麵積:170㎡
設計時間:2019.5
主案設計:夏偉
設計團隊:楊晨愉、sasa
空間攝影:陳培國
主要材料:瓷磚、木地板、藝術塗料、不鏽鋼、洞石



































