全球設計風向感謝來自 如墨設計 的辦公樣板間項目案例分享:
杭州,山水相依,湖城合璧,古老文明與創新創意交迭,延伸為當代的城市文脈。而這座最能代表江南韻味的城市,已連續第14年蟬聯“中國最具幸福感城市”榜單。
Hangzhou is a city that boasts picturesque scenery and features integration of old civilization and innovation. As an epitome of Jiannan charm, it has been included in the “Happiest Cities of China” list for 14 consecutive years.
∇ 區位圖
中豪·五福國際,位於錢江新城江河彙流區核心,以世界級標準打造多元城市綜合體。繼國際售樓處項目合作之後,如墨設計再度受邀為其辦公室樣板間進行室內一體化設計,以適變的思考探究人的本質需求,創造出既兼具人文美學與自由,又給予多元選擇的國際化辦公場景。
Located in Qianjiang New Town, Hangzhou, Zonhow · 5Fook International is a world-class urban complex that integrates working, exhibition, commercial and residential functions. After finishing the sales center of the complex, RUMO DESIGN was invited to conceive its model offices.
The design team explored the essential demands of people based on the idea of adaptability, and created diverse modern office scenes that combine humanistic aesthetics and flexibility.
∇ 建築圖
一變三|以“空中會客廳”為概念,演繹Loft辦公樣板空間想象
One floor, three offices
Taking “Urban living room in the air” as the design concept, RUMO DESIGN conceived 3 loft-style model offices.
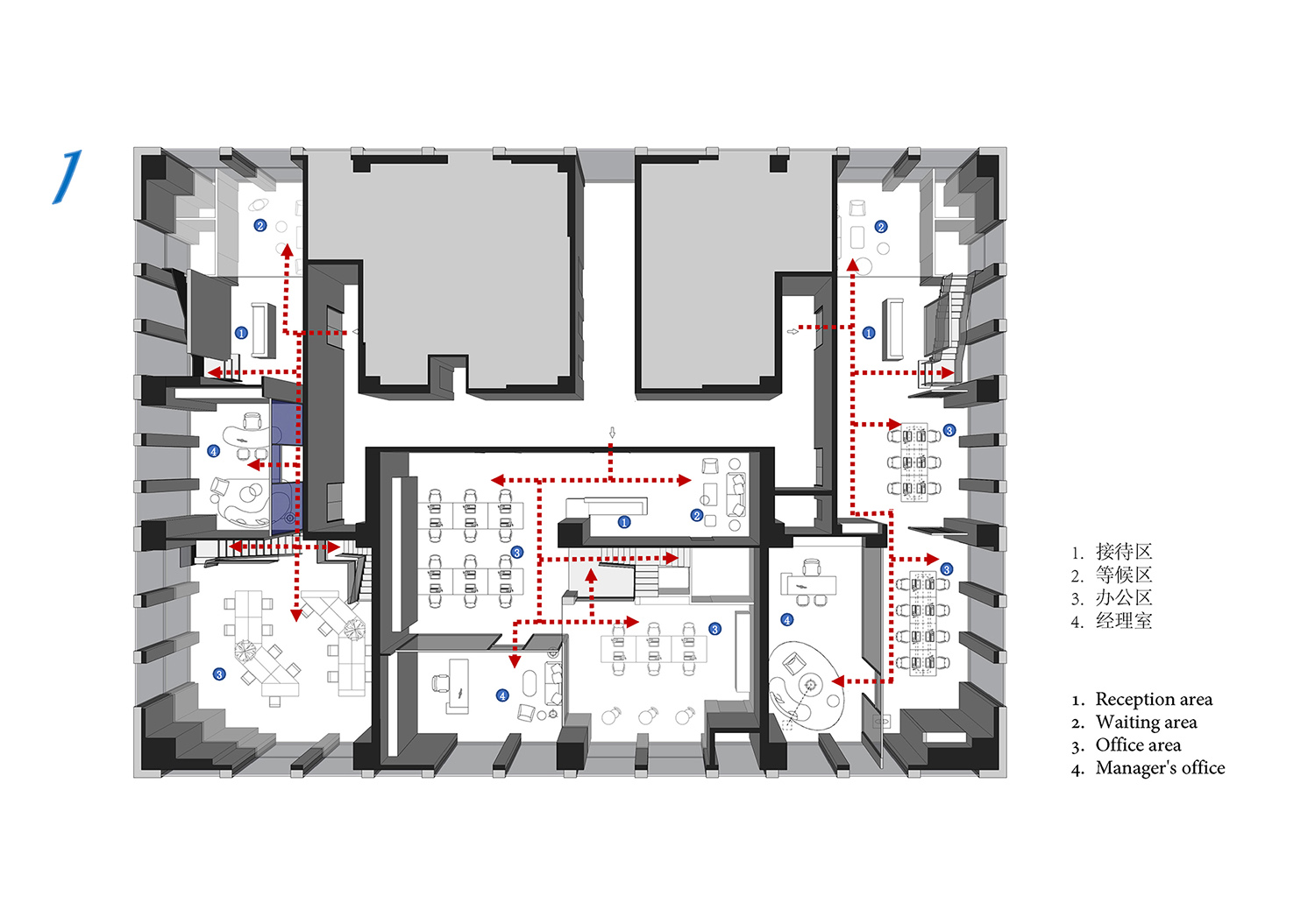
三個辦公樣板位於這座5A級寫字樓的同一層,設計團隊依據空間構造和使用者偏好,推導出各不相同的定位與風格,但都兼顧商務辦公、社交及休閑等多重需要,完成人性化布局的同時充分雕琢每一個細節。
The three offices sit on the same floor of a 5A-class office building. Based on spatial structures and the preference of users, the designers worked out different styles and positioning for the three workspaces. However, they all satisfy multiple demands such as working, socializing and leisure, and showcase human-centric layout as well as meticulous details.
∇ 布局圖
01 西邊套:時尚弄潮 West model office: stylish
靜謐且耀眼的藍映襯在白、灰鋪陳的底色中,以極具衝擊力的視覺元素激活空間活力。前台空間糅合多元卻不失驚喜,給予進入者無限的遐想。
The space is dominated by white, gray hues and highlighted by eye-catching blue color. Contrasting tones produce dramatic visual effects, and at the same time energize the space. The reception area integrates diversified elements, to create the unexpected and evoke infinite imagination.
猶如絢爛綻放的花朵造型座椅靜置於等候區,中央則安放著交錯疊層的透明茶幾。其間碰撞交融的烈焰紅與經典藍搶奪了所有目光,衍生出兼具時尚新潮與藝術氣息的場景。
Flower-like chairs are set at the waiting area, where a layered transparent tea able is placed at the middle. The collision of red and blue creates a visual highlight, and generates a stylish, artistic scene.
工作區通道演繹潮流前線,極富創意的時尚大片與藍色所代表的潮流色彩席卷而來,創造出充滿趣味的互動區域。
The passageway is trendy. Creative fashion photographs and stylish blue hues make this area playful and attractive.
內部私密的工作空間反之呈現出舒適的氛圍。
The inner working area is comfortable and private.
向裏推進,愈加自然和時尚的細節設計全麵舒展。天花處縱橫交錯的線條在燈光的渲染下為空間注入律動節奏,經典且優美的座椅盡顯時尚元素的美感。
It’s accentuated by natural and fashionable details. Intersecting strip lights on the ceiling inject a sense of rhythm into the space, while the classical and graceful chairs showcase a fashionable aesthetic.
經典永不落的黑白配描繪著階梯通道,與腳下間隔閃耀的星光共同煥新先鋒格調,行走中旁側點綴的藝術裝置隨即成為一處景觀。
The staircase area is depicted by white and black hues. Starry lights inserted into stairs as well as the artistic installation beside create fantastic visual and walking experiences.
二層會議室與辦公室延續時尚簡約的風格元素。利用前沿且通透的亞克力櫃分隔辦公區域,同時為場景營造了獨特的畫麵。拋棄繁雜的修飾,空間以設計的質感和色彩的感染力演繹時尚先鋒之所。
The meeting room and working areas on the second floor adopt a modern, simplistic design style. A stylish and transparent acrylic cabinet separate the two working areas, while at the same time creating unique spatial scenes. The interior design shakes off complicated adornments, and produces a trendy workspace via tasteful elements and a powerful color palette.
02 南邊套:自然雅致 South model office: natural and elegant
木質顯露的肌理與原始的木色於前台處強烈地霸占了視覺畫麵,一直延展至旁側的等候區。塑造一麵通體綠植牆,將自然的氣息擴充到極致,以開闊的姿態和親近的色彩為進入者帶去生機與活力。
The warm tone and textures of natural wood dominate the reception desk area, and extend to waiting area on the side. The full-height greenery wall creates a breathing space, and injects natural vigor into it.
順應空間格局將辦公區位穿插其中,自然形成不同角度的排位特點。不規則線條與跳躍的色彩燈光相互協作,為天花設計解構個性且特有的美感,營造出激活辦公空間的視覺律動。
Working zones are subtly arranged within the space. Irregular lines and alternating colors of lights make the ceiling distinctive, and activate the workspace visually.
處於場景中心的階梯通道沿用木質鋪陳且交錯柔和的燈光,給予悠長深邃的感受,同時以獨特的位置創造了人與景的趣味互動。旁側另陳設的藝術裝置,幫助增添了人文藝術的氣息。
Set at the center, the stairs are paved in wooden materials and complemented by soft light, which generate a sense of depth. The design tries to stimulate users to interact with spatial scenes as walking on the staircase. Moreover, the art installation on the side adds a humanistic and artistic touch to the space.
打破傳統布局,以開放式設計打造茶水區域,毗鄰辦公區位則為員工提供了及時所需。休憩放鬆的時刻靜坐於窗邊,或遠眺室外的風景,或放空自我。
Situated next to working area, the break area adopts an open spatial pattern. It allows the employees to relax, enjoy outdoor view and meditate.
奇特的鏡像隔斷連接二層會議室與辦公室,擴展了小空間的視覺尺度,同時形成相應的趣味。
The conference room and the working area on the second floor are partitioned by glass, which visually expands the space and injects playfulness into it.
獨立且開敞的辦公空間充盈著自然溫馨的氣息,以高質感的表達營造輕鬆愜意的環境氛圍。
The working area is independent yet open, infused with a natural, cozy and warm atmosphere.
03 東邊套:幾何摩登 East model office: geometric and modern
潔淨的空間基底中流淌著獨具魅力的幾何語彙,以多樣的姿態充盈了視覺感官。摩登奇異的畫麵意境完美呼應著每一個點、線、麵的配合,擺脫平庸的同時引導了注意力。
The white, clean space is enriched by geometric design languages. Fantastic modern scenes echo with the mix of points, lines and planes, together creating attractive visual effects.
錯落疊層的大理石階梯與曲折婉轉的燈飾於前台處演繹極致的幾何律動,等候區則以留白手法匹配富有設計感且高品質的舒適配置。
Stacked marble stairs and the twisting lighting fixture produce charming geometric rhythm at the reception area. The waiting zone features large areas of white surfaces, which are complemented by comfortable modern furniture.
橫向舒展的開放式布局給予一層空間通透且自由的氛圍,隱約之美的線性隔斷讓場景相對分隔又絕不割裂,由此顯露出交互的趣味性與工作的靈活性。
The horizontal and open spatial pattern gives the first floor a transparent and free ambience. Besides, grille partitions separate yet connect different scenes, hence showcasing flexibility and stimulating interaction.
幾何圖案拚接而成的地毯豐富了色彩層次與張力,延伸至空間整體。
The carpet is highlighted by geometric patterns, which extends throughout the space and enriches its color palette and tension.
平行交錯的通體收藏櫃以獨特的視角創造了靚麗的景觀,也為內側私密的工作區域戴上了華麗的麵具。
Several full-height cabinets are brought in, which not only optimizes visual experiences but also offers privacy for the inner working area.
柔和的燈光分布於天花處,或照亮四周邊界,或聚焦主題。同樣作為局部修飾與自然光相互協作,幫助營造溫馨、舒適的工作氛圍。
Lights are either dotted or inlaid with geometric patterns on the ceiling. The lighting coordinates with natural light, and helps create a warm, cozy working atmosphere.
以簡潔的曲線勾勒二層空間變化,設計與人文藝術的美感彌漫於每個角落,辦公時間同樣也能享受自由與“家”的舒適。
Neat curves add changes to the second floor section. Characterized by unique design details and an artistic aesthetic, the second floor enables employees to enjoy a free, comfortable home-like atmosphere in the workspace.
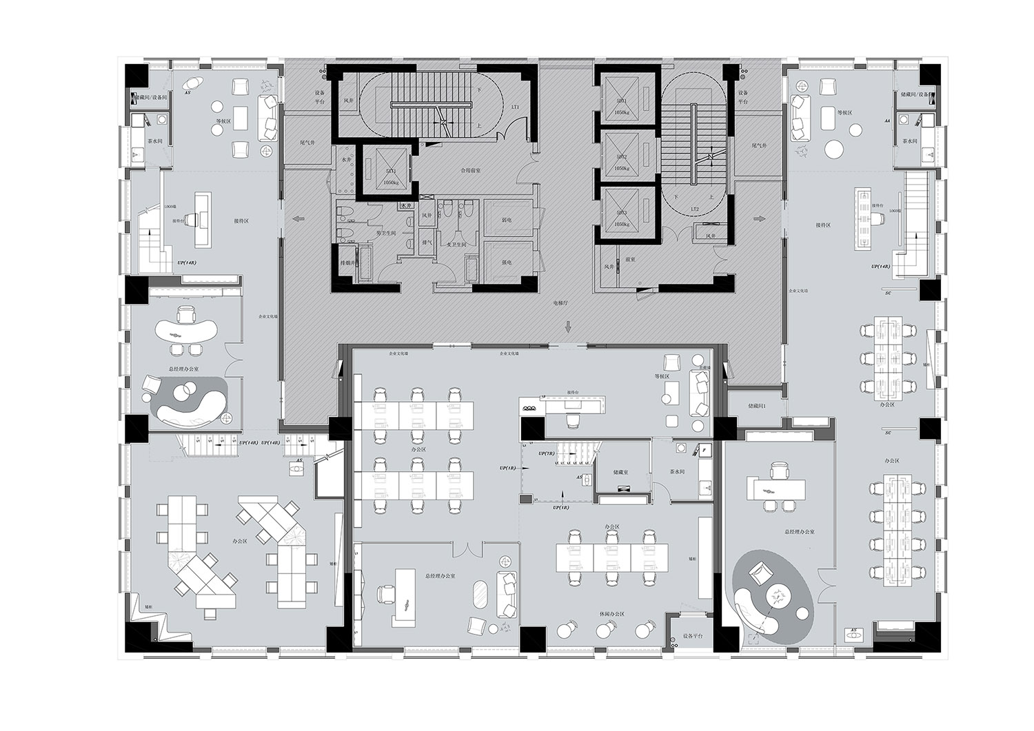
∇ 平麵圖1
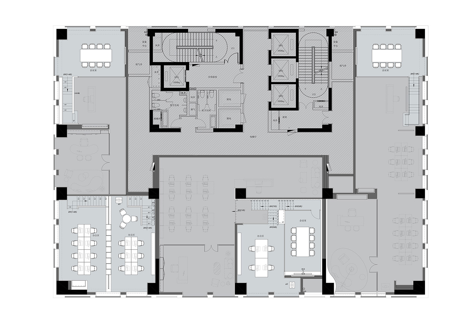
∇ 平麵圖2
項目信息
項目名稱:中豪·五福國際辦公樣板
項目地址:浙江·杭州
項目麵積:西邊套304 m2、南邊套266 m2、東邊套224 m2
完成時間:2020年7月
空間設計:如墨設計
軟裝設計及執行:如墨設計
主要材質:編織地毯、鍍膜玻璃、木飾麵、金屬
項目攝影:三像攝
Project name: Zonhow · 5Fook International Model Offices
Location: Hangzhou, Zhejiang, China
Project area: west model office – 304 m2; south model office – 266 m2; east model office – 224 m2
Completion time: July 2020
Interior design: RUMO DESIGN
Decoration design & execution: RUMO DESIGN
Main materials: woven carpet, coated glass, wooden veneer, metal
Photography: Threeimages


















































