全球設計風向感謝來自 王中丞設計事務所 的住宅空間項目案例分享:
南海飄揚而來的靈魂物件
大地的質樸與外觀相呼
讓風溫柔的吹過
讓雨水灑落到每一片土地
讓陽光真實的觸碰到你的肌膚
每開一扇窗 每踏一階步
即景應變,複歸自然
Chapter 01. 竹人以風者,四方隨之優雅
Bamboo/Wind/Elegant
這座由農藝滋養的古城,承載客家文化與高科技產業的靈魂,是淡然的竹塹風情也是新舊融合的安定。佇立百年,任由時間細細雕琢,優雅的光影化作無聲的語言,相行生趣。竹風,意味著一種生活、一種自在,一種可觀、可聞、可品的流動。竹人以風者,四方隨之優雅。
∇ 1F 停車場水牆造景
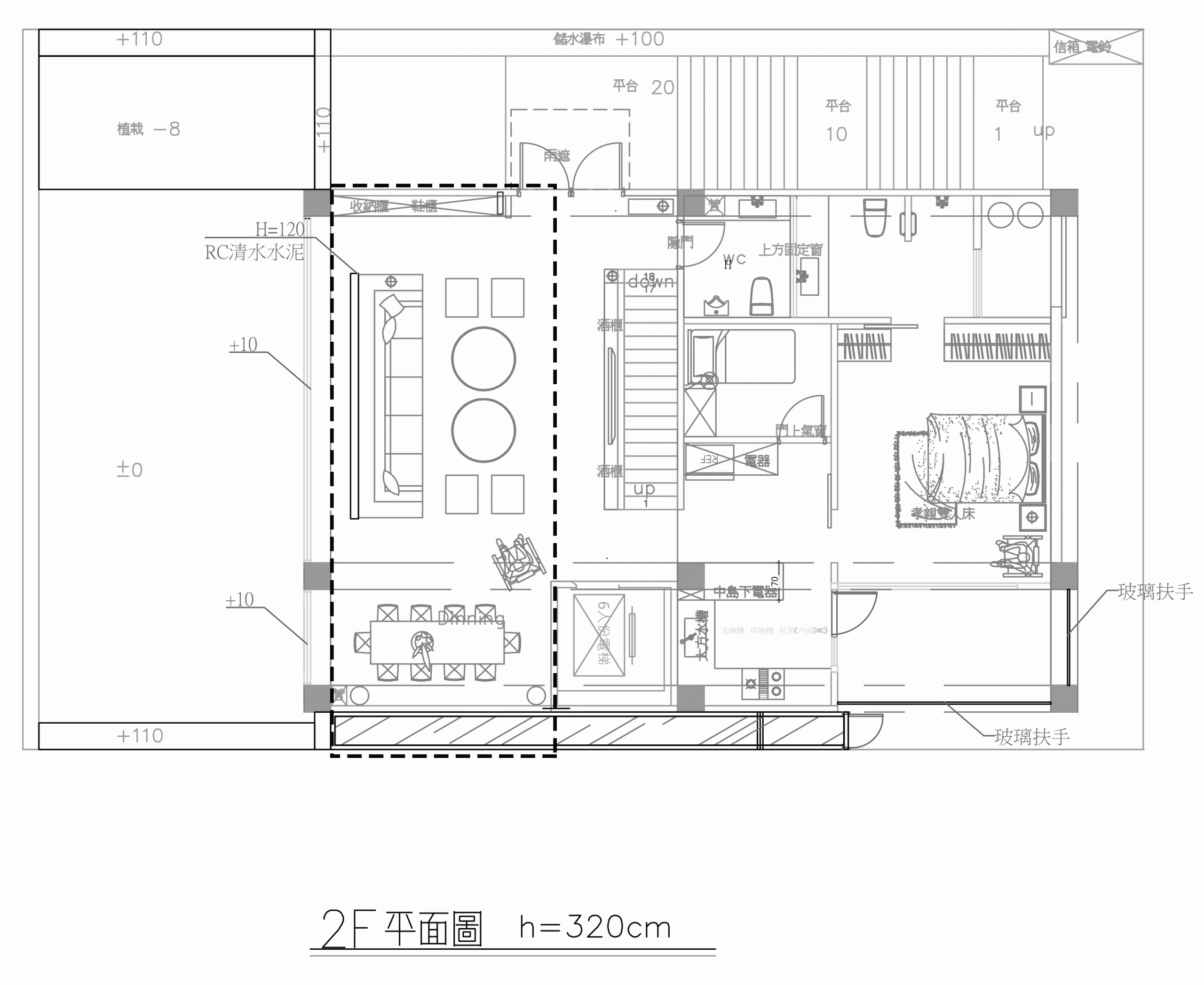
∇ 2F客廳空間,極度簡約的設計中帶有低調韻味
∇ 大麵落地窗露台,內外呼應,細語品嚐
一畝幽靜,感受隱私美學。穿梭在城市建築體之間,久在樊籠裏,唯有找到平衡才複得返人間。在淡雅從容中,找到大地、草木、河流、雲朵。篆刻著時間的痕跡,呢喃著窗外自生自長的萬物。我們打開一切感官,與自然交換蜜語。
∇ 空間寬敞而開闊,亮色沙發增添視覺張力
∇ 一角一景,都可以是美好的感受
內外對話,客廳空間可以是與自然交流的場域,可以是家庭回憶的製造機。室內妝容「裸淡」,近似大自然筆下的「素顏」。用細膩柔軟的方式來調和,家是身心的安居地。可以讓靈魂哼著旋律,可以讓我們安心的入夢,是愛是安全是牽掛是自由是承擔是選擇,是不離不棄。
∇ 南洋運回的天然石材,運用在露台牆麵,營造度假氛圍
∇ 餐廳選用不規則收邊木桌,讓餐桌上的美食更有彈性,大膽前衛的橘紅壁紙,加入線條裂縫感,成為空間的主角
簡單的設計中,我們希望帶給空間中是舒適與柔和,帶點回憶與蒐藏,把故事帶到家中各個角落,持續的創造屬於他們的日常。表象的設計,很難長久,唯有細微的思量,直入心靈的感動,才能延長溫存的時間感。
∇ 廚房空間采用ㄇ字型,簡約機能符合需求
Chapter 02. 通透的陽光盒子
House of the Sun
路樹的影子透過陽光灑落在白牆上,牆麵成為了天然的畫布,映照著四季。樹海交錯著窗棱間灑落的光,靜謐且開朗。層次分明的美學容器與自然環境和諧,白色的建築與周邊環境連成一體。建築能夠擁有非常開放的空間,並且同時具有限製空間感的雙重性。建築中的每一個元素都互相支撐、融合,彼此交疊,旨在通過開放建築角落,盡可能地在最小建築土方量的基礎上,塑造出建築特色。
暖色係可營造溫潤自然的感受,透過床具的選擇更增添溫度。窗外的露台充滿大地氣息。將蒐集的飾品布置於房間中增添意義,室內的老件、音樂、氣味、相片、風…自由且富有詩意。它們似乎會流動變化,生長呼吸,隨著空間者用者的體驗著新的世界,不斷變化。
Chapter 03. 蒐藏於細節中
∇ 主臥采用大麵壁紙,靈感來自大自然,在講述一個材質美好的故事
∇ 觸摸牆麵,細膩又不規則的線條,巧妙的與主臥融合
主臥空間
跳脫沉穩色係,加入情感元素
我們一天在家中的時間,或許就屬在臥室、床上的時間最多。可以細語呢喃、可以盡情做自己,忘掉所有的不愉快。在臥室的設計以亮橘紅搭配藍色為亮點,提醒著我們不要忘記對家的感受,應該是充滿熱情和溫度,不論你在哪裏,家永遠在這裏。
∇ 在陽光下,我們真心的日常,營造出與眾不同的氛圍
∇ 雙洗手台,使用大理石作為台麵
床頭後設計更衣室,將屋主期待的生活機能都妥善安排在私人空間裏。衛浴空間使用天然石材,方形雙洗手台下方設有收納空間,讓生活更有效率。如同藝術的雕塑與自然結合,沐浴在陽光下,踩著有硬度的石頭。一種舒暢、開闊、自由的韻律才得以產生。
∇ 浴室以石材拚貼,沐浴在原始質樸的美感之中
Gentleness —「慢 溫柔 」
溫柔是一種語言,感受到用心和細膩在設計中。帶上故事能走得更遠,喜悅和感動伴隨著這樣平凡的日常,可以獨自一人小聲呢喃,可以感受窗外的陽光和雲朵,這就是一種溫柔。透過了物件之間的對話,慢慢的這裏不在隻是睡眠的地方,而是專屬於內心的聖殿。
∇ 4F客房空間,整體沉穩卻帶溫度
∇ 陽光進入屋內,百葉窗將線條柔和的呈現
每個房間,都代表著一段故事,一份入住時的期待和開闊。你必須夠簡單,才能夠豐富,一切看上去平淡,卻平淡得近乎於自然,窗外的景致,便是這裏最美的驚喜。
∇ 尋找空間最美好、安靜的力量
∇ 多層次的顏色堆疊出空間的靈魂
室內豐盈著各種不相同的美物。說豐盈,不是指複雜的物品堆疊,看到多形的色彩。說美物,並不是指石、竹、木、皮等不同材質的形貌。眼睛所看的,耳朵所聽的,心之所向的,是如何牽動起居住者的感知。
∇ 每個物件都有著他的故事和意義,陽光下更顯耀眼
Meditation —「慢 靜心 」
以低飽和色彩營造沉穩的感受,從自然中攫取靈感,色彩飽和度低而明度高,搭配木質的紋理呈現質樸與素雅的高級質感。你會發現,世界很安靜,移除歲月的浮塵,生命不僅僅是流逝,更應該有詩意、情感、價值。觸摸一麵牆,感受他的喜怒哀樂和靜謐,讓心得到釋放和安穩。空間知道你所有的秘密,所以放下那些武裝,好好的做自己吧!
∇ 基調是素雅、淡然,像是雨天,木色帶來暖意
∇ 一盞燈 點亮 多元化的生活劇情
空間以大麵積的壁紙為基調,運用色彩和圖案訴說著獨特的性情。有溫度、興奮、輕重、柔硬、樸質等個性,各個角落都充滿了戲劇張力,給予不一樣的體驗。搭配主人的蒐藏,將他安放在最好的位置,可以是一份心意,也可以是可觀可賞的藝術昇華。
∇ 強烈的金屬光澤搭配黑色渲染,製造視覺焦點
∇ 整體以深色係為基底,搭配工業、英倫感
Accompany —「慢 陪伴 」
有別於壁紙的醒目,他是一個低調的陪伴。木質感的床頭牆麵,在陽光下將線條感釋放出來,一種粗野的原始力量,外部世界又如此豐盛,內裏的設計上,我們希望盡可能的簡單,回歸到功能本身所需。
∇ 床頭借由光源使凹凸麵更加立體
∇ 空間質感的匠心打造
∇ 內外對話,細細呢喃
Explore —「慢 探索 」
探索是一種能力,需要細細的去感受柔軟與堅定的存在,無論或坐、仰躺、歇息、玩樂都是一種直覺上的放鬆,沒有形狀隻有真摯。看得見安定與慵懶都是一種新的體悟。徹底的忘記那些庸擾世俗,打開一扇窗,撫平塵封已久的心胸,洗一場澡,得到前所未有的平靜。慢慢走,用五感去體驗,將往昔的故事、山光樹影嵌在房間裏。
∇ 磨石子將空間中的情感巧妙串聯起來
∇ 客房,潔白的情緒,清爽自在的空間感
∇ 玩味飾品與家俱搭配床頭櫃造型,感受到安定
廊道的設計,化繁為簡,對內引入充足自然天光。除了純粹的結構,在空間與時間上留白,讓時間的痕跡悄悄的離開,透過“簡”傳遞的感受,實現自然之美。建築、空間、景觀…它們如同一片片拚圖。因功能所需,因情感所求,讓空間有了溫度。人的情感,植物的生長,傢俱老件的故事,才讓這裡最終得以成為「家」。
∇ 客房的浴室和廁所分離,達到機能與感質
∇ 運用木質、竹子、大理石等讓空間顯得更柔軟
∇ 臥室的每一處都是心可以安放的角落
∇ 簡約中帶點質樸
以簡單的素色基底,搭配複古的裝飾與家具,展現空間中的質與純。整體房間的設計選用壁紙,無聲卻充滿張力與肌理,改變千篇一律的白色牆,最能代表專屬空間的一種語言。優雅又帶點趣味加上家俱和裝飾品,簡單營造寧靜的生活。好像將藝術品帶進了家中,更閒適舒服。
Chapter 04. 流動的設計 重組和添加
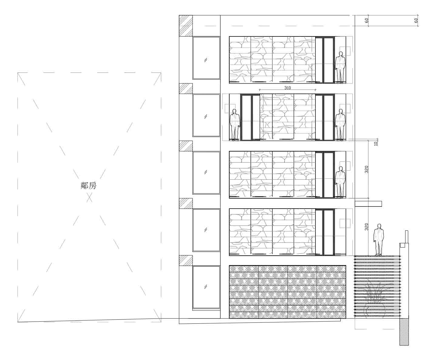
建築聯係起了家人間綿長的情感,空間創造了內外呼應的場域,在公私環境中,家人們都能找到家的歸屬感。那塊令人可以感受到安定、舒適,能夠長久窩著的地方,心可以安放的空間或角落。嬉鬧的孩子們、竹風吹過的池子、窗外飄逸的落葉。設計著重於運用流動的材料,與軟裝搭配,表述自然的原始美感。露台之間,微妙的距離則拉近了每一戶的關係。,潔白外牆與亮橘格柵相互呼應,外觀有了豐富的層次性。在變量的居所中,正是因有了這些樸實的情感注入,才讓最終成型有溫度的塊體,顯得記憶動人。
空間中有著各式各樣的獨特收集,多年韻味的高梁、精製玩味的鐵風扇、來自南洋的老物件,每樣物品都有著獨一無二的記憶,需要好好的被擺放著。將藝術與生活結合,每口呼吸都充滿故事,以窗為媒,迎接樹海天光。流動的設計,是一種新舊有趣的串連。漩渦般的吸納能力,在疊合中,打破固有屬性,將生活空間的規劃成一個,可以彈性重組和添加,旅行、城市、自然、未來都可以。
Chapter 05. 地上落水聲,俯身拾得一片雲
House of the nature
∇ 與水相望,感受動態的美
酣暢、醇和, 耐人回味 風 聲 禪 靜
風吹過樹梢發出了沙沙的笑聲,影子隨著太陽時長時短,水聲潺潺如琴音般。靈動之水從牆上湧出,形成一道水簾,落入池裏,蕩起了一圈圈的漣漪。水為生命之源,德善與品性,雅量容人。喚醒了大地,也為建築增添了動、靜皆可的生命。
∇ 樓梯無使用任何柱子設計
老子曾說,上善若水,水善利萬物而不爭。水善於滋潤萬物而不與萬物相爭,他可猖狂 可纖細 可柔軟 可冒險。與水相望,感受動態的美,忽遠又忽近,承載著撫慰靈魂的獨特。巴裏島運回的天然石材,溫柔傾瀉於綠樹風景之間,將放鬆和愜意感帶回家
Chapter 06. 構築
My house!My name!
減法設計,打破上下層的內外界限,我們期望創造出環境與居住者之間輕柔的對話,感受低調、質樸且具情感的生活。煦光與土地的氣味,是每天一早迎接的氣息,大麵開窗與露台是光影與微風的相聚。通體白色的建築顯得十分純粹與獨立,利用平向與縱向立體化,用儀式感來創作,拾級而上,通往目的地。穿透了神秘的桃花源,所有的夢想與收藏在此空間達成。品酒、影音娛樂、運動健身、收藏,滿足了對生活的向往,在這樣一個極簡的空間中,感受時間的靜止,享受水麵在陽光下波光粼粼的意境。
項目信息
設計總監:王中丞先生
專案設計: 建築設計部/住宅空間設計部
項目名稱: 浮光掠影
設計麵積:330平方米
完工時間:2020年11月
主案建材: 天然砂岩、磨石子、壁紙
攝影:光研




























































