全球設計風向感謝來自 正方良行設計 的辦公室空間項目案例分享:
流動性的空間美學,重塑自然與靈感交織的品牌空間
自然奇趣
如果能夠把花草、樹木、流水、光和風根據人們自己的意願從自然界中提煉出來,那麼人間就接近於天堂了。——安藤忠雄
環境對人產生的認知,是潛移默化而深刻的。嘈雜與靜謐、封閉與流動、粗糙與細膩,不同的環境,人的感官所感知並觸發的情緒也各異。
人類在地球生存的幾十萬年都與自然密切相處,經過漫長的進化,這種模式早已刻入我們的基因。與此相比,建成環境出現的時間還很短,所以我們天生渴望存在於有自然元素的環境。相關資料表明,如能讓室內空間有更多的自然氣息,處在其間的人們就能更好地接收、理解信息,及掌控自己的注意力。
項目位於交通樞紐主幹道,便利的交通帶來生產輸送效率的提高,但嘈雜的四周,極易對室內的功能活動形成幹擾。作為辦公和品牌展示的空間,需要有怡人安靜的氛圍和傳遞品牌的介質。
∇ 正門立麵圖
“隔”無限的空間包羅萬象,有大自然的草木、太陽、雨水,也有很多人為的嘈雜。而室內空間的奇妙之處在於,可通過建築手法有選擇地將人們不需要的事物剔除在外。
空間的轉換,需有觸發人的感官變換的漸進過程。通過蜿蜒的“橋”,曲長的路徑,拉住了至外而入的疾塵步伐。不同的節奏,示意著不同環境的開啟。
梯、方、圓,形態各異的體塊,錯落疊合。入口設計在隱於方形體塊一側,無任何裝飾的水泥灰白,有種猜不透的冷靜感,脫俗而低調的門麵躍然而現。
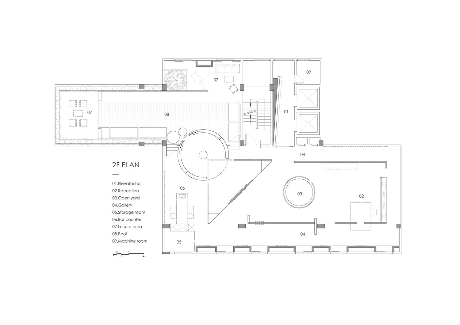
∇ 功能分析圖
二層空間用非連續性牆體框出一個“回”型走廊。虛實相間,是隔非隔,是斷非斷,於無形中營造侘靜的氛圍,隔離了外界的喧囂。
人們在空間的活動路徑,不僅可連貫成“回”字型,且可在其中“虛”隔處,隨意穿梭。用建築重塑出空間的流動性。
∇ 藝術畫廊
室內的“回”型走廊與內陽台的水池環形走廊相連,串聯成一個長路徑的“藝術畫廊”。整個空間的功能實現了多樣化和共享化,使得空間充滿想象,產生更多的可能性:交流、思考、辦公、展覽、新品發布……
“合”大自然的傑作,是對空間和藝術靈感的另一種滋養。當喧囂和浮躁褪去,水、光、風在空間中自然地流動,人們對其細微而有生命力的變幻,會有更細致的感受。因為這些靈動的存在,使得空間與人們的靈感更具生命活力。拉近人與自然的距離,是對生命、人文的一種很重要的關懷方式。
光 / 透過建築體塊的流轉
自然光給予空間特性,自然光給予建築的生命,因為建築是由光的環境照射而產生生命。——路易斯·康
早上的太陽光,穿過大麵積的窗戶,投射在非連續性的牆體,切割成不規則的光片。光,會從各種特意為其預留的外立麵開口處灑進內部空間。隨著投射角度變化而變化,在建築上留下今日的舞蹈。
水的氣息 / 室內的調節器
紅色巨型圓柱連貫兩層空間,水槽將牆外的雨水引入室內,從二層落至一層,水聲在圓柱體內回響,仿若山穀林間奔騰而下的山泉的聲音,令人心曠神怡。
露天陽台用一方水池,框出了另一條回型走廊,與室內的走廊形成異曲同工之妙。從露天延伸到室內,模糊了內外間的界限。大麵積的水池,又成為室內生態調節的一部分,增加了濕度,使空間更加舒適。
風 / 室內的無形感受
南北朝向的坐落,風可從一層圓柱體的南北麵開口直達至二層。這會是種很奇妙的體驗,二層周圍如圍起的“盒子”,但站在圓柱附近,可感受到陣陣風的涼意。
兩邊對流的內陽台,讓風能隨時穿過,而水池讓無形的風變成了可見的存在。風吹皺的一池水,在陽台頂部燈光的照射下,波光瀲灩,如風在與水共舞。
∇ 設計圖紙
從品牌中抽象演繹出三角、梯形等幾何元素,運用到建築形態的構建。於企業的特色中找尋品牌傳達的最佳契合形式,用體塊構築的“藝術畫廊”顛覆了傳統製造業的企業形象;實現了多樣空間功能;對品牌內涵的含蓄表達,更添悠遠意味。
品牌需要表達與傳遞,需要一個與各種因素產生聚合反應的空間,這個空間也是品牌的一種表達。
品牌的市場定位決定了企業空間所承載的群體,是更注重能展現品牌內,氛圍清靜舒緩、激發靈感的空間。
水槽出口設計,於細節處融入品牌元素。三角形交疊的天花和地板三角的線,是品牌的延展。
項目信息
項目名稱:麥蒙服飾辦公前廳
項目麵積:500 m2
項目地點:中國 佛山
設計單位:正方良行設計
主創設計:徐慶良
設計團隊:黃纘全
施工圖紙:和作舍
軟裝設計:瑞坤軟裝
材料供應:歸樸選材
品牌家具:良行文化
主要材料:TOA太塗水泥基藝術塗料、費羅娜陶瓷、90+陶瓷、灰色大理石、鋁蜂窩複合不鏽鋼板
設計時間:2019
完成時間:2020</span
項目攝影:劉宇傑


















































