全球設計風向感謝來自 紅山設計 的辦公空間項目案例分享:
紅山設計丨ECCO愛步西北總部辦公室,自然延展的空間律動之美
ECCO Xi’an Office by HONG Designworks | A Space Infused with Natural Rhythm
自然運動變化,周而複始,循環往複,曆史的時間軸中形成自然的律動。
∇ ECCO品牌理念-圖源網絡 ECCO’s brand concept – image from Internet
將其延伸至場景的設計中,展露自然純粹的本質,紅山設計為丹麥品牌ECCO位於西安的辦公空間,創造出與品牌理念相融合的動態場景,讓自然的氣質、律動的節奏和持久積極的生活狀態凝聚其中。
HONG Designworks was invited to conceive ECCO’s Office in Xi’an, China. By drawing inspiration from the continuous movement of nature and rhythm it generates, the design team created a series of dynamic scenes that fit into the brand’s values, and integrated natural ambience, rhythm and positive state of life within the space.
ECCO品牌的標識牆以純粹的白色與暗光呈現,獨立放置於空間一側。設計師提煉西安斑駁古老的有形文化遺產—城牆,同時輔以ECCO精神內含的“皮革創新”,為接待區打造一麵混合不同顏色的皮磚牆,以不同的顏色的皮磚對應皮料製作的不同階段,同時和西安城牆的曆史變遷聯係。
Set independently at one side, the brand logo wall is in pure white and complemented by soft light. Besides, the designers extracted elements from mottled old city walls of Xi’an, and combined them with ECCO’s spirit of leather innovation, to create a leather brick wall with mixed colors in the reception area. Leather bricks of different colors correspond to distinct phases in leather making, and echo the appearance changes of Xi’an city walls over the last several hundred years.
用波瀾起伏的牆麵律動感和創新的中西方元素連接吸引訪客的目光,牆麵內置皮磚樣式的禮品盒,可以讓客人取出並拿走,以彌補無法帶回西安城牆磚的遺憾。
The undulating rhythm of the wall as well as innovative oriental and occidental elements catch visitors’ eye. The built-in leather bricks are gift boxes that can be taken away by visitors, making up for the regret of not being able to bring back one brick of Xi’an city wall as a souvenir.
材料拚貼的運用以差異的平麵色塊和質感碰撞融合形成立體的多元空間,突破傳統空間整體性色彩帶來的單一,呈現顛覆性的感觀視效,為人與空間的日常互動增添樂趣。
The collage of materials shows the collision of different textures and colors, which together form a diversified three-dimensional space. It gets rid of the monotonous color palette in traditional spatial design, produces astonishing visual effects, and adds fun to the daily interaction between people and space.
於接待區旁側預留相對隱秘的休息區,簡潔的架構下連通整體又彰顯個性。懸掛的皮製藝術品以陝西皮影的皮革為設計靈感,同時融入ECCO皮料輔助完成。小場景的氛圍中充盈著現代美學的氣息,凸顯丹麥文化和西安當地文化的融合。
Beside the reception area, there lies a relatively private resting area, which features simple structures but a distinctive image. The hanging leather artworks are inspired by the Shaanxi shadow puppetry and are made of ECCO’s leather materials. This small-scale space shows a modern aesthetic, and highlights the integration of Xi’an and Danish cultures.
接待區以開放式格局容納等候區,不同角度和距離之間形成多層次的視覺畫麵。牆麵上懸掛的照片取材自丹麥ECCO工廠旁的麥田,既反映了ECCO的品牌文化,又為空間增添了自然元素,讓來訪者感受專屬ECCO品牌的空間氣質。
The reception area opens to the waiting area, and provides multi-layer visual experiences from different viewing angles and distances. The photo hung on the wall presents the wheat field next to ECCO’s Danish factory. It not only conveys the brand’s culture, but also adds natural elements to the space.
體塊穿插之下空間生成許多疊加部分,透過材料拚貼自然帶動空間節奏並營造反差場景。
The interpenetration of blocks causes many overlapped parts, on which the collage of materials creates rhythm and contrasting scenes for the space.
移步至會議室區域,牆麵裝飾的一塊塊皮影藝術裝置由非物質文化遺產傳承人親自打造的。而蝕刻的鋁製藝術品展現了品牌內含的自然與環保理念。
Stepping into the conference room, shadow puppetry art installations on the wall come into view. Those exquisite wall adornments were handmade by an inheritor of the intangible cultural heritage. The etched aluminum artwork features natural grain, which conveys the brand’s concept in a subtle manner.
設計師劃分會議室外部空間用於打造茶歇區,以亮黃色凸顯功能區域,頂部天花的半封閉設計給予露天歇息的氛圍。橫向懸空木製桌麵內置鋼結構,增強穩定性的同時隱藏於牆麵之中,用於分隔不同行徑路線。
The space outside the conference room is turned into a break area. Bright yellow hue highlights this functional area, while the semi-closed ceiling produces an atmosphere of resting in open air. The horizontally suspended wooden table has steel structure inside, which enhances stability and is inserted into the wall to separate circulation routes.
順沿進入貴賓休息區,風格與接待區形成呼應。以傳統製鞋用具——楦頭為靈感裝點背景牆麵,專屬的藝術作品不僅聚集視線焦點,而且激發來訪者想要深入了解製鞋工藝的好奇心。
Next to the break room is the VIP lounge, which echoes the reception area in style. The designers drew inspirations from shoe last, a traditional shoe-making tool, to decorate its backdrop wall. The unique artworks become a visual focus, and evoke visitors’ curiosity about the shoe-making craftsmanship.
設計師借景展現西安本土文化,在貴賓休息區窗邊可以遠眺古時用於迎接賓客的永寧門,讓客人感受到尊貴的待客之道。
Moreover, the large glass curtain wall provides an open view to the historical Yongning Gate nearby, which was for welcoming guests in ancient time. The design not only embodies local culture, but also expresses hospitality to guests.
創造自由且舒適的開放辦公區,多元化的辦公和色彩組合為員工創作提供源源不斷的活力因子,讓人與空間的律動感達到平衡。
The workspace is free, comfortable and open. Diversified working areas and colors generate an energetic, inspiring environment, while also balancing the rhythm between the space and users.
內部分隔的辦公室利用透明的玻璃門與外部形成互動,設計上降低空間的活躍度,以更沉穩的氛圍匹配應用場景。
Independent office rooms are connected to the open working area via transparent glass doors, and adopt a calmer tone to match the scenarios.
自然律動,是ECCO品牌設計的靈感源泉,給予不斷創新的動力。靈感不停留於表麵,用打破常規的設計創造極度舒適的體驗。自然的內涵與品牌的理念被紅山設計以創新的手法重新解構,成為ECCO辦公空間富有生命力的價值沉澱。
Nature and rhythm are the sources of inspiration for ECCO, and provide the power for continuous innovation. As conceiving this workspace, HONG Designworks adopted creative approaches to interpret nature and the brand’s values, hence created pleasant experiences and a workspace with lasting vigor.
∇ 空間分析圖 Spatial analysis diagram
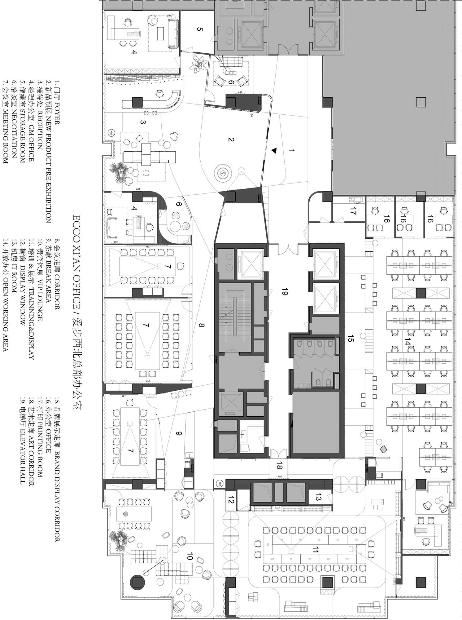
∇ 平麵圖 Plan
項目信息
項目名稱:ECCO愛步西北總部辦公室
項目地點:西安市長安路
設計公司:紅山設計 / HONG Designworks
主案設計:黨明、李丹笛
設計團隊:湯鑫、解旭、錢曉倩、奧秦歌、王青、閆振、王海川、吳虹燁
軟裝設計:奕木設計
實施團隊:深裝總建設集團股份有限公司
項目麵積:1344m2
完成時間:2020年3月
攝影團隊:譚嘯 / 十攝影工作室
視頻團隊:花生工作室
Project name: ECCO Xi’an Office
Location: Chang’an Road, Xi’an, China
Design firm: HONG Designworks
Chief designers: Dang Ming, Li Dandi
Design team: Tang Xin, Xie Xu, Qian Xiaoqian, Ao Qinge, Wang Qing, Yan Zhen, Wang Haichuan, Wu Hongye
Decoration design: YIMU Designworks
Construction firm: SDCIC Construction Group Co., Ltd.
Area: 1,344m2
Completion time: March 2020
Photography: Tan Xiao / Studio Ten
Video: Hua Sheng Studio























































