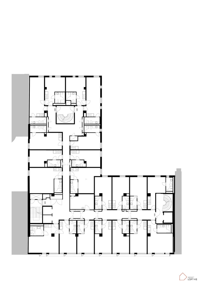
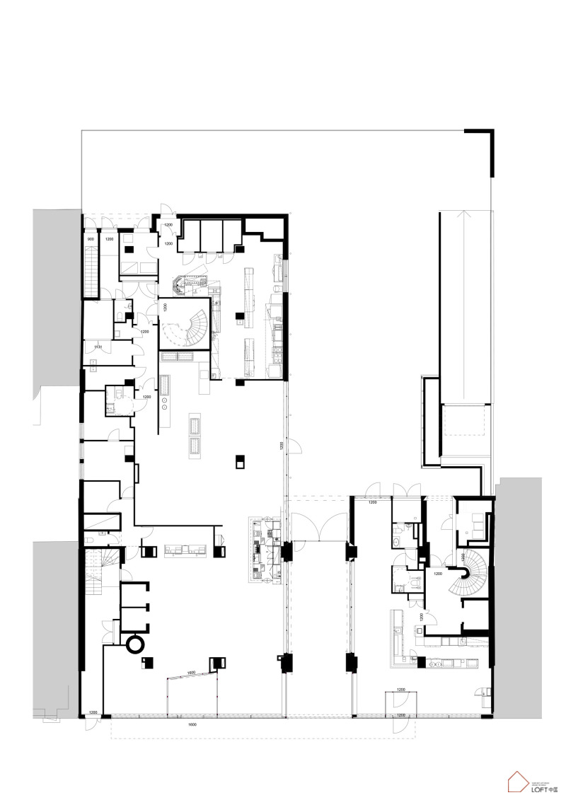
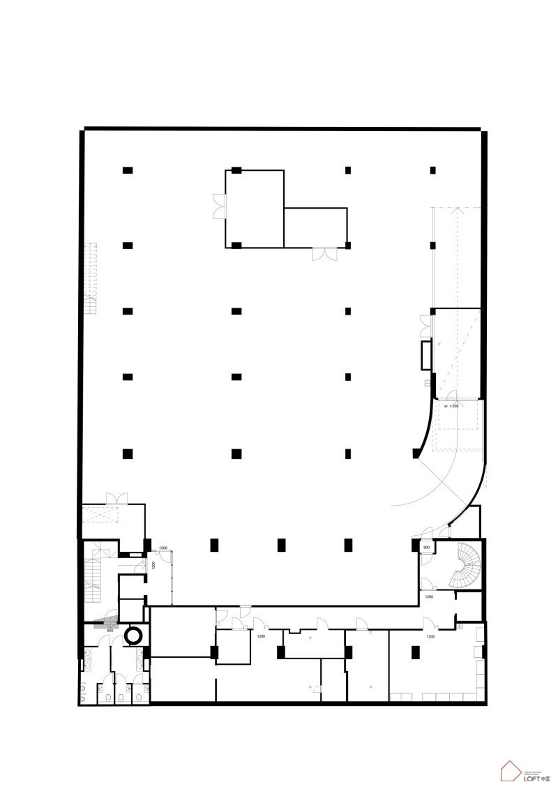
靛藍酒店位於芬蘭赫爾辛基市中心的老街道上,周圍的建築年紀最大的已有200多年曆史。設計目標是打造一個現代風的酒店同時融入曆史環境。酒店所在大樓至今已經曆無數次翻修,隻有60年代的混凝土框架有所保存。外立麵光影流動,依托原建築結構表麵貼附多維鍍鋅材料,十分節能,也因此榮獲“能源與環境設計先鋒獎”。
酒店擁有8層樓120間客房。大堂酒廊位於一樓,地下會議室可以安排商務會議。同時也配有一個自營健身房和40個停車位的車庫。芬蘭的設計元素和當地人的手藝在酒店隨處可見。鍍鋅外立麵由一個73歲的當地工匠Esko負責,據了解他50年來一直專營這塊業務。年輕的平麵設計師琳達為一些客房設計特色主題壁畫。一樓餐廳有展示時尚設計師Satu的個性絲綢版畫。許多取自芬蘭當地的設計都有在客房中展示,比如Minna設計的鞋子和伊塔拉玻璃等等。

酒店的所在地,即林蔭大道與紅山區交彙,是赫爾辛基的設計產業園集中區,擁有許多精品店麵和畫廊。
Photos © Tuomas Uusheimo
版權聲明:本站所有文章除投稿授權發布外,其他文字內容均為原創,享有著作權保護,未經許可不得以任何形式進行轉載(包括且不限於:媒體、網站、公眾號等)。所有項目照片/設計圖形版權歸原作者所有。本站部分內容源自網絡公開資源或用戶分享,如若侵犯了原作者的合法權益,可聯係我們進行處理。






























