全球設計風向感謝來自 北京班得建築設計有限公司 的展廳空間/藝術中心案例分享:
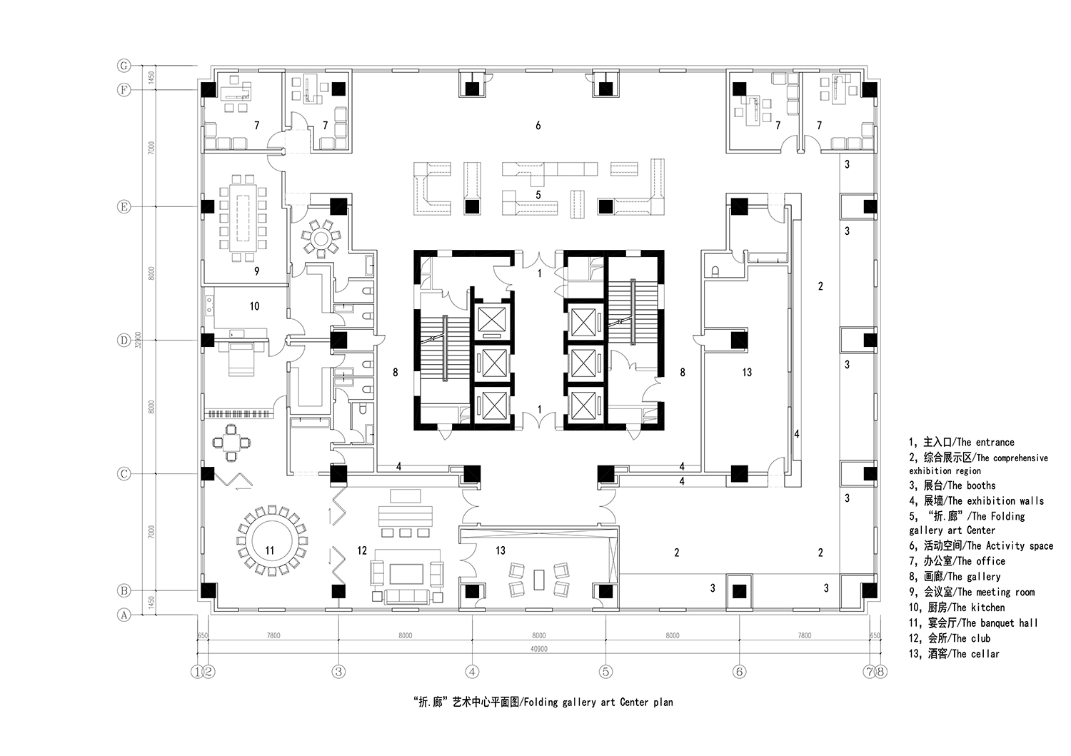
本項目位於包頭市複正大廈19層,建築麵積1350㎡,建築為框架結構。業主在多年從商過程中收藏眾多藝術品,希望借此空間進行展示。此空間定位為綜合藝術中心,功能包括藝術品展示、畫廊、會所、辦公等。藝術中心與會所、辦公的功能結合是業主的主要需求。
“折.廊”
此空間為項目核心區域,功能為高端藝術品展示區,用於展示業主多年的收藏藝術品。設計圍繞現場的兩個柱子,打造了一組裝置設計,此裝置是一組以長方形體反複轉折變化和穿插組合所形成的空間廊子、是以長方體塊為基本單位的立體空間組織、是對一組以廊子為基本形態的造型進行解構重組所得到的空間體係。此裝置將空間進行重新劃分與組合,它所形成的空間關係與內外部流線讓觀者能感受到不同方向的空間體驗,每轉一個角度就有一種視覺畫麵,使觀者有一種沉浸式的參觀感受。這種多層次的空間體驗,讓原本單一的空間內多了很多種的可能性和體驗,同時此裝置所形成的展示空間也將藝術品以一種多層次的展示方式呈現於觀者,使觀者與藝術品產生一種空間上的互動。
“折.廊”的構想源於業主對核心藝術品展示區的需求和空間的利用。首先此區域業主希望有一種不同的展示方式,它的功能是無界的,形式是開放的,並有一定的文化內涵。綜合考慮設計方以一組經過演繹的長廊方案對此空間進行詮釋,將“廊”進行解構重組,把構成長廊的基本形體“轉折與穿插”起來,形成既有現代審美需求又有文化內涵底蘊的一組裝置設計。其次是現場此區域有兩根原有建築柱子,這兩根柱子既不能形成空間體係組織,又對整體視線造成幹擾,方案設計必須通過一種手法讓它們消失在造型中,所以“折.廊”的出現解決了這一難題,空間中的視覺障礙得到了解決,並以一種獨特的空間造型將此區域的功能與美感完美地體現出來。
“折.廊”的功能是多重的,它首先是一組藝術品展示區,作為一組展廊裝置出現。其次它是一組活動區,可以作為業主本身企業的新品發布會的活動區,屆時“折.廊”會作為背景出現,它的南側會是新品發布會場。
“折.廊”的南側除了新品發布會的活動區還有獨立辦公區,這兩個區域與“折.廊”進行無界的組合,相互融合,將功能立體化呈現出來。
綜合展示區
此區域位於空間的北側與西側,在一條主要參觀通道的兩側打造一組展台與一組展牆,是一種行進式的展示方式,此區域空間的設計使參觀者沿著主通道漫步的同時感受到了藝術品的美感,並為“折.廊”區域進行鋪墊,當參觀者通過此區域時便到達了此項目的核心區域“折.廊”,所以綜合展示區也是一個空間序曲。
綜合展示區形體設計極簡大方,很好地為展品進行空間展示組織,整體空間以一種低調簡約的視覺感受呈現於參觀者。方案設計中為業主打造了一個展示“書架”,在整體“書架”的框架下,裏麵的“書籍”業主可以自由的設置。此空間設計既能保證展品多重展示方式,又可以保持統一的設計語言風格。
空間融合
此項目設計的主要手法就是空間融合,這種空間融合包含兩方麵:一是空間形式融合,整體空間以淺灰色係為主,所有空間造型高度均為2.8米,2.8米以上進行噴黑處理,把管線管道全部弱化於黑色天花內,地麵為深灰色地膠,整體視覺效果中造型、地麵、天花呈現白灰黑三個層次,所有造型的形式與色彩都相互融合關聯,在兩組主入戶門的設計中使用實木門進行點綴,木材質的使用使整體灰色係空間內增添一抹暖意。
二是空間功能融合,此項目的功能內容有藝術品展示、畫廊、會所、辦公等,若幹功能需要統一在一個空間下,方案設計以一條參觀路線為主線,將所有功能串聯在一起,每一組功能在這條主線下自然得融合在一起。空間以綜合展示區為起始點、以“折.廊”作為核心高潮、以畫廊為交通流線與過渡空間、以會所作為終點。形成一條集參觀、辦公、會議、休閑於一體的藝術中心,各個功能相互呼應、關聯,密不可分。
∇ 模型圖
∇ 平麵圖
項目信息
項目名稱 :“折.廊”藝術中心
設計方:北京班得建築設計有限公司
公司網站:www.bande.vip
聯係郵件:DLB999@163.comBANDe1918@163.com
項目設計&完成年份:設計年份:2020完成年份:2021
主創及設計團隊 主創:周堃,徐琳團隊:周堃,徐琳,孫迪(項目經理),秦海峰,高科,杜建華
結構顧問:褚隆
項目地址:包頭市複正大廈19層
建築麵積:1350㎡
攝影版權:金偉琦
客戶:私人業主
施工方:內蒙古尚嘉天成裝飾工程有限公司
施工團隊:李良金(項目經理),王俊傑,石巨波,楊軍
品牌:1地膠 品牌:金彩 2乳膠漆 品牌:多樂士 3木材 品牌:榆木














































評論(1)
居然看到我城市的落地方案