點軍智穀位於宜昌市點軍區百聯慧穀創意科技園A13棟一層。此項目是班得建築與升哲科技聯手打造的宜昌市點軍區數據展示與運營中⼼。是集算力中心、指揮中心、治理信息中心、大數據展示、區塊鏈金融、工業互聯網二級節點解析、辦公區、會議室等展示與運營於一體綜合空間。
Dianjun AI Valley is located on the first floor of Building A13, Bailian Huigu Creative Science and Technology Park, Dianjun District, Yichang City. BANDe Architects and SENSORO collaborated on this project to display and operate the data for the Yichang Dianjun District. It’s a multi-functional space for exhibition and operation, including a computational power center, a command center, an information center for good governance, a display for big data, block chain finance, industrial IOT, office and conference room.
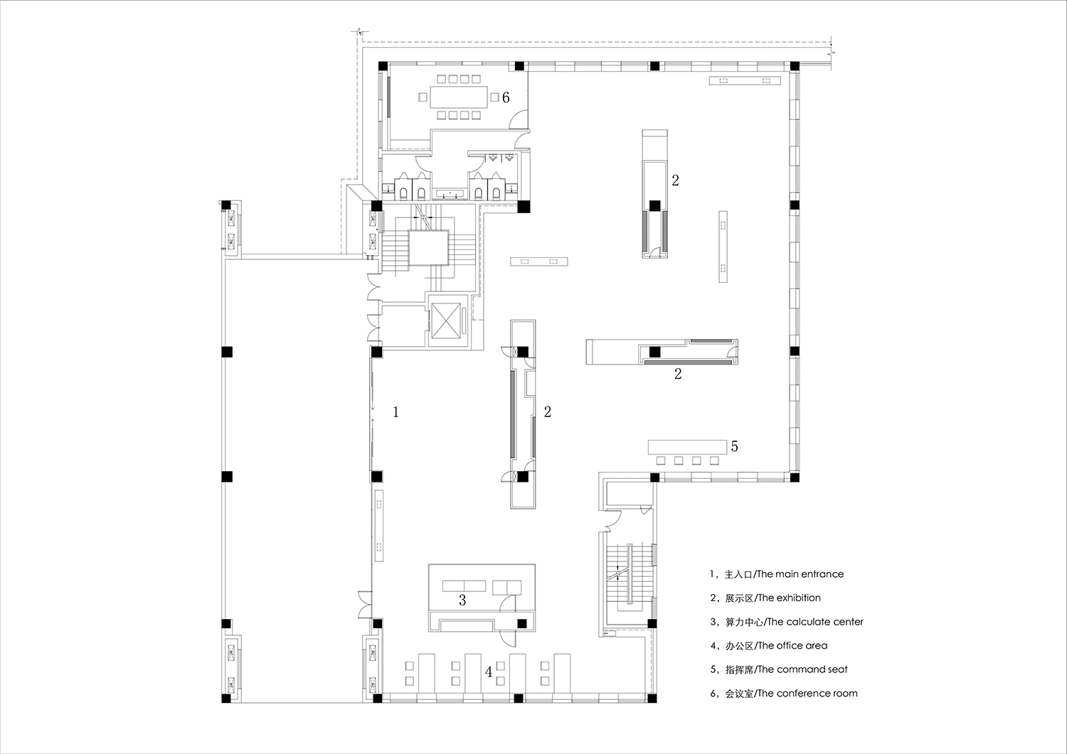
場地 Site
此項目整體場地呈L型,場地中心有若幹原有建築柱子。整體方案的平麵布局以原有建築柱子點位為造型基礎,打造三組懸浮體塊作為空間的主要語言,這種將原有建築柱子與新建造型相結合的做法,既削弱了原有建築柱子對空間的視覺破壞,又將空間展示功能結合到造型中,做到了形式與功能統一。三組懸浮體塊的空間布置橫縱交錯,充分利用了場地的長度及寬度,也將場地分割成若幹功能空間。
It is an L shape plan with several existing columns in center. The general scheme is to build three floating blocks following the column locations as main language of the space. The existing columns and the floating blocks are composed together to reduce visual damage of the columns in the space and merge the exhibition to blocks. In this way, form and function are well unified. By making full use of the site’s length and width, the three blocks are arranged horizontally and vertically in plan to create multiple functional zones.
懸浮 Floating
此空間的懸浮體塊脫離地麵35公分,以原有建築柱子為懸浮造型的結構基礎,采用鋼結構進行懸挑,以懸臂梁的方式進行結構打造。結構的設計進行了多次的實驗,保證了懸浮體塊的整體強度與剛度,除了本身結構的自身荷載以外,還保證了設備的荷載和不同展品放置的可變荷載,並以最經濟的方式完成了結構體係。懸浮體塊內部嵌入LED屏幕、觸摸屏等設備進行內容展示。對於懸浮體塊的設計,設計方希望以此隱喻一種技術突破:“科技要突破技術的壁壘,建築要脫離地麵的束縛”。這種在原有建築基礎上“橫向一筆”的設計手法,改變了原有建築柱子的性質,讓原有建築柱子不再隻是為了承重的視覺障礙,而是成為了整體展示空間的一部分並融入展示功能中。懸浮體塊以白色為基礎色調,在周圍灰色牆麵的映襯下猶如空間中用橡皮擦拭出來的白色空間,是一種減法設計,用新建造型去減少空間內的形體疊加,從創作手法上抹去人為的痕跡,以一種極簡幹練的形象展示最前沿的科技成果。每組懸浮體塊形體進行局部鏤空處理,使整體空間在造型的分割下“隔而不斷”,鏤空處放置展品並形成視覺通廊,這種處理手法可以讓參觀者對空間進行主觀閱讀並產生互動。整體空間極簡主義的設計手法在視覺效果上與高科技感融為一體,相互襯托。
These space’s floating blocks are 35 cm off the ground, and the existing columns serve as the structural base for the suspension modeling, which is supported by steel cantilever beam structure. After many test, this structure design ensures that the floating blocks’ overall strength and stiffness can withstand the weight of the structure and its equipment as well as the variable loads placed by various exhibits. This completes the structural system in the most efficient manner. The floating blocks incorporate a display system that includes an LED panel, a touch screen, and other components. “Technology should break past the limitations of technology, and architecture should be free from the constraint of the ground,” the designers intend to utilize their design as a metaphor for a technological breakthrough. Using the “horizontal stroke” design style, the existing columns are transformed from visual obstacles to show space components that are fully integrated into the exhibition space, rather than merely being an eyesore. The floating blocks use white as its primary color tone, creating the effect of an eraser wiped across a white surface against the gray wall in the background. Designing in this way eliminates the artificial traces left by creative techniques and presents the most advanced scientific and technology in an elegant and efficient manner. It is a subtractive design. By hollowing out each group of floating blocks, the entire space is made to appear “separate and continuous.” Exhibits are then placed in the hollowed-out areas to create a visual corridor that allows visitors to read the space subjectively and interactively. The entire room is designed by minimalism techniques while using a high-tech aesthetic sensibility in order to create an eye-catching visual effect.
內容 Content
此空間內的每一種展示方式都與懸浮體塊很好地統一在一起,融入到每個空間序列中,使得整體展示方式渾然一體。呈現在空間裏的內容猶如牆上的畫一樣,使得整體空間內充滿一種藝術與高科技相融合的氛圍。
The floating blocks and each space sequence are highly merged with the display modes in this area, resulting in a well-integrated display mode. It is like a picture on the wall that matches the content displayed in the room, creating a harmony atmosphere of art and high technology in the entire space.
∇ 平麵圖
項目信息
項目名稱:點軍智穀
設計方:北京班得建築設計有限公司
合作方:北京升哲科技有限公司
項目設計&完成年份:設計年份:2021、完成年份:2021
主創及設計團隊 主創:周堃,徐琳
團隊:周堃,徐琳,孫迪,楊歡,秦海峰
結構顧問:李正平
項目地址:宜昌市點軍區百聯慧穀創意科技園A13棟一層
建築麵積:700㎡
攝影版權:金偉琦
客戶:宜昌市點軍區政府
施工方:宜昌焦點科技產業集團有限公司
品牌:1,無機磨石2,水泥基牆漆
Project name:Dianjun AI Valley
Architect:Beijing Bande Architectural Design Co., Ltd
Collaborator:Beijing Sensoro Technology Co.,Ltd
Project Design & Year of Completion:Year of Design: 2021Year of Completion: 2021
Creative and Design Team:Principal Partners: Zhou Kun and Xu LinDesign
Team: Zhou Kun, Xu Lin, Sun Di, Yang Huan, Qin Haifeng
Structural Consultant:Li Zhengping
Project address:Floor 1, Building A13, Bailian Huigu Creative Science and Technology Park, Dianjun District, Yichang City
Building area:700 ㎡
Photographic copyright:Jin Weiqi
Client:Yichang Dianjun District Government
Construction:Yichang Focus Technology Industry Group Co., Ltd
Brand:1. Inorganic grindstone2. Cement-based wall paint





























