構成73號 突破平麵,色彩環繞感官形塑語言
曾經的濟南,泉水淙淙鎮日為伴,流動意象滲入聽覺和意識,柔軟整座城的心緒。當現代主義的理性效率滲入生活、以俐落筆觸改寫城市天際,該如何替建築的理性添入抒情想像空間?水相設計企圖以泉城過往曲水垂柳的街戶風貌,柔化當代理性主義架構的建築,讓此空間彙入泉城72泉,成為第73號涓流的意象。
為極簡理性注入層次豐沛的情感,貼近現代主義「色域繪畫」的主張,巨幅畫布看似低限度疊放幾何色塊,卻蘊藏滿腔創作情緒,無論激昂呐喊、幽微沉靜,作品釋放騷動穿透日常、直搗心底。
踏入,消除人與畫的邊界
為此,我們定義空間為一件巨大的藝術創作,以直觀形塑色彩的邏輯布局場域,而非形隨機能而生的理性搭建慣性。廊道區域成了畫布上彼此相連的色域,互為前後景、彼此完整,帶著流動的不確定性,觀者循著線索,開始往畫的深處走去。
踏入建築,入口由下挖式白色中庭建構起點,富節奏感的踏階環繞在側,對人們行經或逗留抱著從容姿態,無主從之分的開放性路徑連接四方區域,擇其一進入空間,這趟不是為了看一幅畫,而是親身浸入畫中。
藝術是流動的寓言
大幅藍色安定了西側咖啡廳,吧台或底牆,寧靜如靜夜海中黝暗的島嶼,安撫躁動,使人放心將自己安置其中。飽滿的紅,乍然現身又爽脆地收邊,例如中庭末端延伸向後的飛簷、色域之間的甬道,是路徑上落下的麵包屑、畫中的楔子,毋需文字便能引導動線,使人順應直覺探索未知,恰如創作者下筆時不假思索的意念。
原創的非對稱家具設計與整個空間的美學相互補充,同時又能以非凡的風格存在。考慮到空間的建築對稱性,家具的設計理念中,探索平衡、材料和形式的連續,我們追求家具形體的非對稱設計,於不平衡中尋找建築關係的均衡,這種非對稱結構更能展現出別出心裁的設計之美。非對稱的設計可以給空間注入一種安靜的不可預測的形式美感。
跨越量體的樓梯結構,以石灰白和雕塑般切割線展示藝術質地,濃厚的白緩緩相接交疊,模糊筆觸秩序而顯得寫意。天井下抽空時間感的白、量體間銜著影子的白,各具性格、超越理性計算,它們在畫中遼闊無聲,令情緒得以喘息。二樓藝文學堂則以暖白填滿角隅靜謐,在穿越撼動各樣情緒的色域、離開畫作之前,以一段中性空間沉澱統合飽滿的感受。
當光從穹頂進入室內,天井內雕塑仰望蒼穹骨感修長之美,具有哲思的蘊含,隱藏著深刻和永恒的精神,體現人類對未知力量探尋的原始動力。
超越機能的無疆詩意
物的質地,在畫中成為油彩堆疊的筆觸,濃烈厚重、細致流轉,描繪出單色的重量。抽象主義創作的精髓在於透過色彩與量感,即便不是真正身處無垠荒漠,仍可升起蒼茫而渺小的情懷,體現在建築裏,觀者更能穿梭畫中自由決定琢磨何處。
繪畫可以創造一個虛擬空間, 而不再想去包裹一件真實的具體之物,世界就存在於凹凸之間,我們選用了馬樹青的抽象體係繪畫,意在用色彩探索和建立多維度的空間關係。
雕塑不同於繪畫,雕塑是獨立的,但同時也離不開周圍的空間,它空間相互依存,以四周的空間為背景,這組雕塑人充滿著情緒與美感,我們試圖用掏空中間的辦法來強調虛空,誇張變形的比例相當有趣,我們聯想到在光線進入室內,一個個或站或蜷縮的人映在牆體上的影子,縱長而瘦弱,然後隨著時間的推移而消逝在無邊無盡的時空中,不著痕跡。
除了筆觸,我們也試著以裝置藝術觀點處理色塊形狀,例如長廊盡頭的洗手間,丹紅覆蓋,強烈色彩倏然收攏包覆,不對稱立麵及向下彙集的水滴輪廓藝術裝置,相對於開放場域真空遙遠的白,形體強化了紅色的傾斜、流動意識。
建築一向擅長建構形狀處理需求,但填色是一種直覺與浪漫,恣意地記錄當下,不仿效借用具體事物來暗喻或烘托,超然坦率、直視創作者內心。以此布局空間作品,我們希望打開觀者體驗抽象主義的視野,空間的構成是自由的,人們感受的方式亦然,踏入畫境,享受無須多言的親密獨處。
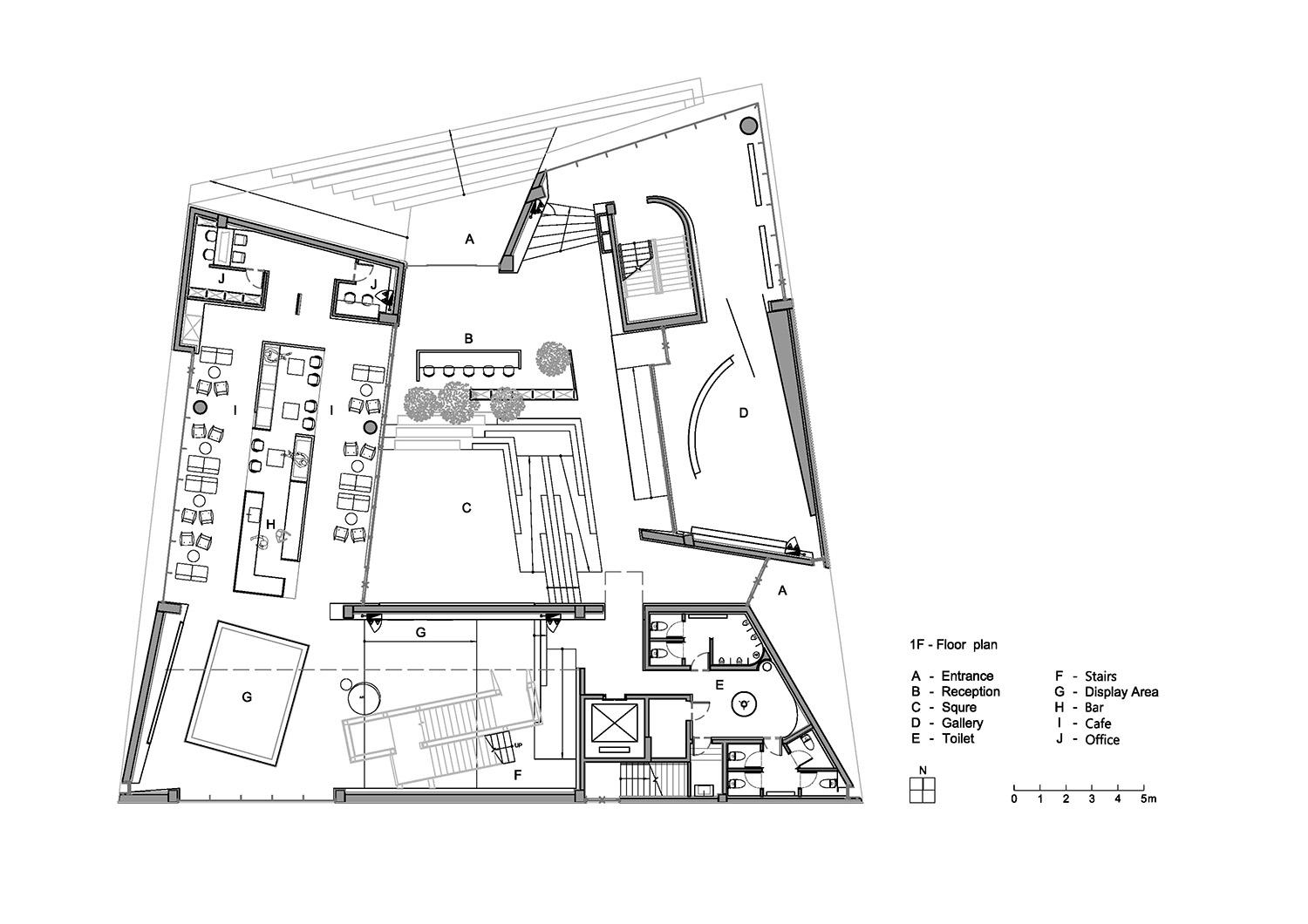
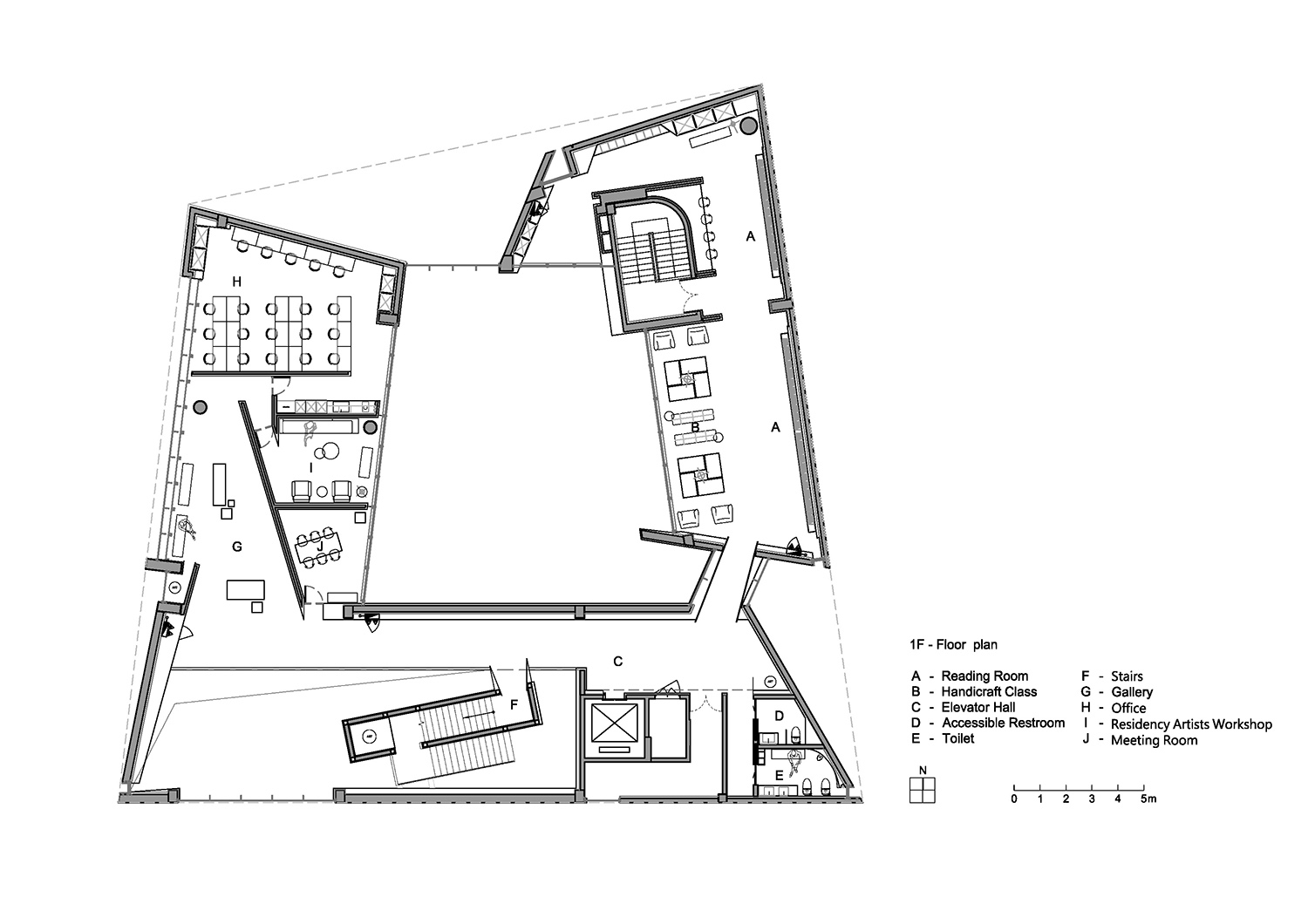
∇ 平麵圖
項目信息
項目名稱|寰宇藝術中心
空間設計|水相設計 waterfrom design
設計團隊|李智翔、葛祝緯、林其緯、黃昱誠、張宇辰、段曉雯
軟裝設計|萬有引力+水相設計
設計團隊|白麗雪
項目業主|中海地產
空間性質|文化建築、售樓處
座落位置|濟南
室內麵積|1,350平方米
空間格局|接待區、洽談區、品牌展示區、辦公室、衛生區、功能區
主要材料|紅黑漸層烤漆、米白手工漆、藍色手工漆、白色水磨石、米白大理石、蛇紋石、鋁板、白楓木
項目攝影|吳鑒泉






















































