自包豪斯以來,現代主義思潮席卷了人類生活的方方麵麵,古典時代的榮光一去不複返。如何讓逝去的曆史精華在現代社會延續新生,是一個有趣的話題。
富力盈泰辦公室項目,是一位旅美回國的年輕設計師,創辦的高定婚紗工作室。這個傳統手藝與現代設計交融的產業,激發了設計師的創作靈感。
設計師李名津將文藝複興時期經典的穹頂結構進行現代主義演繹,在當代都市辦公樓裏,暗藏一首人文主義回響的十四行詩。
Since the Bauhaus, modernism has swept all aspects of human life, and the glory of the classical era is gone forever. How to preserve the essence of lost history in modern society is an interesting topic.
R&F Yingtai office project is founded by a young designer who came back from the United States as a customization of wedding-dress studio. This industry is a mixture of traditional craft and modern design, which inspired the designer’s creative inspiration.
Designer Li Mingjin makes a modernist interpretation of the classical dome structure of the Renaissance. In the contemporary urban office building, there is a sonnet echoed by humanism.
01
弧線之美
The beauty of arc
穹頂是文藝複興時期最具標誌性的建築結構,見諸於歐洲大陸的各大教堂。作為天圓地方認識論的現實產物,穹頂代表著天空與神聖。
圍合式的穹拱造型,極具幾何之美,擅長製造沉浸式氛圍,讓建築延伸出內在精神性,與現代設計的理念貌離而神合。
The dome is the most iconic architectural structure of the Renaissance, which can be seen in the cathedrals of the European continent. As a product of the epistemology of square earth with a round sky above, the dome represents the sky and the sacred.
The enclosed dome shape is very beautiful in geometry. It is good at creating immersive atmosphere, extending the inner spirit of the building and combining with the concept of modern design.
富力盈泰辦公室項目原來的戶型設計非常直白。人站在門口,即能一窺空間全貌,無法滿足創意工作室的空間需求。
受穹頂的弧線造型啟發,設計師在門口做了一塊弧麵牆,用曲線對抗現代辦公樓的工業感。弧麵牆加上品牌展示牆,劃分出了空間層次,造就曲徑通幽的動線與美感,並構建一個展示品牌與產品的門麵空間,工作室的定位一目了然。
The original design of R&F Yingtai office is very straightforward. People standing at the door can have a panoramic view of the space, which can not meet the space needs of a creative studio.
Inspired by the arc shape of the dome, the designer made an arc wall at the door to resist the industrial feeling of the modern office building with curves. The arc wall and brand display wall divide the space, create the moving line and aesthetic feeling of the winding path, and build a facade space to display the brand and products. The brand positioning of the studio is clear at a glance.
品牌展示牆後方,是創作區與展示櫥窗。
新鮮出爐的作品可以在這裏得到展示;模特兒演示作品時,品牌牆與弧麵牆動線構成了一個小型T台,形式美感與功能兼備。
Behind the brand display wall is the creative workshop and display window.
New works can be displayed here; When the model demonstrates the works, the moving line of between the brand wall and the arc wall forms a small T-stage, which has both form beauty and function.
02
穹頂意象
Dome and image
工作室的麵積不大,設計師用玻璃作為隔斷,構成不同功能空間的獨立性與完整性,同時最大限度地保留了空間的通透感。
There is not much space in the studio.The designer uses glass as partition to form the independence and integrity of different functional spaces, and at the same time, retains the transparency of the space to the maximum extent.
每當夜幕降臨,玻璃麵反射窗外的天光景致與車水馬龍,繁華大都市的一個個完整切麵映入眼簾。在安靜悠然空間氛圍中,人與環境的關係獲得了最大的和解,人文主義的詩意浪漫油然而生。
When night falls, the glass reflects the scenery and lighting outside the window, and a section of the bustling metropolis comes into view. In the quiet and leisurely atmosphere, the relationship between people and the environment has been the biggest reconciliation, and the poetic romance of humanism arises spontaneously.
棉麻沙發、實木座椅、懷舊氣質的PJ椅,設計師希望將更多天然質樸元素融入都市生活,對抗現代性的機械與冷冰,觸達人心最柔軟的部分。
Cotton/ramie fabric sofa, solid wood chair and nostalgic PJ chair, the designer hopes to integrate more natural and simple elements into urban life, fight against modern machinery and coldness, and touch the softest part of people’s heart.
通往會議室的五分之一穹頂拱門,是整個空間的點睛之筆。穹頂設計既是為了緩解空間犄角之勢,又構造了一個頗具古典意象的室內景觀。
設計師用藝術塗料呈現逼真懷舊的金屬質感,在質樸水泥牆的映襯下,產生一種時光重生的錯覺。讓人聯想起聖索菲亞大教堂恢弘的金色穹頂,極簡幾何的造型又一下子將體驗者拉回現實,恍惚之下,意趣橫生。
The one fifth dome arch leading to the conference room is the punchline of the office. The dome is not only to alleviate the irregular space, but also to construct a classical interior landscape.
The designer uses artistic paint to present realistic and nostalgic metal texture, and under the background of micro cement,there is an illusion of time rebirth. It is reminiscent of the magnificent golden dome of the Cathedral of San Sofia. The simple geometric shape brings back to moderntime on the other hand, which gains a great interest.
借用玻璃麵的反射原理,穹頂的完整麵貌展露出來。
古典時代的神魂,在夕陽底下熠熠生輝。仿佛夢回文藝複興時期的修道院,一場直通神性的對話正在展開。
Using the reflection principle of the glass surface, the complete appearance of the dome is revealed.
The spirit of the classical era is shining in the sunset. It’s like dreaming back to the monastery of the Renaissance, and a dialogue through divinity is unfolding.
03
秩序疊韻
Order and rhyme
質樸厚重的水泥風牆麵,延伸至辦公室內的櫃體,強調自然原始的質感。粗獷的材質與精致的都市生活方式,形成頗具戲劇性的對照,提升空間張力。
設計師借助傳統設計的“留白”手法,收納櫃上下方留出空間。既強化了結構的立體感,又有一種後退延伸的視覺效果,空間感更加深邃。
The simple and heavy cement wall extends to the cabinet in the office, emphasizing the natural and original texture. Rough materials and exquisite urban lifestyle form a dramatic contrast and enhance the spatial tension.
With the help of the traditional design theory of “The Blank”, the designer leaves space above and below the cabinet. It not only strengthens the three-dimensional sense of the structure, but also has a backward and extended visual effect, which makes the sense of space more profound.
用一扇扇黑色旋轉門作為隔斷,靈活地劃分出兩個空間。辦公室與創作區既相互獨立,有需要時又能互通為一。富有層疊韻律的牆板,就像是教堂裏秩序井然的高柱,賦予空間精神層麵的儀式感與神聖美感。
每當舉辦小型發布會,模特兒通過門洞穿梭如鯽,從創作間到辦公室,再到圓弧造型牆、穹頂背景牆。整個辦公室化身為T台正中央,沙發區與會議室,便成為這場沉浸式表演的頭等觀看席。
The black revolving doors are used as partition to divide two spaces flexibly. The office and the creative workshop are independent of each other and can be exchanged as one if necessary. The rhythmic doors are like the high columns in the church, which give the spiritual sense of space ritual and sacred beauty.
When a small conference is held, models travel through the doors, from the creative workshop to the office, to the circular arc wall and dome wall. The office becomes the center of the T-stage, the sofa and the conference room become the first-class seats of the immersive performance.
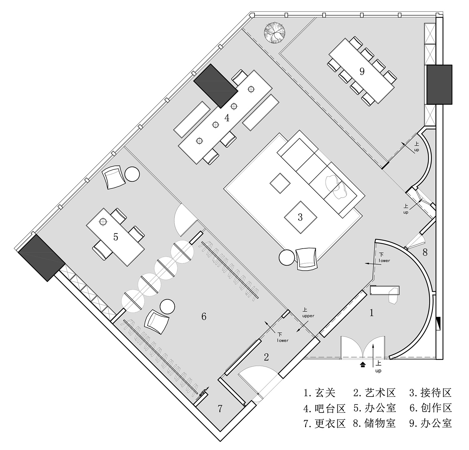
Δ 平麵圖
項目名稱 | 現代穹頂的人文敘事.廣州富力盈泰辦公室
項目地點 | 廣州
項目麵積 | 130m²
設計公司 | 名津設計
軟裝團隊 | 西緹設計
施工公司 | 頤合施工
主案設計 | 李名津
參與設計 | 李棟金、莊堅榮、廖審
竣工時間 | 2020年9月
項目攝影 | 趙彬
主要材料 | 玻璃、藝術塗料、微水泥、鋼板
Project name | Humanistic narration of modern dome, R&F Yingtai Office/ Guangzhou
Project location | Guangzhou
Project area |130m²
Design company | Mindkind design
Soft Furnishing team | CITE design
Construction company | Yihe Construction
Designer | Mingjin Li
Design team | Dongjin Li、Jianrong Zhuang、Shen Liao
Completion time | September 2020
Project photography | Bin Zhao
Main material | Glass、Art paint、Micro cement、The steel plate


































