自2018年“國潮元年”至今,中國本土創意 – 本土製造已經掀起了此起彼伏的自信浪潮,迸發出了前所未有的消費熱情,這是疫情新時代下,“製造業高質量發展”的奠基與“人們追求美好生活”的期願,所碰撞出的火花。口口目,一家在國產女鞋行業內深耕幾十年的本土潮流領軍品牌,借助其強大製造生產能力,已經開始思考本土元素,自主創意研發,以及當下新媒體的結合運用,探索前行轉型。
而如何在600平方的高維立體空間內實現新潮品的幕後辦公,設計,研發,製作,展示,新媒體宣發這一係列自由而有序的發生,URBAN設計師嚐試交出這樣一份可能性。
∇ 集辦公,設計,研發,製作,展示,新媒體宣發於一體的高維立體空間
與傳統街鋪不同需求不同,工作室需要承載更大比例的閉門研發生產的實際使用需求,與傳統車間不同,概念工作室又承擔了一定比例的招待,拍攝的可能。白色,是一個沒有距離且無法被定義的色域,中性,中立,自成態度但沒有疏離,用白色接納不同元素,不同互動,不同可能。
看似自由,實則有序,體塊組織動線,視線串聯場地。前端的意見反饋與後端的研發調整是否可以最大效率得到雙向傳遞,決定了一個潮流品牌能否精確且快速的掌握當下創意熱點。
∇ 軸測分析圖
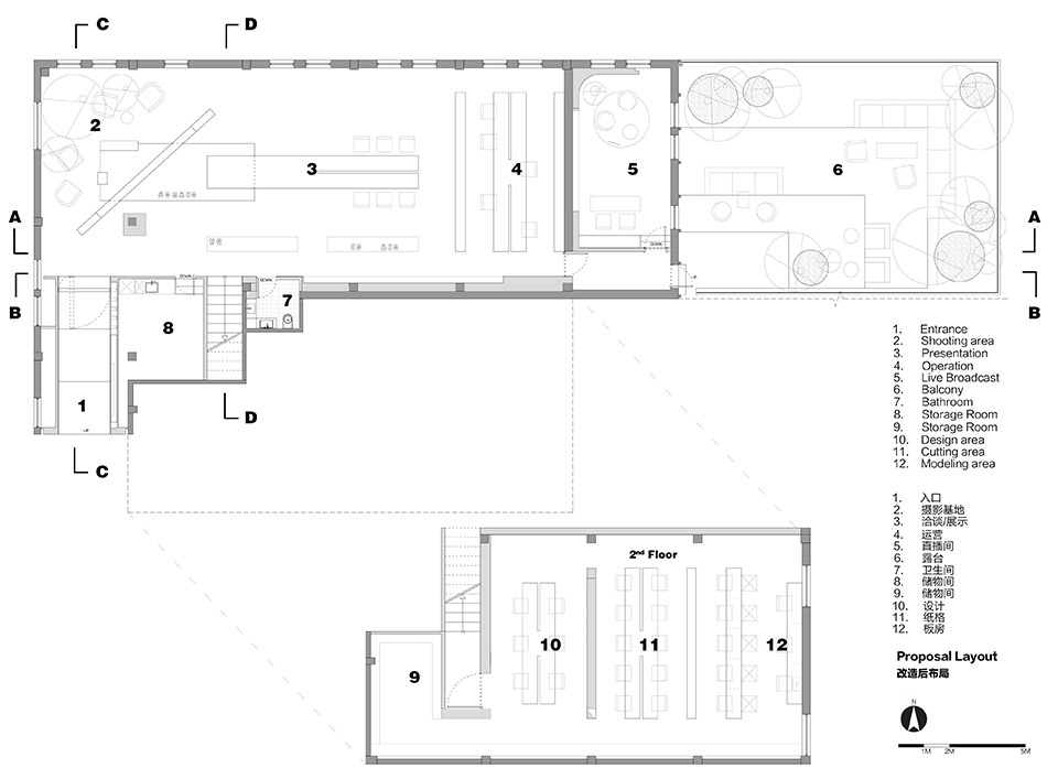
∇ 平麵圖
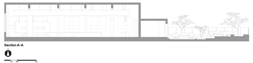
∇ 剖麵圖
項目信息
項目地址:廣州市荔灣區
服務內容:商業空間設計
項目規模:600平方米
項目時間:2021.12-2022.03
項目團隊:Ruggero Baldasso,Evelyn Chen,Andrea Pasqua, 湛柱堅,梁祖兒
攝影團隊:姚朝輝
推文排版:施星瀾
版權聲明:本站所有文章除投稿授權發布外,其他文字內容均為原創,享有著作權保護,未經許可不得以任何形式進行轉載(包括且不限於:媒體、網站、公眾號等)。所有項目照片/設計圖形版權歸原作者所有。本站部分內容源自網絡公開資源或用戶分享,如若侵犯了原作者的合法權益,可聯係我們進行處理。





























