房子,毋須美如樣板間,但一定要有自家專屬的生活感,是本案屋主的深切期盼。
空間,可變化千百姿態,但一定要讓屋主感受幸福自在,是敘研設計的初心不忘。
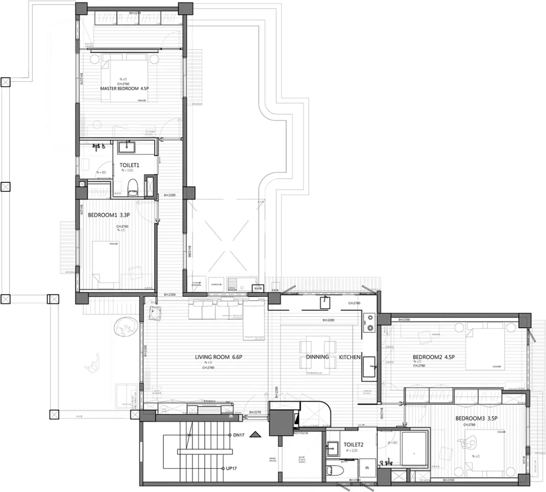
於是,鍾情木質調的屋主,委由擅於展現質材原始肌理的敘研設計,讓這座 L 型空間,不僅滿足想象與需求,更成為逐日堆疊家人情感之記憶載體。
設計團隊揉合格局與環境優勢,廣納漫射的自然光、公共空間動線明朗流暢;質感上乘的選材、簡而不單的美感,於生動氛圍中實現這幅家景:“住在盈滿木質材的寓所,晨光初露時醒來、樹景相伴下用餐、孩子們或爬或坐嬉鬧著…每一刻,都無可取代!”
跳脫框組玄關區界定內外的設計,入門後橫向開闊尺度與大麵窗景迎接,更令人動心!左側規劃小型層櫃便於置放鑰匙小物。
右側結合鞋櫃、衣帽間及儲藏室,於轉角處以圓弧線條消弭銳角,既有造型意趣亦兼顧安全。門片結合洞洞板意象活化空間,增添取放自如之便利。
當無阻礙通透感成為必要存在,客廳僅沿兩端壁麵設置櫃體及沙發,保留中心場域給予女主人瑜珈伸展及孩子們隨性玩樂,不出門依然可讓大人們身心充電、孩子們適度耗電。
玄關至落地窗之梁下區段規劃木作電視牆層櫃,下方以留白視感弱化量體壓迫感,而足量層櫃可收納孩子們遊戲用品;落地窗另一側臨廊道處之牆邊縫隙,以開放層櫃擺放童書或小植栽。
開放式廚房硬件設備皆選用不鏽鋼,除了耐用好清理之特性,亦呼應屋主強調的生活態度,讓質材展露初始樣貌。而於木係空間搭襯金屬元素,適量挹注現代氛圍。
版權聲明:本站所有文章除投稿授權發布外,其他文字內容均為原創,享有著作權保護,未經許可不得以任何形式進行轉載(包括且不限於:媒體、網站、公眾號等)。所有項目照片/設計圖形版權歸原作者所有。本站部分內容源自網絡公開資源或用戶分享,如若侵犯了原作者的合法權益,可聯係我們進行處理。






























