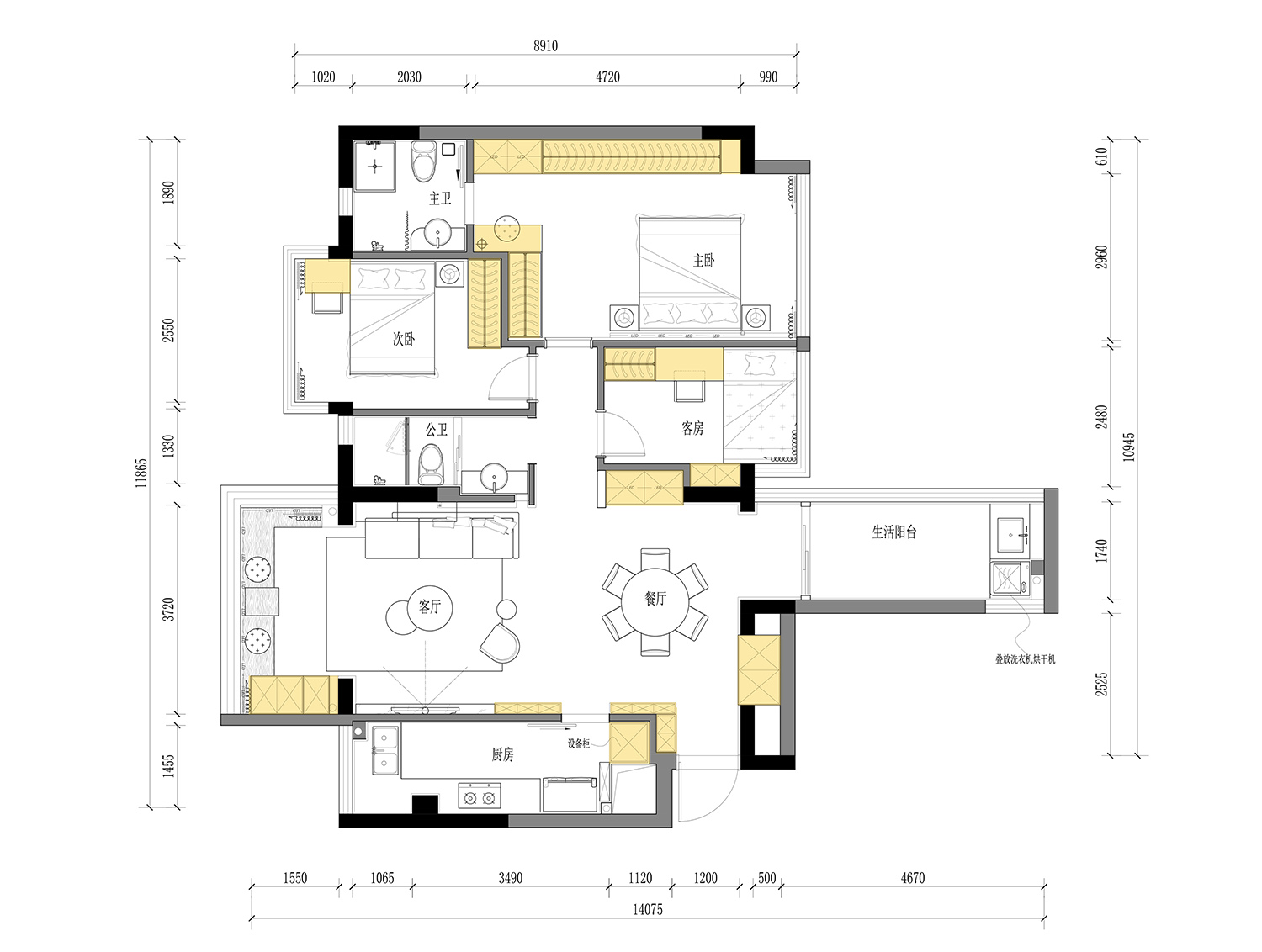
業主是一對90後,目前隻兩個人住,女主人是視頻博主,需要在房子裏拍攝,所以要求極高,房子是位於深圳羅湖區的舊房改造,平麵布置方麵沒有使用開放式廚房,將原本廚房擴大至原生活陽台部分,房子的陽台較多,客廳陽台也封起來作為室內空間,增加客廳的空間,並且增加儲物地櫃(抽屜),形成一個小型的品茶區。主人洗手間做了極小尺寸的微型浴缸,為了實現泡浴自由,屋主也是拚了!
入門玄關處,做了大麵積鏡麵,除了每次出門簡單的梳妝整理以外,同時起到了拉大空間的作用。
全屋大麵積采用溫潤柔和的木飾麵作為主要基調,自然的木質紋理,給人暖心舒適的居家感受,細微處點綴岩板,塗料作為中間過度材質,築加著重於平衡空間的各個麵,達到一種不少不多的平衡感。
在岩板的選擇上,經過細致的搭配,選用帶有與木飾麵相似顏色的紋理款式,光麵的質感與啞麵的木飾麵形成對比,岩板的冷調中和了全屋的暖色木飾麵,顏色卻又相呼應,空間傳達給人的色溫感受被設計師精確把控。
原陽台天花的承重梁,承重柱,是當下設計師於業主們揮之不去的痛,設計師將其整體用木飾麵包起來形成一個木盒子,低位的天花與高位的天花用不同材質分割,打破天花高低的壓抑感,凸窗式的抽屜增加了儲物,又形成一個休閑飲茶的空間,最下方點綴岩板提升品質感。
借鑒日本的衛浴設計的超小形浴缸,僅僅4平方的衛生間也可以實現泡浴自由,衛生間瓷磚選用了奶白色與黑色撞色,瓷磚上有細微紋理,時尚感爆棚,黑色麵配上金色的衛浴龍頭,防水的浴簾,有一種精致的複古感。
∇ 平麵圖
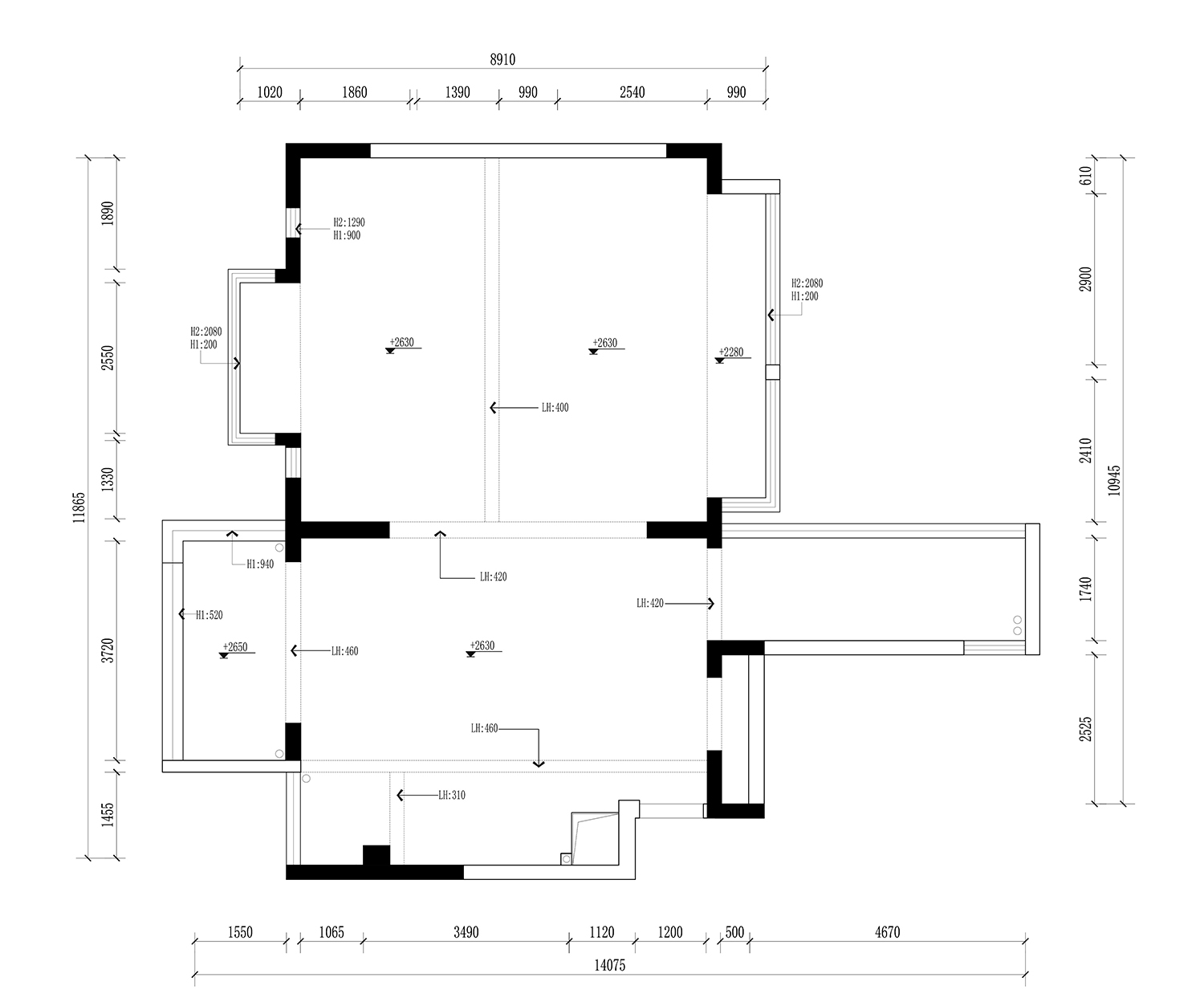
∇ 原始結構圖
項目信息
項目名稱:90後時尚博主之家
設計機構:築加設計
官方郵箱:492161358@qq.com
設計團隊:築加設計
項目性質:私宅
項目地點:深圳羅湖
建築麵積:120 m2
主要材料:木飾麵、岩板、藝術塗料
設計時間:2020年6月
竣工時間:2021年4月
攝影師:劉超凡

































