生活得最有意義的人,是對生活最有感受的人。——盧梭
鯨落於海,星沉於窪,風隱於密林,蟬鳴漏進夏至,楓葉歸於秋色,世間所有,因“家”而變得溫柔。
Everything in the world becomes gentle because of “home”.
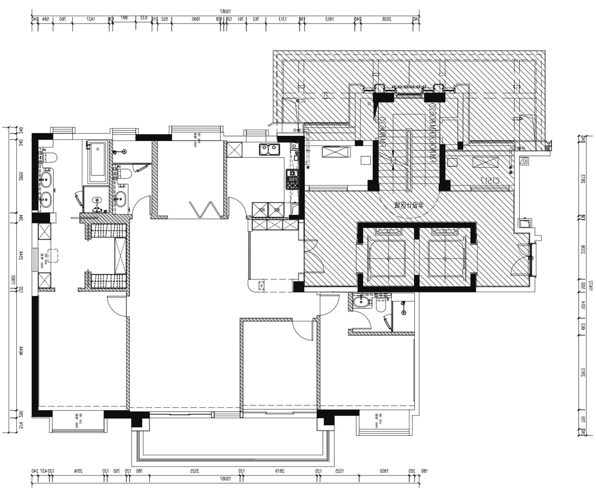
∇ 原始平麵圖
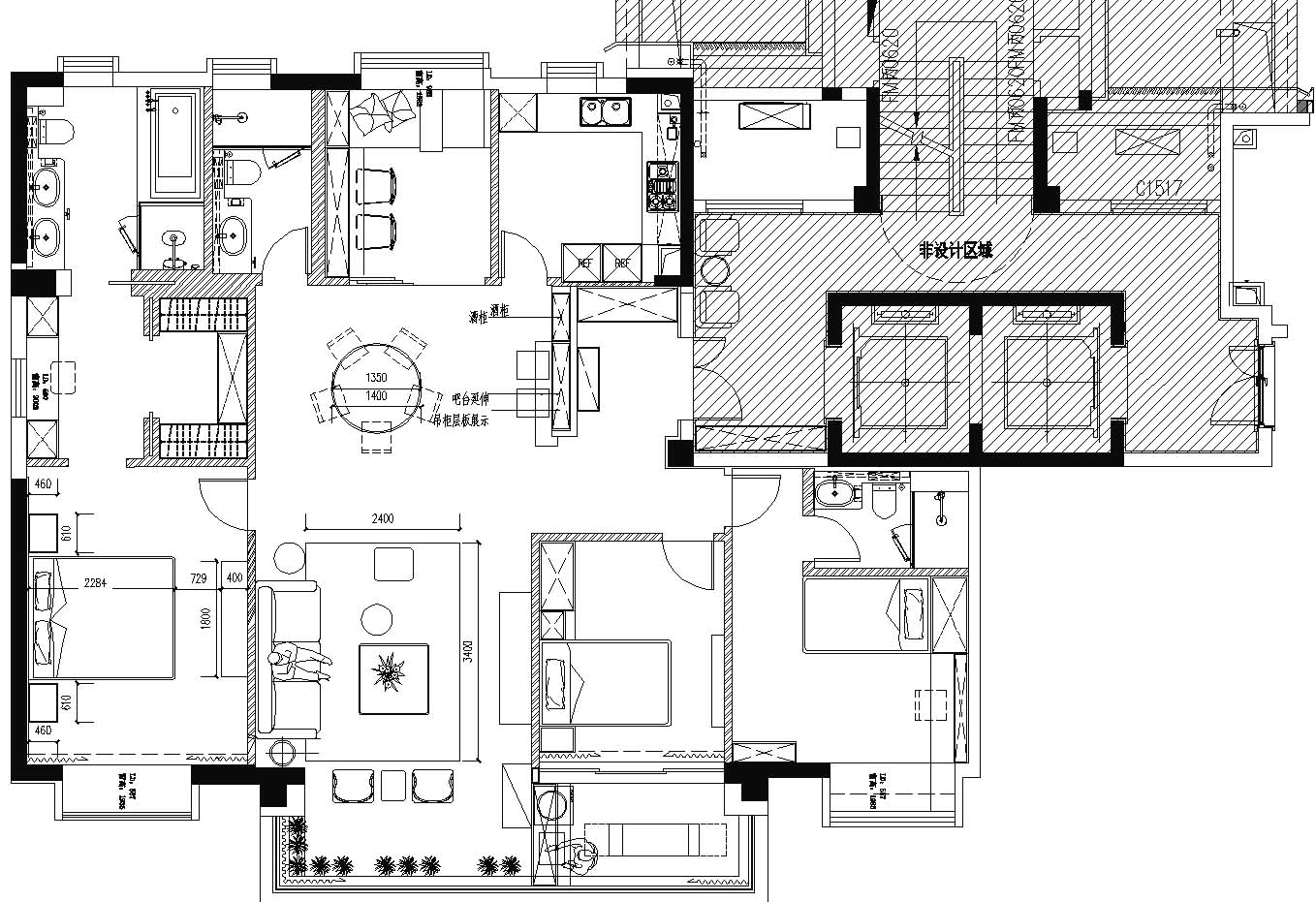
∇ 平麵布局圖
∇ 設計前
設計理念
刪繁就簡,兼顧古典與新文化元素
本案,刪繁就簡,融合東方古典美學與現代新文化元素,展現了新中式獨有的文化神韻以及現代簡約的優雅。如果說有一種狀態能體現主人的個性,那麼”家”便是最好的代表,用最純粹的氛圍,鏈接著主人的過去,現在和未來,在存在與不複存在之間,生活往前流淌。
Eliminate the complex to simplify, and integrate the oriental classical aesthetics with modern new cultural elements.
玄關
顏值門麵當擔,“家”儀式感的開始
∇ 定製玄關櫃
原始玄關有著擠壓感,入戶的舒適感並未體現,設計師基於原始厚度,將玄關拆除,改為集美觀與功能性為一體的緩衝區,對外是門麵當擔的玄關,對內則是功能型的內置島台(上麵是酒櫃,下麵為吧台)。
The designer dismantled the entrance and turned it into a buffer zone integrating beauty and functionality.
餐廳
儀式感家庭大餐,時有發生
新的玄關和餐廳有著巧妙的鏈接,玄關處的改動,有效的為餐廳釋放了空間。原餐廳比較狹長,若放長形餐桌將占據大部分的空間,設計師將其調整為符合主人個性的氣派圓桌,多出來的區域方便活動。
The designer adjusted the dining table to a stylish round table in line with the owner’s personality, and the extra area is convenient for activities.
線條幹脆利落的Calligaris精致餐椅、時尚極簡的Calligaris吧椅、YEZZONE餐桌等營造了餐廳靈動柔軟的氛圍。儀式感是情感催化劑,在具有儀式感的場景中,充滿溫情的家庭大餐,時常都有發生。
The atmosphere of the restaurant is flexible and soft.
客廳
主人性格情調和文化修養的代名詞
∇ 360全景效果圖
∇ 佛龕櫃為定製款
客廳,最能體現主人性格的空間。180㎡的精裝房,原客廳的布局不太符合這個麵積該有的氣場,長至8-10m的陽台也未得到合理利用。基於不浪費的原則,設計師保留原有牆麵不動,陽台一分為二,一部分給到客廳,一部分則歸於功能房。
The balcony is divided into two, one part is for the living room, and the other is for the function room.
客廳往外做了延伸,原2.9m的牆高,設計師做了大理石吊頂處理。由於原始交互標準較高,基於不破壞原有元素的基礎上,空間的所有改動均符合現場的氛圍,局部改造的牆麵、木紋等,設計師盡可能的將其最大化的接近原來的材質和質感。
The living room is extended to the outside, the original wall height of 2.9m, with marble ceiling treatment.
客廳的改動區域相對較大,但最終呈現的效果非常值得,重新設計後的客廳空間,超乎於主人的預期。(一般業主不太願意接受精裝房的大改,但在有必要“動”的情況下,適當的調整,一定會有驚喜發生哦)
The living room has changed a lot, but the final effect is very worthwhile.
∇ 360全景效果圖
男主人偏好於紅木材質的家具,女主人則喜歡現代典雅風格,在雙方難以抉擇的情況下,他們聯係了設計師。
The host prefers mahogany furniture, while the hostess prefers modern and elegant style.
∇ 篆刻出自於著名書法家任佐予先生
基於男女主人的興趣喜好,設計師給到的建議是保留紅木的圈椅,既滿足了男主人對紅木的偏愛,也符合女主人對現代典雅的期待。高級定製版圈椅,材質為印度小葉紫檀。
Based on the interests of the host and hostess, the designer’s suggestion is to keep the red wood armchair.
圈椅的存在,奠定了客廳中式東方風韻典雅的氛圍,基於此,設計師搭配了與之調性相符合的Poltrona Frau沙發,TREASURE傳世茶幾,Flexform電視櫃、定製電視櫃等。
The armchair lays down the elegant atmosphere of Chinese-style oriental charm in the living room.
主臥
低調內斂,演繹無限優雅與自然
生活是豐富而別有韻味的,將精致變成一種尋常,是對生活的熱愛,亦是對生活的尊重。主臥,以溫柔而富有質感的麵料,將寧靜的氛圍得到了拓展。溫潤之韻,構築著心靈休憩的秘籍。
兒童房小主人的天地,學習與放鬆的平衡
由於小主人的學業壓力較大,兒童房在原基礎上,將牆後移,盡可能的增加活動空間,小主人在沉浸式學習之餘,也可適當的放鬆身體,愉悅身心。書椅來自於Calligaris。
In addition to immersive learning, children can relax their bodies appropriately and enjoy themselves.
書房
古今文化銜接的紐帶
一體化進口定製書櫃,方便男主人辦公和閱讀,這裏,是中國傳統文化與現代文化相互銜接的紐帶。書椅來自於Calligaris。
The study room is the link between Chinese traditional culture and modern culture.
如果說城市是人的避難所,那麼於主人而言,家,便是大隱之所的歸處。生活伴著細膩,在緩慢前進的時間裏,追溯榮光。
As far as the owner is concerned, home is the home of the great hidden place.
項目信息
項目地址丨Address:上海徐彙
麵積丨Area: 180㎡
設計單位丨Company:上海示覺室內設計事務所
服務方式丨Service:硬裝+軟裝全案設計服務,主材+軟裝代購及落地服務
設計團隊丨Team:尹琳娟 、陳穎









































