項目位於成都蘇坡街道清源社區,毗鄰蘇坡公園,坐落在清源公園綠帶之中,周邊多所學校圍繞。成都關於“蘇坡”的地名均源於一座古橋——蘇坡橋。
The project is located in Qingyuan Community, Supo Block, Chengdu, adjacent to Supo Park, located in the green belt of Qingyuan Park, surrounded by many schools. The names of “Supo” in Chengdu all come from an ancient bridge — Supo Bridge.
∇ 總平麵圖 ©小隱建築
蘇坡橋,始建於明代,為四洞三墩帶長廊的青石拱橋。宋元佑年間,文學家蘇軾任翰林學士,曾在成都城南楊柳堤講學。出於對蘇東坡的崇敬,人們將他來往的這座橋改名蘇坡橋。如今,蘇坡橋雖已不在,但成都人對於東坡先生的崇敬一直延續至今,成都還有不少以蘇坡為名的地名,如蘇坡街道辦事處、蘇坡路、蘇坡公園、蘇坡立交橋等;亦如《溫江縣誌》中前人詠歎蘇坡橋的詩句:“客去亭何在,橋空水長流”。
The Supo Bridge, built in the Ming Dynasty, is a bluestone arch bridge with four holes and three piers and a long corridor. The writer Su shi of Song Dynasty as academician, had given lectures at the bank of Yangliu in the south of Chengdu. Out of respect for Su Dongpo (Su shi), the bridge he traveled over was renamed as Su Po Bridge. Today, although the Supo Bridge no longer exists, but the reverence of Mr. Dongpo from citizens of Chengdu has continued to this day. Chengdu has a lot of places named after Supo, such as Supo Street Office, Supo Road, Supo Park, Supo Overpass and so on. For example, in the “Wenjiang County Records”, poem the ancient people lamented Supo Bridge: “Where the visitors, where the pavilion, the bridge is empty and the water still runs “.
∇ 蘇坡橋 ©董邦達(清) 四川全圖
項目建築意象便起源於這座消失的蘇坡橋,我們將蘇坡橋的“廊橋”作為建築意象,試圖用現代建築語言勾勒一些蘇坡廊橋的影子,拾憶廊橋。
The architectural image of the project originates from the disappeared Supo Bridge. We take the “corridor” of Supo Bridge as the architectural image, and try to redraw the shape of Supo Bridge with modern architectural language, bringing the memory of the bridge back.
∇ 鳥瞰圖 ©存在建築
∇ 展廊全景透視 ©存在建築
∇ 蘇坡藝廊夜景 ©存在建築
項目處於成都西麵居住密集的區域,前期作為“興城建·玉潤金沙”的銷售展示中心,方圓一公裏內大多數建築都是近些年來開發的居民住宅,距離項目500米範圍內現已配套了三個幼兒園、兩個小學、兩個中學,加之“蘇坡講學”的文化基底,書香氛圍濃鬱。但周邊建築缺乏學校之外的文化延展公共空間,建築後期將作為清源社區小型藝展公共建築向大眾開放,以增加社區文化氛圍,配套周邊公園形成一個可靜可動的中小型遊園。
The project is located in a densely populated area in the west of Chengdu, functioning as a sales exhibition center in the early stage. Most buildings around within a mile are residential buildings developed in recent years. Besides, the project forms a complete set of the three kindergartens, two primary schools and secondary schools within 500 meters, together with the cultural history of “Su Po lecture”, it’s a community with strong artistic atmosphere. However, the surrounding buildings lack public space for cultural extension outside the school. In the later stage, our architecture will be opened to the public as a small public art exhibition area in Qingyuan Community, so as to increase the cultural atmosphere of the community, but also form a medium-sized garden that can be static and energetic by supporting the surrounding parks.
∇ 臨街廣場透視 ©存在建築
∇ 臨街透視 ©存在建築
遵循經濟、環保的設計原則,項目前後功能的轉化不允許空間結構的改動和過多的成本投入,在設計之初團隊就對整個空間架構做了雙重考慮,合理規劃了現下和未來不同功能建築空間的人流動線,結合團隊貫徹的意象建築理論,提出了可以同時滿足藝展和銷售展示中心功能需求的“廊橋”方案。“廊橋”的建築意象亦能讓這個建築不那麼的“建築”,它更似玉帶廊橋橫跨在場地之上,將街頭綠地有趣的串聯起來。
Following the design principle of economy, environmental protection, the transformation of functions before and after the project of conversion is not allowed to changes of space structure and high construction price, so our team think the spatial organization carefully at the beginning of the design stage. “Corridor Bridge” Concept satisfying the function requirements of art and sales exhibitions at the same time comes out, not only reasonable planning for current and future circulations, but also combining with the image architectural theory we insist. The architectural image of “Corridor Bridge” makes this building less of an “architecture” visually as well. It is more like the Jade Belt crossing over the site, connecting the green spaces of the block in an interesting way.
∇ 局部鳥瞰 ©存在建築
∇ 環形內庭 ©存在建築
∇ 入口庭院 ©存在建築
因為後期使用功能為開放型公共建築,區別於常見的封閉院落式銷售展示中心,建築集中為一個整體,以環抱的姿態融合周邊公園及街道空間。寬處為房,整合多種功能空間需求於一處;窄處為廊,開放為公共空間,營造前期銷售展示功能入戶感的同時,兼顧建築與周邊公園“親切的距離感”,也是塑造文化展覽空間的一種儀式感。
Because the function of the later use is an open public building, which is different from the common closed courtyard-type sales & Exhibition center, the building is concentrated as a whole and integrates the surrounding park and street space in an embracing attitude. The wide part is private, which integrates various functional space requirements in one place; the narrow part is a corridor with open public space. While creating a sense of entering into the home in the early stage, it also gives consideration to the “sense of friendly distance” between the building and the surrounding park, which is also a sense of ceremony shaping the cultural exhibition space.
∇ 戶外展廊 © inVIEW影喻影像-肖波
整個建築似幾層廊架疊合而成,“廊橋”意象油然而生。在東側臨公園綠地建築立麵及建築內部空間也延續了“廊橋”意象。建築總共兩層,豎向交通空間除了室內互通的樓梯和電梯之外,另將兩部樓梯外置在東側立麵,形成首尾相銜的空中廊橋,四扇通透開敞的大玻璃也一定程度呼應了曆史上“四洞三墩”的蘇坡橋。多樓梯分散布置,除了解決各空間的疏散問題之外,還為建築不同功能劃分和運營管理提供了必要的通路和不同的進出方式。
The whole building is like several layers of corridors stacked together, the image of “Corridor Bridge” arises spontaneously. The image of “covered bridge” is also continued in the facade and interior space of the building adjacent to the park on the east side. The building has a total of two floors. In addition to the interlocking stairs and elevators in the interior, two other staircases are placed outside on the east side, forming an aerial corridor bridge as well. The four large transparent and open glazing also echo the “four holes and three piers” of the Supo Bridge in history to a certain extent. Distributed multiple staircases not only solve the evacuation issue of each space, but also provide necessary access and different access methods for each function division and operation management of the building.
∇ 展廊夜景透視 ©存在建築
∇ 臨街夜景透視 ©存在建築
∇ 展廳、咖啡廳夜景透視 ©存在建築
室內的“廊橋”根據一樓不同建築空間的層高變化,在二樓形成了一定高差,我們運用懸空坡道將其消化,在不影響無障礙通行的前提下,為建築提供了一些節奏性的遊覽樂趣。
The interior “Corridor Bridge” forms a certain height difference on the second floor according to the height changes of different spaces on the first floor. We use the suspended ramp to solve the height difference and provide some rhythmic pleasure for the building without affecting the accessibility.
∇ 展廳、咖啡廳 © inVIEW影喻影像-肖波
入口50米的半室外長廊和西側臨路主界麵的白色格柵,強化建築整體性的同時弱化建築感,從格柵穿透的柔和陽光與水麵反射的粼粼波光交織成一幅靈動的畫卷,光影亦是展品,更是空間流動的氣韻。通過室內外組合形成一條長150米的展覽長廊,能承載多種類型的小型藝展活動,周邊居民多了一處消遣之地。東側臨公園綠地一側空間的全落地玻璃,把自然引入室內;可結合書吧、咖啡、茶飲等休閑業態形成一定的藝術性經營空間,“自我造血”貼補藝展空間的日常運營,解決當下多數公共建築的營生難題。
The 50-meter semi-outdoor corridor at the entrance and the white louvers at the main interface facing roads on the west side strengthen the integrity of the building while weakening the sense of mass. The soft sunlight through the louvers and the sparkling light reflected from the water interweave into an elegant picture scroll. Light and shadow are also exhibits, but also the flowing spirit crossing through the space. A 150-meter long exhibition corridor is formed through the combination of indoor and outdoor, which can carry a variety of small art exhibition activities and provide a place for the surrounding residents to relax. Full floor-to-ceiling glazing on the east side of the space adjacent to the park green space introduce nature into the interior. A certain artistic commercial space can be formed by combining book bar, cafe and tearoom, and “self-hematopoietic” can supply the daily operation of art exhibition space in order to solve the commercial problems of most public buildings at present.
∇ 總平麵圖
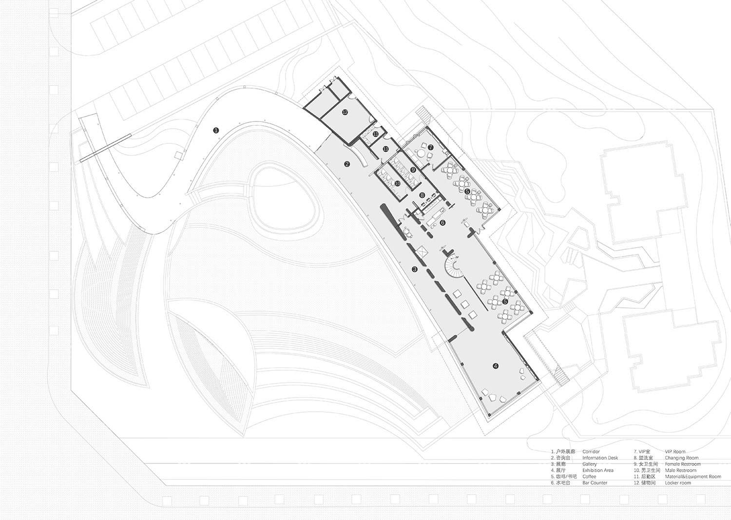
∇ 蘇坡藝廊一層平麵圖 © 小隱建築
∇ 蘇坡藝廊二層平麵圖 © 小隱建築
∇ 蘇坡藝廊剖麵圖 © 小隱建築
∇ 蘇坡藝廊展覽流線示意圖 © 小隱建築
項目信息
項目地址:成都市青羊區清波路
建築麵積:1420平方米
設計時間:2020年1月-2020年4月
主要材料:白色水泥纖維板、鋁板、鋁合金格柵、藝術塗料、灰色水磨石板
Site Location:Qingbo Road, Qingyang District, Chengdu
Area:1420 sqm
Design Period:2020. 1 – 2020. 4
Materials:White cement fibrolite plate, aluminum panel, aluminum alloy louver, artistic coating、grey waterstone plate
建築設計:小隱建築事務所(Archermit)
主創建築師:潘友才、楊喆、陳仁振
結構工程師:杜旭
設計團隊:胡沁梅、何儀、苟源君、劉欣悅、梁貴生
建築施工圖配合單位: 四川華勝建築規劃設計有限公司
Architecture Firm:Archermit
Principal Architects:Youcai Pan, Zhe Yang, Renzhen Chen
Structural Engineer:Xu Du
Design Team: Qinmei Hu, Yi He, Yuanjun Gou, Xinyue Liu, Guisheng Liang
Architecture Construction Cooperation Company: Sichuan Huasheng Architectural Planning and Design Co., Ltd
室內設計:LID萊特築造(成都)
主創設計師:肖波 王軼
Interior Design:LID (Chengdu)
Principal Designers:Bo Xiao, Yi Wang
軟裝設計:成都卡薩洛維奇裝飾工程設計有限公司
主創設計師:唐光平
Decoration Design:Chengdu Casarovic Decoration Engineering Design Co., Ltd
Principal Designer:Guangping Tang
景觀設計:成都塞納園境設計谘詢有限公司
主創設計師:孟繁良
Landscape Design:Chengdu Senna Landscape Design Consulting Co., Ltd
Principal designer:Fanliang Meng
業主單位:成都市興城建置業有限責任公司
施工單位:成都建工集團有限公司
攝影:存在建築 inVIEW|影喻影像——肖波
Proprietor company:Chengdu XingchengJian Estates Co., Ltd
Construction company:Chengdu Construction Co., Ltd
Photography:Arch-exist,inVIEW-Bo Xiao
















































