江流天地外,山色有無中,是唐代獨有的壯闊,千山萬水恰巧在王維麵前相遇了,索性以詩抒情,留知音共賞。風景無論入畫入詩皆是一次新生。假如以建築書寫天地遼闊,該寫什麼、以什麼而寫呢?
秘色
倒影入清漪
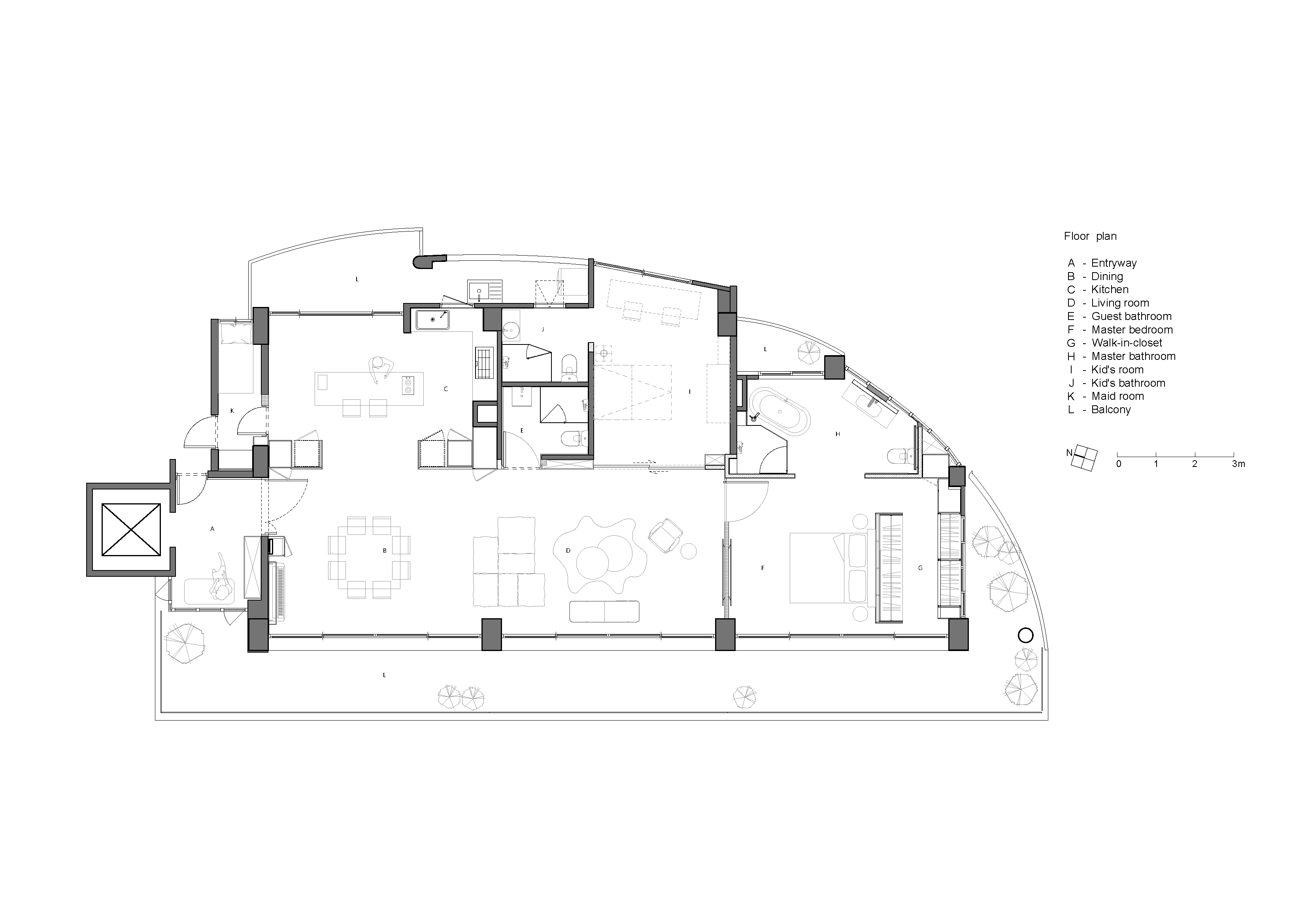
本案長型基地一側擁有連貫窗景和帶狀露台,熟悉山林的屋主遷至市郊生活仍擇鄰近台北故宮、一處有山有溪的住所,希望自然曾經帶給他們的情懷能在此繼續生長。我們將起居環境視為呼應戶外溪林的文本,企圖在故宮藏品間找到表現空間的調子。
以釉寓景,
灰調的山色
瓷器貼近生活、貫穿古今,古代多處著名窯廠所製瓷器,其獨到釉色轉注天地四季例如月白、天青、灑藍,呈現山川在煙雨朦朧中的古雅,點到為止。因此我們以瓷釉串接景色生活,用瓷器當語言將具象寫入建築。
入口一路延伸至主臥的長軸線空間,正對窗景的主牆如一卷沉靜畫布,我們挑選光澤如玉的「秘色」作主調。來自晚唐時期越窯出產的「秘色瓷」,愛茶詩人徐夤曾以「月染春水」、「薄冰盛綠雲」詩句描述,其色類玉類冰介於白灰、碧綠之間。非直白模擬戶外綠意,而是綜觀真實環境、光線與個人感受揉出詩意色調,退入霧中的含蓄,軟而綿長舒展成起居背景,隻見樹影因風搖曳。
而漆料礦物粒子折射日光的強弱變化,使早晨清麗如未散的薄霧,翠色漫著一層灰白;當夕陽直射入室,色溫使牆轉為帶著光澤的碧綠;入夜開啟照明時,白中帶綠的層次似暖玉,隨視角變換色階,如山色在有與沒有之間最美。
調墨寫意,
清染淡綠疏影
以釉色勻牆,地麵便想以水墨襯出場景重量,因為若以常見橡木色襯底,重心不足會使秘色顯得飄忽猶疑,反而以黑棕色為地坪,就如水墨畫中奠定層次的濃墨,在大尺度畫紙上穩住各個元素的定位。且相較於淺色木質,夕陽映入室內時,黑棕色地麵更能襯出明暗節奏,在沈定的軸線上悠悠晾著光影。
為強調窗景和動線流暢,我們拉大落地窗跨距,規劃格局也避免牆體垂直接觸、切斷窗的連貫性,帶狀露台也在外形成另一串連起居的小徑,微風能隨生活在此間遊走。主臥床頭與更衣室隔間牆變與窗脫開距離,綠意和晨昏光景能延續、穿梭。主臥浴室同樣不以隔牆櫃體阻斷采光,但基於隱私更換為雕刻玻璃,梳洗之餘仍可感受個人與自然相連。
即便有隔間,屋裏景色仍是流動的,如玉石的靜謐與光潤都是一氣嗬成。當風自樹梢竄入撥動映在各處綠影,那是生活倚傍自然的況味,下一刻風又靜下,山在畫外。
空間設計:李智翔、廖婉君、陳沛瀅、張碧庭/水相設計
空間性質:住宅
座落位置:中國·台灣
室內麵積:147平方米
空間格局:客廳、餐廳、廚房、主臥室、主衛浴、次臥室、次衛浴、更衣室、客廁、儲藏室、陽台
設計時間:2021.09~2021.11
施工時間:2021.12~2022.07
主要材料:乳膠漆、手工漆、黑色烤漆、水磨石地磚、帝通石、橡木地坪、貝殼馬賽克
攝影:李國民空間攝影事務所







































