在距離上海,蘇州車程一個半小時左右的地方,有一個小村莊:計家墩村。這裏曾經是一座典型的江南水鄉,隨著時代發展,村子人口逐漸減少,空心化愈加嚴重。於是鄉鎮政府邀請專業團隊,對村子進行了再次開發和改造。為了激發村子活力,計家墩村依托原有鄉村風光,引入文化創意產業,吸引了一批城市來的“新村民”,形成了一個新的鄉村理想生活社區。而我們此次的項目–江南半舍民宿,就坐落於此。民宿的位置在村子入口處,基地被一條小河三麵環繞,不遠處便是農田。
∇ 建築外觀
設計理念
在項目之初,我們首先思考的是鄉村和城市之間關係的新可能。從城市來到鄉村的“新村民”,給鄉村帶來了新的產業和生活方式,增強了鄉村和城市間的紐帶聯係,這也為半舍設計奠定了基調:一半是城市,一半是鄉村。
∇ 區位分析
民宿的主人,本身也是村子本地人,在這裏長大。在設計交流的時候,民宿主人提出想給自己預留一片私人空間,希望以後可以回歸到這裏生活:一半是留給自己的私密住宅,一半是與客人共享的開放空間。這樣的民宿,更像是一個開放共享的家。
同時,在打造江南半舍的時候,我們希望建築是一個從傳統水鄉肌理中生長出來的,與自然更交融的空間:於是在滿足功能和使用麵積的前提下,我們化整為零,將一個完整的形體拆分成若幹小尺度的建築,通過排列從中建立起新的秩序。錯落有序的房子,空間上既獨立又相互聯係,而建築間的空隙,讓自然得以滲透進室內,模糊內與外的邊界。
∇ 基地原狀
空間設計
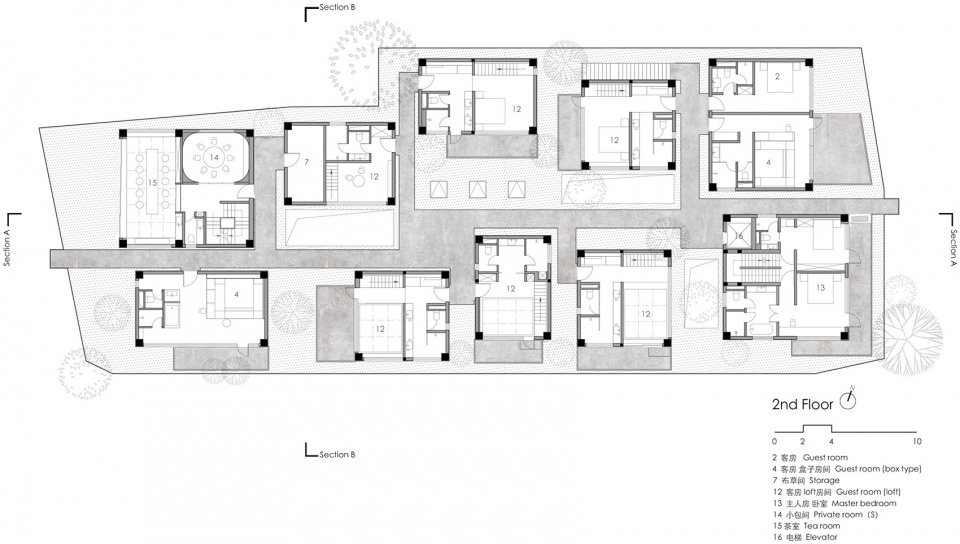
總體布局上,我們用一個連續的大空間,串聯起10個獨立的“盒子”,形成了建築的平麵。這些盒子有公共功能的餐廳,茶室,也有供客人居住的客房,以及民宿主人的私人生活空間。
∇ 分解軸測圖
豎向上建築由一個連續的屋麵劃分為上下兩層,而兩層的空間有著截然不同的體驗。在建築的一層,客房及主要功能空間,沿河麵錯落布置,確保每個房間都有良好的景觀麵同時兼具必要的私密性。一個連續的共享空間組織串聯起各個功能房間。這個連續共享空間不僅僅是交通走廊,還可作為展覽空間,共享客廳,是一個人與人相遇交流的場所。為了與環境更好的融合,將自然引入室內,我們在建築中設置了兩處天井庭院和可以開啟的天窗,既滿足了室內公共空間采光,更讓自然的活力與生趣蔓延進室內。
建築二層空間更加開放自然。連續的大屋麵將10棟房子分割出來,錯落有序的盒子遠遠看去好像是一個漂浮的小小村落。屋麵上鋪滿灰白色石子,一座開放的景觀連廊架設於屋麵之上串聯起相互獨立的房間。每個房間都設有可以走出來的露台,將室內的生活延申到了戶外,在空間上二樓的房間是相互獨立的,而視線上又有著彼此的聯係。如果把石子比作水麵,連廊比作橋,每個房子是一個小家,那這裏又何嚐不是一個抽象的江南水鄉。
建築材質選擇
在建築材質的選擇上,也呼應了建築空間的概念。以連續的大屋麵為劃分,上下兩層采用了不同的材質。場地三麵環水,周邊綠植豐富,於是在一層外立麵上我們采用了竹鋼作為主要材質。竹鋼作為自然材料不僅從質感上讓建築與環境更加融合,觸感上也更加柔和有溫度,給人一種放鬆且溫暖的感受。同時,竹鋼的耐候性也能很好的適應水鄉的潮濕。
建築二層的材質則表現得更為純粹。牆麵采用白色帶肌理塗料,搭配白色啞光金屬屋麵,使得每個建築單體看起來簡單而幹淨。銀灰色鍍鋅鋼板走廊表麵做了亂紋細節處理,大屋麵整體鋪設灰白混合大顆粒石子,二層空間整體呈現灰白色調,以綠色植物為點綴,塑造出一種靜謐的空間感受。
建築室內公共空間部分,整體以白色簡約為主:牆麵和天花選用米白色肌理塗料,地麵是白色的水磨石。這樣的空間,可以很好的映襯天井庭院所帶來的光線變化。同時,也可以滿足公共空間布展的功能需求。在公共空間開放的區域我們還設置了木製固定家具,配合植物和活動家具,營造出開放的共享客廳空間。
∇ 室內公共空間
建築室內客房部分,有深色及淺色兩種色彩搭配。材質選用上采取相同的邏輯:地麵為水磨石,牆麵和天花采用帶有肌理的塗料。在沙發區域,臥室區域,書桌區域則是選用了觸感更加柔和自然的木飾麵材料。淋浴衛生間區域,選用了小顆粒石子為底料的水洗石,不僅增加了空間的肌理質感,還很好的起到了防滑的效果。
∇ 客房室內分解軸測圖
∇ 深色房間
∇ 淺色盒子
在時代發展的今天,鄉村的再次開發帶給我們更多新的課題和可能。江南半舍項目,就是帶著這樣思考的一次嚐試;在江南半舍,可以享受安靜閑暇的時光,體會江南水鄉風情,可以偶遇半舍主人,一同品茶聊天,或是遇到更多的朋友,圍爐夜話把酒言歡。江南半舍,不僅僅是一家民宿,更為城市的人們,提供了一個鄉村理想生活的新可能。
∇ 夜景
∇ 區位圖
∇ 屋頂平麵圖
∇ 一層平麵圖
∇ 二層平麵圖
∇ 閣樓平麵圖
∇ 剖麵圖
項目信息
項目名稱:江南半舍民宿
項目地點:昆山市計家墩村
項目類型:民宿
建築設計:B.L.U.E. 建築設計事務所
建築師:青山周平,藤井洋子,楊易欣,曹宇,陳璐(B.L.U.E. 建築設計事務所)
室內設計:B.L.U.E. 建築設計事務所
客戶:江南半舍
建築麵積:1800㎡
建築層數:2層
結構形式:鋼筋混凝土框架結構
室外主要材料:竹鋼,白色肌理塗料,白色啞光金屬屋麵,鍍鋅鋼板
室內主要材料:水磨石,水洗石,木飾麵,米白色凹凸肌理塗料
設計周期:2019年1月——2019年10月
施工周期:2019年10月——2021年3月
攝影師:夏至













































