屋頂是建築與天空的連接,是空間重要的庇護,也是建築的核心要素。屋頂的形式邏輯被兩個自然要素所左右,重力和雨水。重力作為恒久存在的萬物法則,雨水作為時刻變化的自然之物。與重力的抵抗、與雨水的疏導,決定了屋頂的形式演變。隨著現代材料和力學的發展,自然要素不再是屋頂形式的主導,建築顯現出一種強大無比的人力結果,變得越來越像機器,形體的幾何純粹性和形式的手工操作感(切割、扭轉……)展現著現代人的野心。我們對於建築的哲思並非如此,建築不是對自然驅趕,而是天人合一的互相接納:對自然的狂野進行順導,對自然的生機盡心嗬護。
雨,是因重力落下的水。水,既無形又有形,既柔軟又強力。容器可以刻畫水的形狀,重力可以推動水的力量。水的順導是對重力動態的刻畫,容器般的建築則是對重力靜態的塑造。一靜一動,被牛頓精簡成公式的萬有引力,因建築能夠呈現出多種推演的證明。
雨屋位於遠離城市的半山之中,周圍被竹林和農田環繞。兩座分開的村宅用一片大屋頂覆蓋。屋頂被圓柱撐起,雨水得以多種方式和路徑導向地麵,形成一種無形和有形的對仗。於此,我們稱之為順水六式:
∇ 模型
1. 舉水
將屋頂高高舉起,或從地麵挺立或從牆邊承托,水波形連續的屋頂是導水的容器,將原本均勻落下的雨滴彙聚成線性的水路。
2. 川水
水路沿豎直方向奔湧而下,形成最有力量的疏導。“水滴石穿”是描述水力的古老形象。而在設計中則是讓水路向下洞穿混凝土板,讓水之力得以顯形。
3. 引水
反曲形水渠,渠之形即為水之形,渠之向引水而去。
4. 散水
水從半層屋頂直接沿屋簷散落,跌入水塘之中,這種最質樸的落水方式是自由釋放的水的原始形態。
5. 踏水
在建築二層,路徑必經之處,要穿過一處水塘,水塘中圓形的汀步需要備好步伐跨越而過,如同雨天在野地裏避開水坑的踏水而行。
6. 跨水
橋是富有詩意的人造物,連接和跨越:越澗,越塘,越層,是空間之間,身體層麵的線性連接。
在雨屋的頂層,有一間四麵通透的大山亭,在屋中,將遠山和身體連結。在簷下,於心中,留一片山水。
∇ 亭房室內
2016年設計的“川房”,將金屬落水管坦白的表露在建築外立麵,來形成“川流而下”的關於水的隱喻,是第一次試圖探討重力與雨水的顯形表達。“雨屋”則是對於重力和雨水的進一步探討,不隻是形式的“顯露”,更是在踐行一種對於自然的精心幹預:“欲取之,先集之;欲馴之,先順之。”
∇ 雨屋室內
∇ 客房
∇ 施工照片
∇ 模型
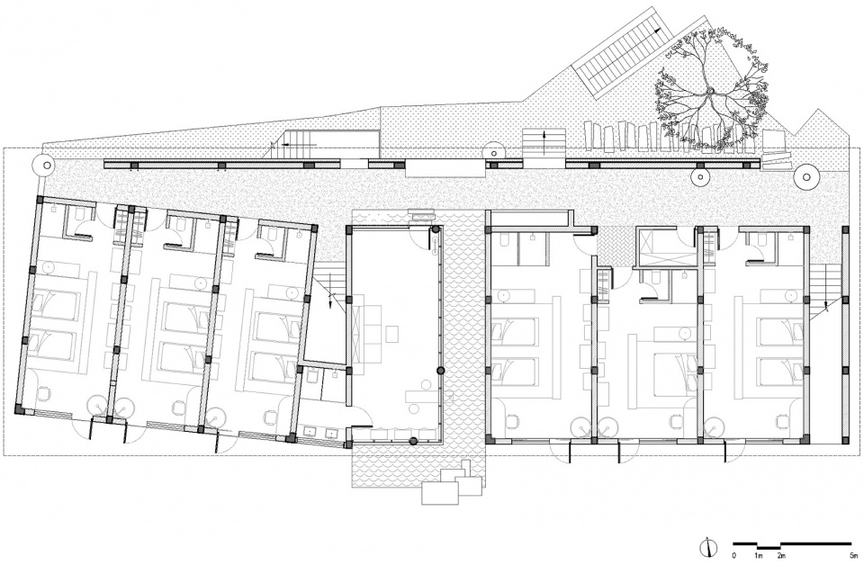
∇ 一層平麵圖
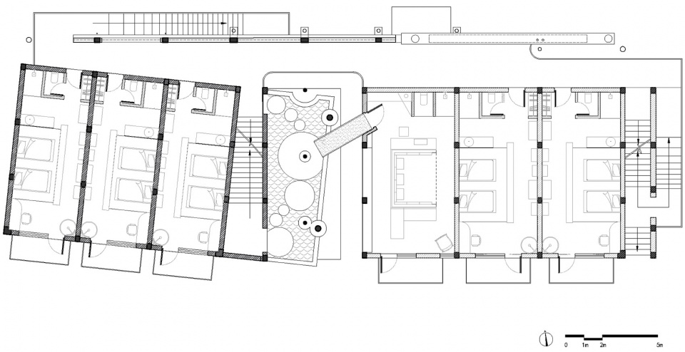
∇ 二層平麵圖
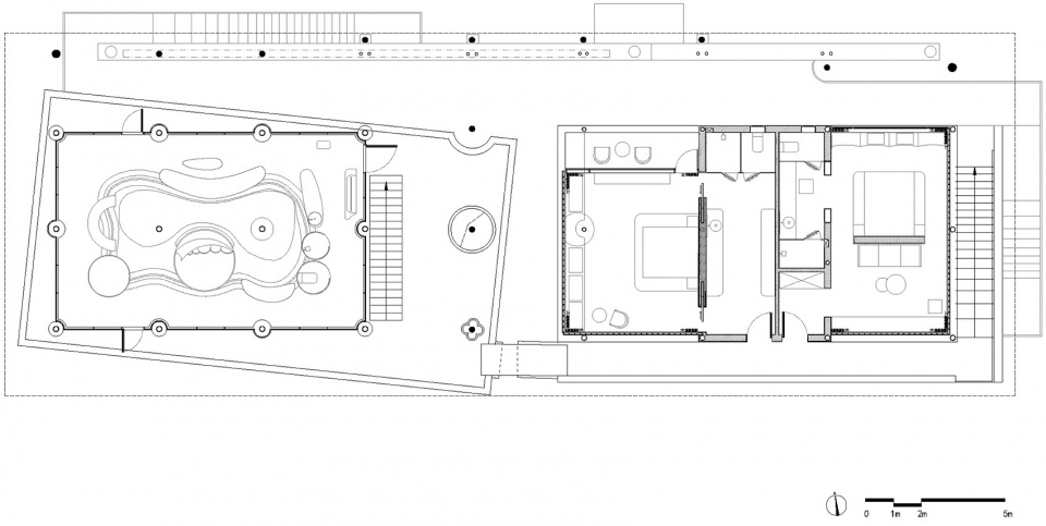
∇ 三層平麵圖
∇ 立麵圖
項目信息
項目名稱:雨屋
Roof III
業主:桐廬·未遲·千山精品民宿
Client:Hangzhou Qianshan Tourism Development Co., Ltd.
設計方:來建築設計工作室
Architects: Atelier LAI
項目類型:民宿酒店
Topology: B&B
地理位置:浙江省,杭州市,桐廬縣,合嶺村
Location: Heling, Tonglu, Zhejiang Province, China
主持建築師:馬島
Architect in charge: Madao
項目建築師:樊宇
Project Architect:Yu Fan
設計團隊:樊宇、廖啟賢、張瑩
Design Team:Yu Fan,Qixian Liao,Ying Zhang
攝影:趙奕龍、唐徐國、樊宇
Photographs:Yilong Zhao, Xuguo Tang, Yu Fan
結構:鋼筋混凝土框架結構&鋼結構
Structural System: Reinforced Concrete Frame&Steel Structure
用地麵積:412.61m²
Site Area: 412.61m²
建築麵積:1081.63m²
Floor Area: 1081.63m²
設計周期:2019年9月-2020年12月
Design Period: 2019.9-2020.12
建設周期:2019年10月-2021年10月
Construction Period: 2019.10-2021.10

















































