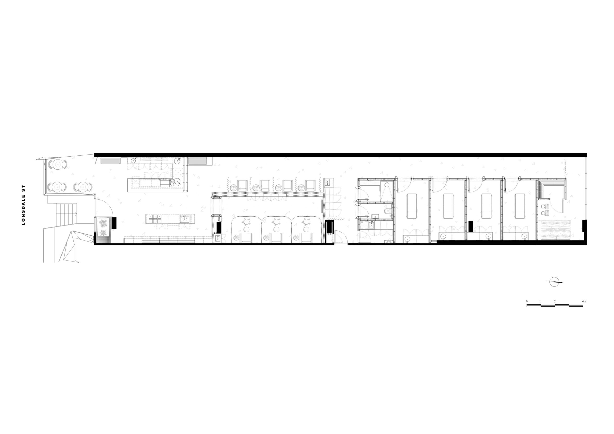
在半永久性畫廊/零售空間的背麵,位於堪培拉的Adytum 圖書館,悉尼工作室Pattern再次與澳大利亞健康集團合作,在該國首都提供他們的第一個水療服務。Adytum 圖書館通過一個實驗項目將 Adytum 打造為一個令人興奮的新品牌,該品牌被認為是對藝術、設計和文學所提供的寧靜的頌歌。與傳統零售相比,Pattern 適當的橫向設計方法使室內更類似於沉浸式的藝術作品。 Adytum 水療中心於 2021 年末開業,是一項雄心勃勃且範圍廣泛的旗艦產品。220㎡的麵積包括專門的零售空間和咖啡廳,以及寬敞的個人美甲室、封閉式私人護理套房、紅外線桑拿浴室和日式浴室。
在水療中心入口處設計戰略性的零售和咖啡廳,突出品牌的零售產品。這個多功能空間獨具慧眼的空間質量反映了之前類似畫廊的圖書館概念——一個令人印象深刻的新品牌零售區。 在這個項目中,Pattern 繼續他們對“感性極簡主義”的概念探索,或者正如 Lily Goodwin 和 Josh Cain 所描述的那樣——“一種精致的設計語言,創造了一種感覺簡約但在物質上觸感和完全寧靜的空間”。 雕塑附加物以深的整體式門門檻的形式出現;帶來重量和定製的野獸派品質。設計過程包括采購和開發當地生產的可持續建築材料。Pattern 委托總部位於藍山的Natural Brick Co製造定製磚塊和實心模具,這些磚塊和實體模具使用建築廢料和材料建造。
Grazia & Co和Volker Haug等當代澳大利亞設計師家具和照明作品的背景是具有紋理的中性色調,倡導自然和可持續的建築材料。國際知名陶藝家阿拉娜·威爾遜(Alana Wilson)的船隻也貫穿始終。 Pattern 堅信,健康不能也不應該與我們居住的建築空間的質量分開;藝術和質量設計確實有助於我們的身心健康。
Δ 平麵圖
























