SENA ARCHITECTS〡葡萄牙Casa dos Gelados住宅改造設計
該項目包括對位於葡萄牙奧良市曆史中心的一座 20 年代建築的修複、擴建和室內設計。由於建築物在過去已經經曆了一些變化,這種幹預旨在利用建築類型、其體積的多功能性和內部組織來恢複空間和建築特征以及質量。
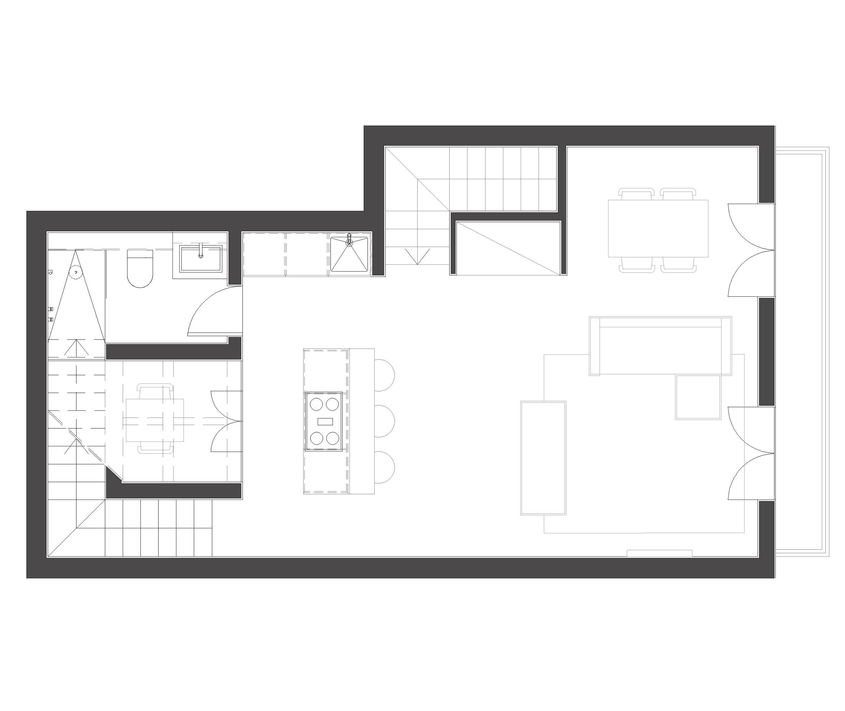
該項目還利用了一些預先存在的元素,就像現有的車庫一樣,由於停車位稀缺,在這個漁鎮中心是非常令人羨慕的。這座房子分為 3 個開放的樓層,通過垂直通道相互連接。在一樓有一個私人車庫,可以進入位於樓上的房子,還有一個小洗衣區和儲藏區。二樓是客廳和開放式廚房,由一個小型的內部庭院提供服務,向天空開放,這為空間本身賦予了生命,使其更加明亮和通風。考慮到該地區的氣候,通風和自然光是該項目的基本要素。
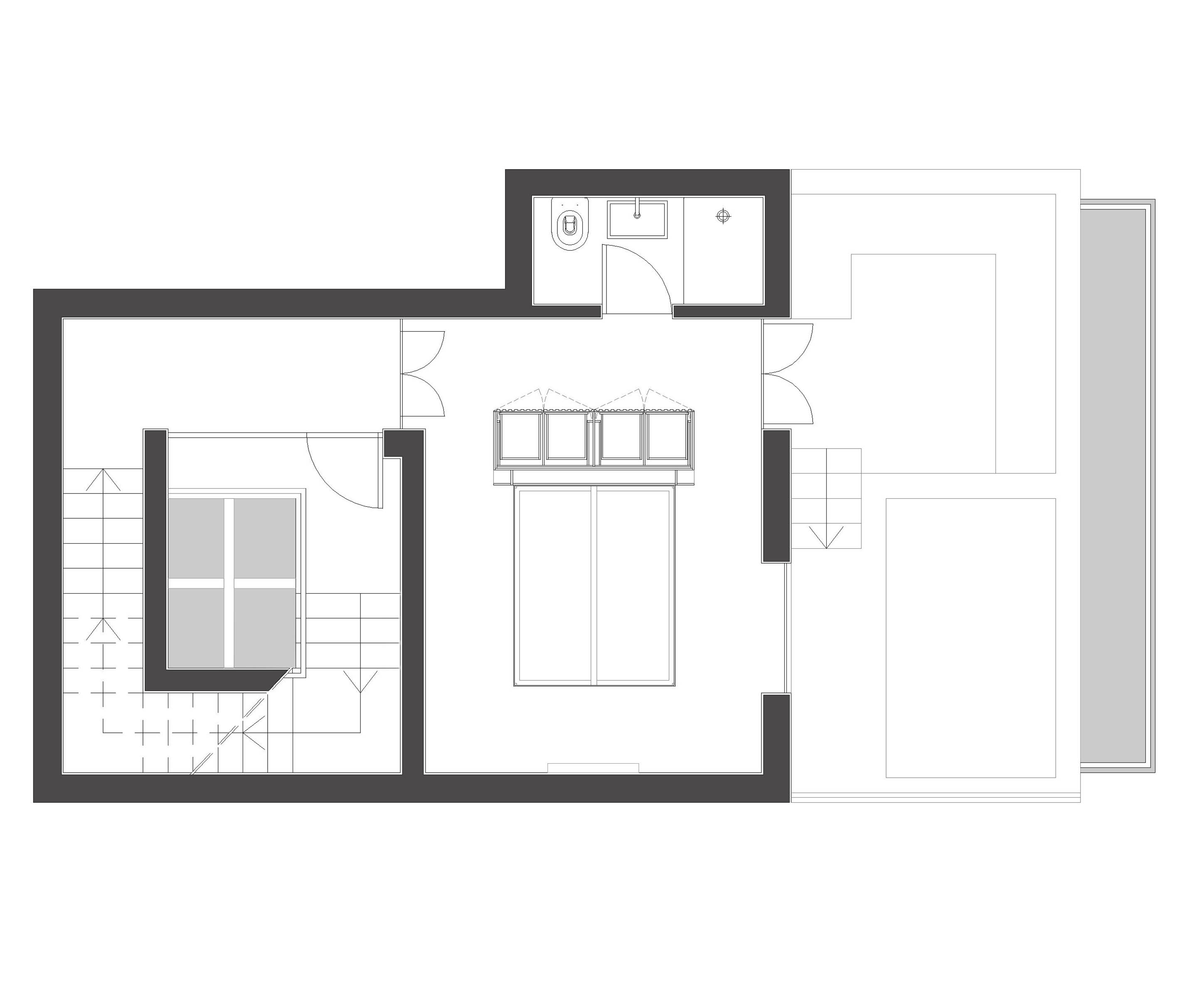
除了浴室和現有陽台的存在外,還需要在這層樓上創造一些存儲空間。走上環繞庭院的內部樓梯,可以進入房子的三樓,那裏有一間帶連接浴室的臥室。在這一層,還可以找到一個帶陰涼休息區的陽台和一個小型豪華遊泳池。建築內部,沿著天井,還有露天樓梯,可以進入一個可以看到美麗海景的大露台,在那裏可以燒烤和享受日光浴。
還有一個問題是通過使用的材料保持或重建建築的傳統性,盡管具有更現代和最新的觸感。例如,可以在外部地板、赤土磚以及帶有外露木框架和內牆和石製品的開口中看到這一方麵。甚至在外牆和本身的裝飾中,通過水泥中的裝飾元素和楣板,這是一個引人注目且非常有特色的地方。
△ 一層平麵圖
△ 二層平麵圖
△ 三層平麵圖
版權聲明:本站所有文章除投稿授權發布外,其他文字內容均為原創,享有著作權保護,未經許可不得以任何形式進行轉載(包括且不限於:媒體、網站、公眾號等)。所有項目照片/設計圖形版權歸原作者所有。本站部分內容源自網絡公開資源或用戶分享,如若侵犯了原作者的合法權益,可聯係我們進行處理。

































![[4K] 2.1G 虛空之美-100個日式庭院](http://www.online4teile.com/wp-content/uploads/2023/09/1_202309111611111-8-414x550.jpg)






