該項目是對龜甲萬(Kikkoman)研究所的重建設計。千葉縣野田市的醬油釀造已有兩百多年的曆史,如今的龜甲萬便是由這裏的十幾個家族聯手成立的釀造組合發展而成的。
∇ 建築外觀 ©雁光舍(野田東德)
地塊周圍點綴著傳統的城市景觀,仿佛在訴說著這段曆史。龜甲萬原來的研究所是一座建成六十多年的混凝土結構的封閉式建築。我們認為,要研究人類用五感品味的醬油和食品,就像與原醬油倉庫的自然相連接的環境一樣,需要一個可以感受到季節、時間和五感變化的空間。事實上,業主也希望打造一個能夠感受大自然變遷、讓研究人員可以愉快工作的環境。
我們從地塊周圍遺留的有關醬油釀造的傳統景觀中汲取靈感,探索可以有所傳承的設計。街道和小巷縱橫相連,彙集了釀造廠、商店和住宅等功能的狹長房屋鱗次櫛比,中間點綴著庭院式的空間。結合這些空間特性,我們認為應打造一個在水平方向擴展的建築,於是果斷決定將近10,000㎡的建築控製在兩層樓高。建築采用了簡單的結構,1層為實驗區,2層設置辦公室等開放空間。
∇ 設計生成
1層實驗區采用整層不分隔的形式,最大限度地提高了空間的靈活性。為了加強功能上的合作,我們設置了小巷一樣的空間使其相連。2層按照“市鬆狀(棋盤格花紋)”設置地板,同時按照“翻轉的市鬆狀”設置挑空、中庭和露台等。通過變化每個市鬆格子的地板高度,呈現出具有地形地貌感的空間。
屋頂是在一組人字形屋頂的基礎上,配合市鬆狀挑空架設的坡形屋頂,以立體地引入自然光和新鮮空氣。1層和2層的空間無論身在何處都能感受到大自然的變化。曆經新冠疫情的洗禮,對於公共衛生價值觀發生轉變的我們而言,這也是一個非常舒適的空間。
2層是市鬆狀的台階式地板,地板高度按照每個格子錯開350mm高差的規律變化。這也是考慮到在地板下設置地板送風空調係統的機器設備時,可以根據每個格子地板下的空間進行合理配置的設計。為了確保實驗室的冗餘度,1層的層高為高於普通建築層高的4,950mm。為了保證上下層之間的順暢合作,市鬆狀連接的挑空樓梯的平台由2層降低1,000mm,在2層創造出了最大1,700mm的高差。盆地狀的地形使這裏成為了一個氛圍安靜的空間,高側窗、中庭和戶外露台使人無論身在何處都能感受到大自然的氣息。
各處扶手按所需分別采用了牆壁和玻璃。由此一來,因各處的地板高度以及站立和坐下時的視線不同,人們便能看到不同的風景。如果在地板高差700mm的地方有一個1,100mm高的壁狀扶手,便會形成一個1,800mm高的屏障,如此一來即使是在連續無分隔的整層空間,也能形成具有包圍感的集中式空間。壁狀扶手同時兼作空調回風的吸入口,配合地板送風空調,在工作區形成空氣循環係統。我們通過在簡單的市鬆模式上加入控製視線的操作,打造出多樣化空間,力求營造一個有助於激發研究人員活力的研究設施。
醬油的釀造是一個古老的化學反應,也是在與城市景觀和自然環境相連的空間中製造出來的。在這個建築中,我們先是根據曆史背景創建了一個模式,又在隨後的設計中逐漸打破這個模式。這並不是剝離元素加以提煉,而是使各個元素和部分發生相乘效應,就像是一個發酵的過程。我們旨在打造一個既能通過地形讓人們體會到自然變遷的情緒,亦能以易於理解的形式使人感受到它與自然和傳統呼應的建築。
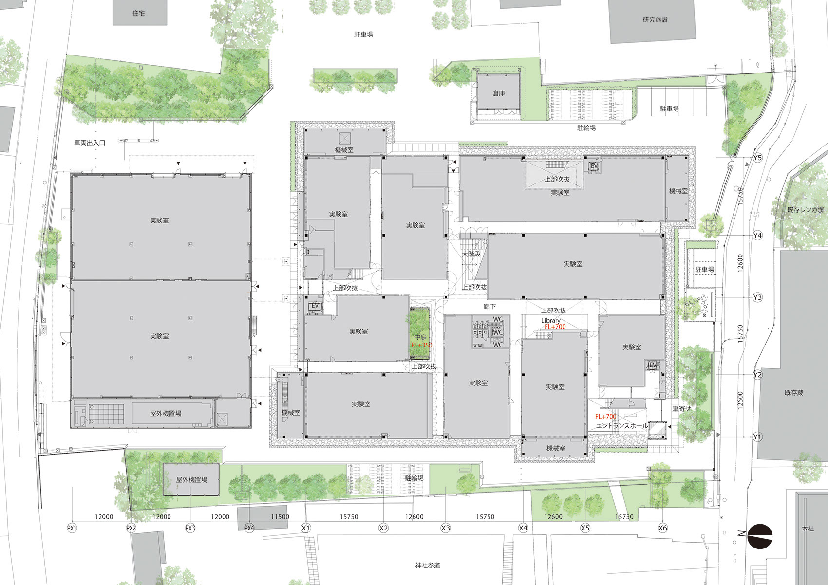
∇ 總平麵圖 ©日建設計
∇ 一層平麵圖 ©日建設計
∇ 二層平麵圖 ©日建設計
∇ 剖麵圖 ©日建設計
∇ 立麵圖 ©日建設計
項目信息
項目名稱:龜甲萬中央研究所
項目位置:千葉縣野田市
項目業主:龜甲萬株式會社
主要用途:研究所
設計單位:日建設計(基本設計、設計監修)、鹿島建設(實施設計)
用地麵積:16,960m²
建築麵積:11,707m²
建築層數:地上2層
建築高度:GL+12.98m
主體結構:鋼結構(隔震)
竣工日期:2019年
施工單位:鹿島建設
項目攝影:雁光舍(野田東德)






































