理想生活之薈舍X左右乾坤家居品牌體驗館 I LICO WORK
SERVICE BACKGROUND I 服務背景
SERVICE 服務
Ideal Life Design & Realization
理想生活全案設計與實現:
Interior Design + Art Décor
室內建築設計+軟裝藝術設計
AREA 領域
Brand Experience Store
家居品牌體驗店
CLIENT 客戶
Huishe All-round Design Furniture Store
薈舍全案設計家居館
DEMANDS I理想生活訴求
近年,隨著各行各業對品牌與價值鏈的認知不斷提升,越來越多的企業進入價值覺醒期。如何從經營銷售“商鋪”的產品與服務價值上升至經營沉澱“品牌”的體驗價值?以及如何向產業行業價值鏈前端靠近與進階,成為了處在家居行業的中末端價值鏈上企業所困擾的焦點問題。作為幫助顧客臻選高品質家居產品品牌、為顧客提供全案設計家居定製服務的渠道品牌,薈舍全案設計家居館創始人向LICO力高設計發出設計邀約,委托LICO為薈舍重構全新的產品服務體驗,傳導薈舍全新品牌感知,以重塑薈舍全新品牌體驗場域精神。
In recent years, with the continuous improvement ofrecognition of brand and value chain in all walks of life, more and moreenterprises have entered the value awakening period. The key problems troublingthe middle and high-end enterprises in the furniture industry are how toenhance an enterprise from selling its products and services to forming itsbrand experience value and how to get closer to the front of the value chain.Huishe all-round design furniture store is a brand provider of high qualityfurniture and all-round house design. At the invitation of its founder, LICOwas entrusted with the design of a new product and service experience so as to advanceits brand awareness and rebuild its brand spirits.
IDEAL LIFE I 理想生活全案實景
SOLUTION I 解決方案
LICO認為,品牌體驗空間的設計創作核心在於對品牌精神、理念深入淺出地理解解讀與表達演繹。故,如何新建顧客體驗第一印象界麵,進而引導並重構顧客與產品、服務的體驗方式,以至無需借由其他複雜冗餘介質來重塑顧客對品牌的體驗感受,直至傳導、再塑和升華品牌精神意涵,成為本案設計思考的原點與終點。
In the views of LICO, the core of design and creation ofbrand experience space lies in the interpretation and expression of brandspirits and awareness. Therefore, the starting and terminal point of thisdesign case is how to build the first expression of the customers, to lead andreconstruct their experience of products and services, to reshape theirexperience feelings in a simple way, and to promote, rebuild and upgrade thebrand connotations eventually.
LICO設計團隊給出的答案是:會舍。
Huishe (willing) is the solution proposed by the LICO design team.
STRATEGY I設計策略
50% DESIGN:關閉感官通道以重啟精神體驗
closing sensory channels to restart spiritual experience
據市場數據分析反饋得知,薈舍近八成的顧客更青睞選擇左右乾坤品牌,它構成並代表著薈舍家居品牌體驗館的品牌核心意涵:用現代設計語言詮釋經典,不拘謹於新中式,以現代極簡主義風格與中國傳統造型美學巧妙融合,將兩者優點相結合的創新藝術形式,去符號、去風格,注重情懷和人文表現,同時兼具新時代全新氣質。
According to the analysis of market data, nearly 80% ofcustomers of Huishe prefer to choose the Qiankun Brand, which constitutes andrepresents the core brand connotation of Huishe Brand Furniture ExperienceStore. The connotation is to interpret the classics with a modern designlanguage and to integrate the modern minimalism with traditional Chinesemodeling aesthetics in a creative artistic way. It has no specific symbols andstyles and attaches importance to feelings and humanistic expression, whichendows it with a new temperament of this new era.
基於LICO 50%DESIGN設計創作理念與“功能美學“審美語境體係,結合薈舍品牌精神意涵,我們確立了“去介質、去符號、去風格,關閉感官通道以重啟精神體驗“作為本案的設計創作策略,以達薈舍營造“寧靜、氣定、神怡”之“會舍”品牌人文精神體驗場域。
Based on the 50% DESIGN creation concept of LICO, theaesthetic context system of “functional aesthetics”, and thespiritual connotations of Huishe Brand, we established the design and creationstrategy of this case as “removing media, symbols and styles, closing sensorychannels to restart spiritual experience” to create a peaceful, calm andrelaxed spiritual space for huishe(willing) brand concept.
寧靜 I 欲退而靜
欲退而有餘地,有餘地則有空間。整體立麵的退斂、標識發光效果的褪卻、置一椅以隱示空間屬性的克製,並非技巧與風格取向的忖度,而皆源自設計師對薈舍品牌精神之理解、體悟與凝塑:欲退而不爭,不爭而心寧,心寧則靜。欲退而靜。
Peaceful
Where there is room, there is space. The introverted exterior of the Store, the fading of the luminous effect of the logo and the setting of a chair are not the reflection of skill and style orientation, but the designer’s understanding of the brand spirit of Huishe — one will enjoy inner peace if he doesn’t compete with others.
氣定 I 稟氣而生
人稟天地之氣而生。敬天惜時,稟受自然之苔、石、竹、朽木,以喻乾坤、晴雨、寒暑、朝昏、晝夜生活之自然智慧,回複靈性以全生,物之空間尺度讓渡於人之運動尺度,置其間漫步隨行,氣定神閑。稟氣而生。
Calm
Man is born within the nature. So we should respect the heaven, cherish the time and take advantage of the moss, stone, bamboo, and decaying wood of nature. The wisdom of the nature is reflected by the heaven and earth, the weather, the season, the day and night. The space of things gives way to the activities of men, so walking in the nature makes men calm.
神怡 I 心釋而空
人之舍,心則釋,釋則空。空即之間,以觀心,安適舍然。空是光之步履,光刻畫空之輪廓、延續空之生命,升華空之精神。光,是生活的理想;是寧靜而靈動、自然而神聖的詩歌。心釋而空。
Relaxed
As a man abandons something, he will get relaxed by emptying his heart. Light is the ideal of life and a quiet, smart, natural and sacred poetry as well.
會舍,是放下,是愛人,是欲望的退斂,靈性的回複,心安舍然。
LICO相信,會舍即是空,空即是光之來處,光即是神之降臨,生活如是。
Huishe (willing) is a state of let go something, loving somebody, retreating from desire, returning to spirituality, and making oneself at ease.
LICO believes that the core of huishe (willing) is emptiness, a place where light comes from. Light symbolizes the arrival of God. Life is much like this.
CUSTOMER REVIEWS I 客戶評價
在訪談薈舍品牌創始人羅先生時,談及為何選擇LICO團隊,羅先生直言,在當下這個競爭激烈的市場環境中,我們必須比其他任何時候都要重視“客戶體驗”,基於薈舍服務的高標準客戶群體,我認為:要提升客戶體驗標準,薈舍就要選擇品質和創新要求標準高的設計品牌。問及項目落地完成後的評價,羅先生說:我們收獲了預約到訪的顧客高度一致的好評,項目落地完成至今,成交率達100%,如果要打分的話,我打101分,因為結果超出了我的預期。LICO為薈舍打造的全新品牌體驗空間,讓我感觸最深的就是:空間氛圍留得住人,不隻是到訪顧客願意多待在這裏,連我都比從前更願意待在這裏,甚至都不想回家(羅先生笑言)。歡迎大家預約到訪薈舍-左右乾坤家居品牌體驗館現場體驗。
In the interview with Mr. Luo,founder of Huishe, when we talked about why he chose the LICO team, Mr. Luobluntly said that in the current market environment of fierce competition, wemust pay more attention to “customer experience” than any other time.Based on the high-standard customer groups that Huishe serves, we need toselect design brands with high quality and innovation requirements in order toimprove customer experience standards. When asked about the evaluation afterthe completion of the project, Mr. Luo said, we have received highly consistentpraise from the customers who made reservations to visit the project. So far,the transaction rate of the project has reached 100%. If there is a score, Igive 101 points, because the result is beyond my expectation. What impressed memost about the new brand experience space created by LICO for Huishe is the liveableatmosphere of the space. Then Mr. Luo said with a smile, the visiting customersare willing to stay here for a longer time, I am more willing to stay here thanbefore and even sometimes I don’t want to go home. Welcome to make anappointment to visit Huishe – Qiankun Brand Store.
薈舍地址:廣東惠州惠城區沙堤二路86號悅湖會14棟L1-8 (周一至周日 10:00-22:00)
Address: Room L1-8, Building 14, Yuehuhui, Shadi Second Road, Huicheng District, Huizhou, Guangdong
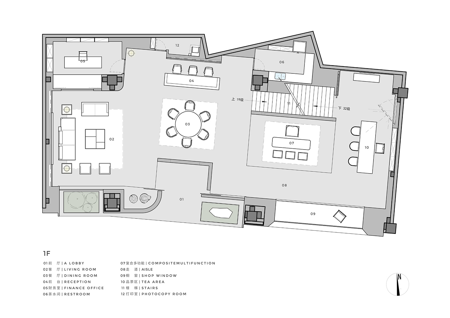
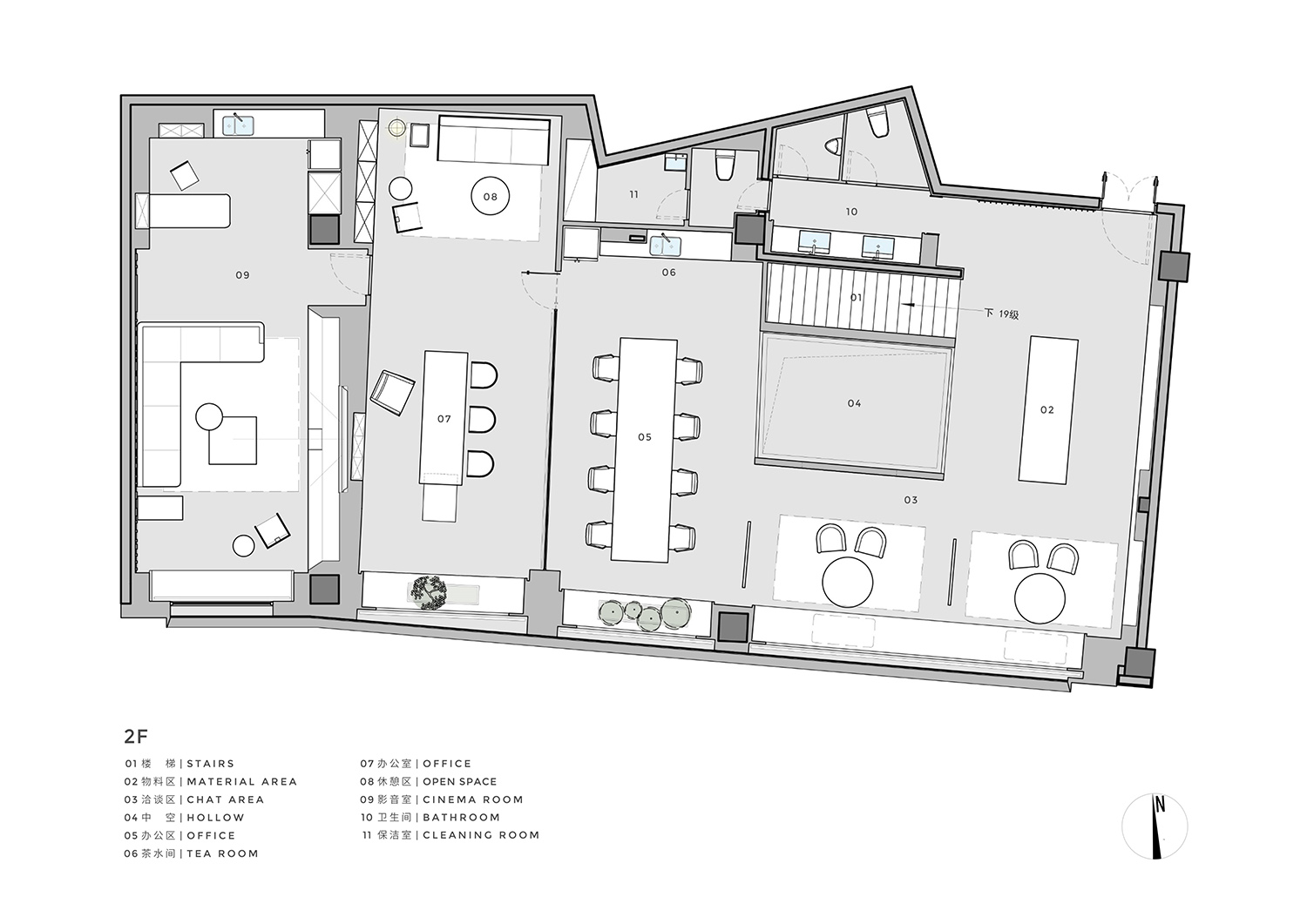
∇ PLANNING OF FUNCTIONS I 平麵功能規劃
SPACE RENDERINGS I 空間效果圖
項目信息
項目名稱 I 薈舍-左右乾坤家居品牌體驗館
設計出品 I LICO力高設計
完成年份 I 2021.11
主創設計 I 鍾良勝
設計團隊 I 曾穎琳、朱洋環、林峰、董華斌、駱秋月、張春燕
項目地址 I 惠州市惠城區惠沙堤二路
建築麵積 I 600平方米
攝影版權 I 隱象建築攝影|歐陽雲
視頻製作 I 千山影像|黃維
客戶名稱 I 薈舍家居館
品 牌 I 乾坤家居
Project Name I Huishe — Qiankun Brand Store
Design I LICO
Year of Completion I November, 2021
Creative Designer I Eric Chon
Design Team I Zeng Yinglin, Zhu Yanghuan, Lin Feng, DongHuabin, Luo Qiuyue, Zhang Chunyan
Project Address I Huishadi Second Road, Huicheng District,Huizhou City
Building Area I 600 ㎡
Photography Copyright I Yinxiang Architecture Photography I Ouyang Yun
Video Producer I Qianshan Video | Huangwei
Customer I Huishe Furniture Store
Brand I Qiankun Furniture










































