節語間酒店位於水鄉烏鎮一處由多條河流交彙形成的半島三角洲。具有私密性甚至有些神秘色彩的場地引導我們將酒店定義為一個寧靜、內省的場所。
∇ 項目概覽
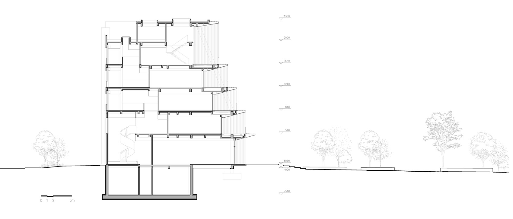
江南水鄉臨水而居、沿河為宅的建築文脈成為節語間酒店建築概念的緣起。一個貫穿五層空間的中庭成為酒店內部空間組織的核心,一係列連橋漂浮於中庭之中,連接客房與公共走道。旅客穿越連橋進入各自的房間,體驗與眾不同的旅居儀式感。
∇ 沿街立麵
中庭北側層層疊落的客房形成退台式的景觀露台,在獲取更佳的河流視野同時,為旅客提供了室外休憩的空間。可開啟的鋁木格柵屏幕包裹了中庭南側臨街的立麵,在建立起室內與室外模糊聯係的同時,也為中庭提供微妙的自然光以及舒適的微氣候。
酒店的室內設計從當地的空間傳統以及水鄉寧靜的環境獲取靈感,自然的木材、工匠手工完成的抹灰、定製的水磨石牆麵和地麵,以及精心設計的藝術品,貫穿了酒店的室內空間。一個具有雕塑感的旋轉樓梯將住客從酒店大堂引入中庭。
∇ 酒店大堂
∇ 中庭
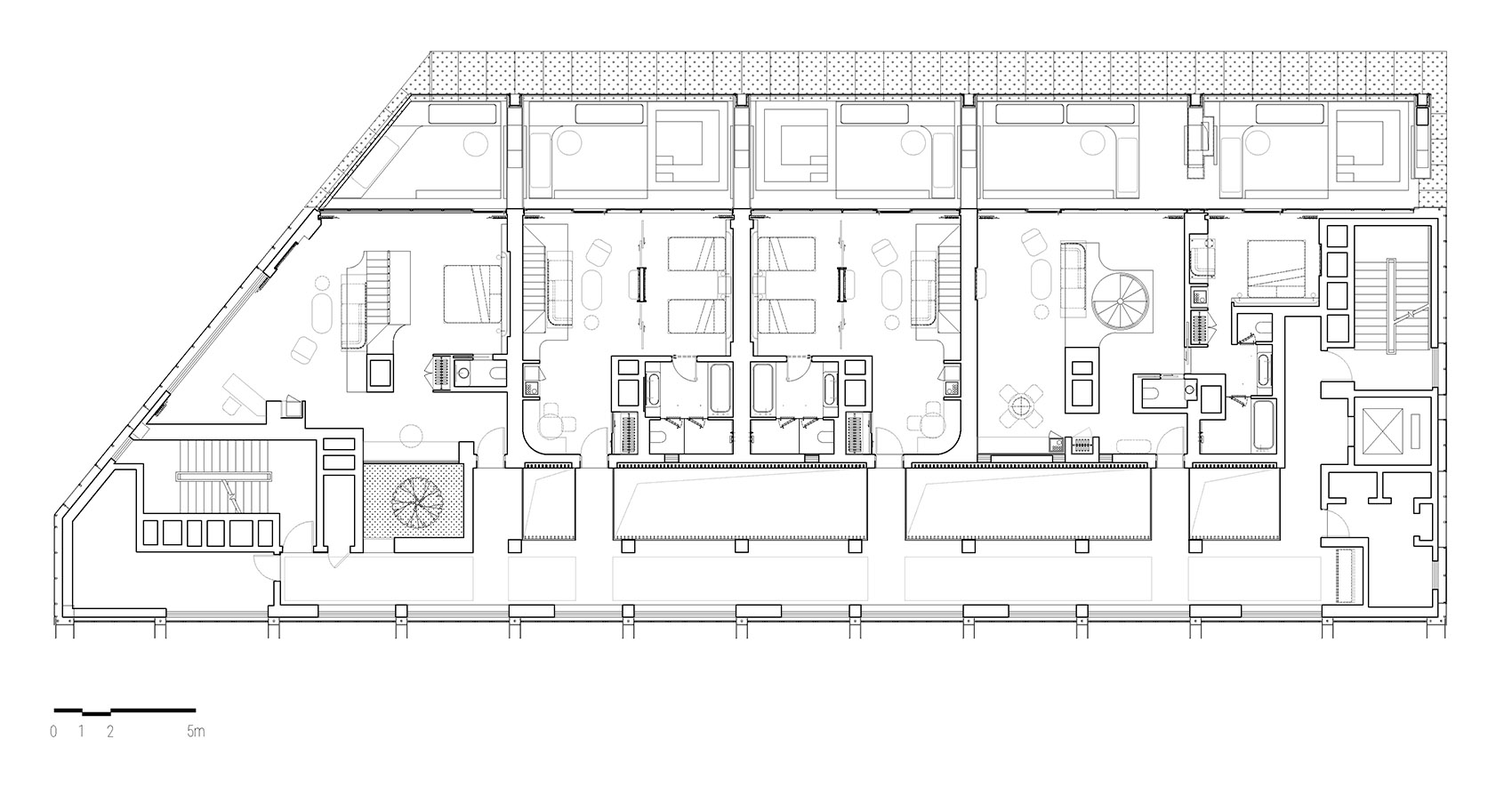
酒店包含多達8種不同類型的客房,包括緊湊而充滿自然光的單人房,擁有絕佳河景的雙人房,乃至享有私人空中花園的躍層套房。在酒店的首層,餐廳麵朝半島的花園景觀開放,連係起酒店的室內及室外空間。
∇ 客房內景
∇ 總平麵圖
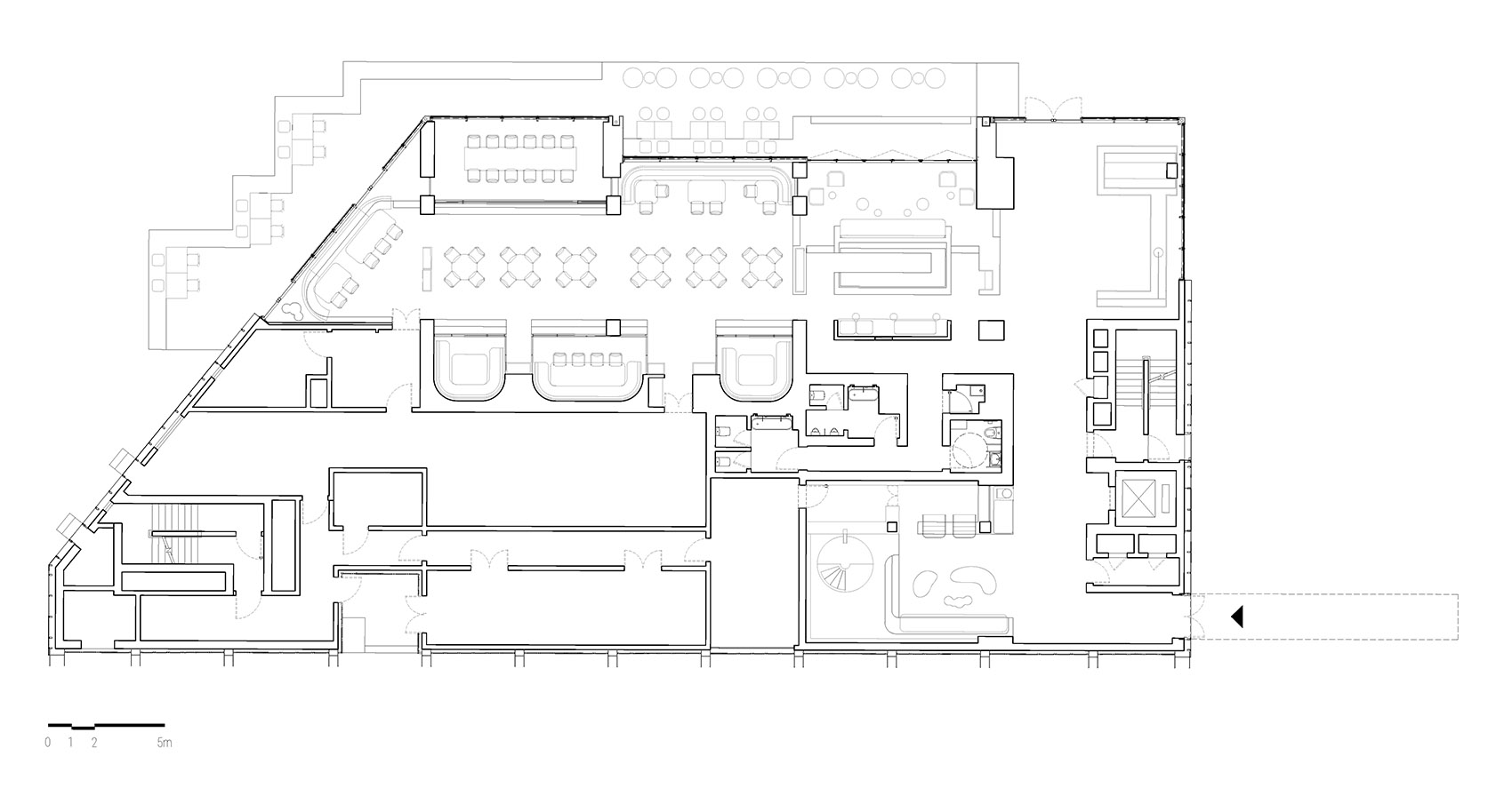
∇ 一層平麵圖
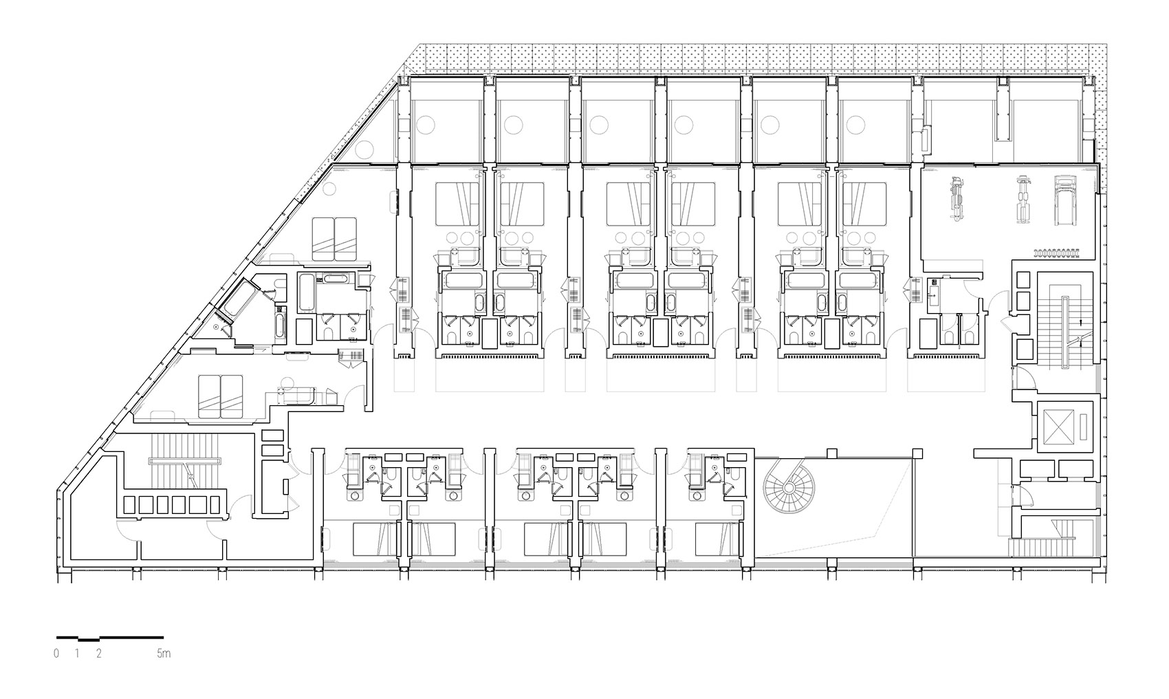
∇ 二層平麵圖
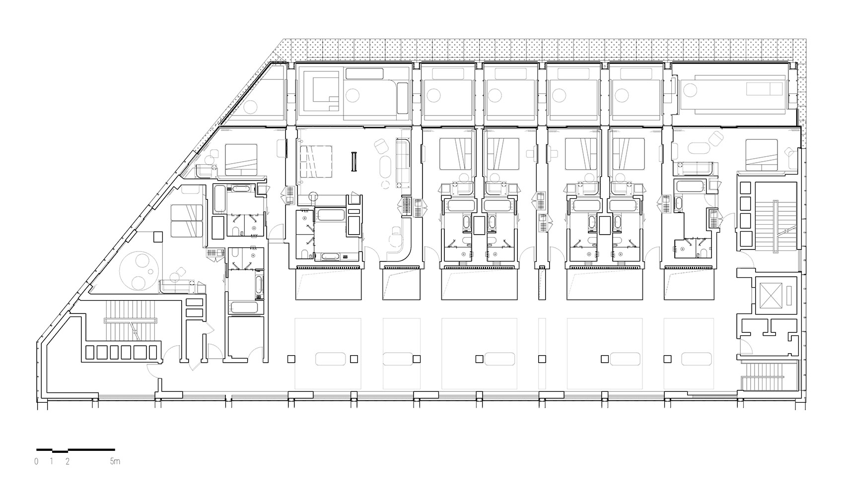
∇ 三層平麵圖
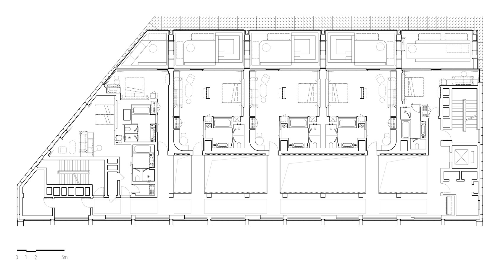
∇ 四層平麵圖
∇ 頂層平麵圖
∇ 剖麵圖
項目信息
建築及室內設計:新實建設計事務所 (New Practice Studio)
主創建築師:鍾念來
設計團隊:郎斯棟,李泰利,陶霆星,崔睿,Andy Chu,楊雋超,王一伊,梁文穎
本地設計院:同濟大學建築設計院(TJAD)
景觀設計:E-DESIGN
燈光設計:Illumination of City Environment (ICE)
品牌設計:NOSIGNER
室內施工:浙江梵石裝修工程有限公司
建築麵積:5,000平米
完成年份:2021
地點:烏鎮,中國
攝影:吳清山,Jiaxi&Zhe,李芸






























