城中村依偎在現代化的都市中,是城市化進程的遺留。擁有近1700年曆史的南頭古城,位於深圳的城市中心,從昔日的富庶古都演變為如今擁擠喧鬧的城中村。古城內的蜿蜒小巷、廣場和胡同,錯綜複雜、緊密相連,吸引著無數遊客的駐足好奇。當地居民、街頭小販、嬉鬧孩童和流動人口亦在此棲居。如恩將位於南頭古城的一棟居民住宅,改造成為設有十一間客房的精品酒店。
∇ 場地和城中村肌理鳥瞰圖 © 陳顥
南頭古城的街頭巷尾充盈著勃勃生機。如恩試圖將日常生活的景象納入設計——人、物件和他們所處的環境,都是靈感的來源。為了延續城中村的市井煙火,如恩對原建築進行切割,將外部景象引入的同時,也在內部創造出全新的公共空間。在這一過程中,設計師如臨考古現場一般,將諸多材料和建築結構層層剝離,建立起過去與當下的對話。
斯維特拉娜·博伊姆(Svetlana Boym)的“反思性懷舊” (reflective nostalgia)理念貫穿於項目的研究及設計過程。如恩並非簡單地模仿過去事物的表象,而是試圖發掘隱匿於過去的各種可能,並賦予當代文化更多的活力。如恩以兩種不同的建築語言,應對城市複雜的肌理與碎片化的形態:建築的立麵由輕盈的屏罩包裹,而頂層則以厚重、富有表現力的形式,為古城的天際留下一道別致的輪廓。
∇ 改造前建築外觀
∇ 改造後酒店外立麵 © 陳顥
如恩在頂層設計中采用了平屋頂的形式,並加蓋了金屬結構。對於空間局促的城中村而言,這一向上伸展的空間,將當地巷道生活的畫幅延伸至屋頂,為公共空間帶來了新的詮釋。
∇ 酒店頂層夜景 © 陳顥
建築入口及公共區域有意地串聯並入當地的街道小巷之中,融入南頭古城獨特的城市肌理之中。沿著小巷可直接抵達,隨後步入建築中心,如同邀請鄰裏朋友來自己家中做客一般。
穿過巷道步入酒店後,訪客站立於公共空間,視線隨著軸線不斷移至向上。原本將各樓層連接起來的樓梯井,被切割、擴寬,創造出全新的垂直庭院。切割開的建築立麵及上方的采光井,將自然光及建築外的街景引入至建築內部。全新的金屬樓梯懸置於垂直庭院之中,訪客由此到達各層客房及屋頂平台。新與舊在建築內並存融合。
∇ 客房套間 © 陳顥
∇ 客房休閑區域 © 陳顥
∇ 客房臥室 © 陳顥
切割並非僅僅意味著破壞,它同時也是空間與意義的創造。深圳南頭古城有熊酒店的設計融入了城市特征,紮根於城市的興衰,使私人化的生活曆史變得清晰可辨,追隨著城市不斷向前的步伐,須臾不停。不斷變化的“切口”仿佛開啟了一個全新的入口,可以通往過去,亦可進入平凡而奇特的當下。
∇ 場地平麵圖 ©如恩設計研究室
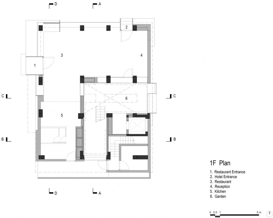
∇ 一層平麵圖 ©如恩設計研究室
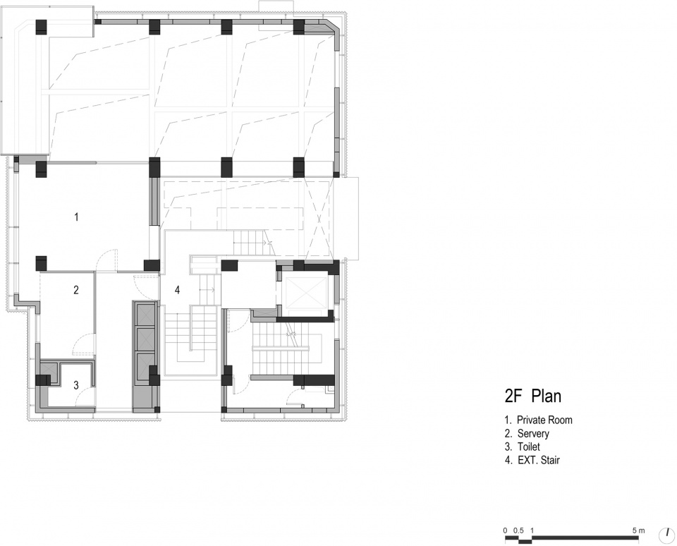
∇ 二層平麵圖 ©如恩設計研究室
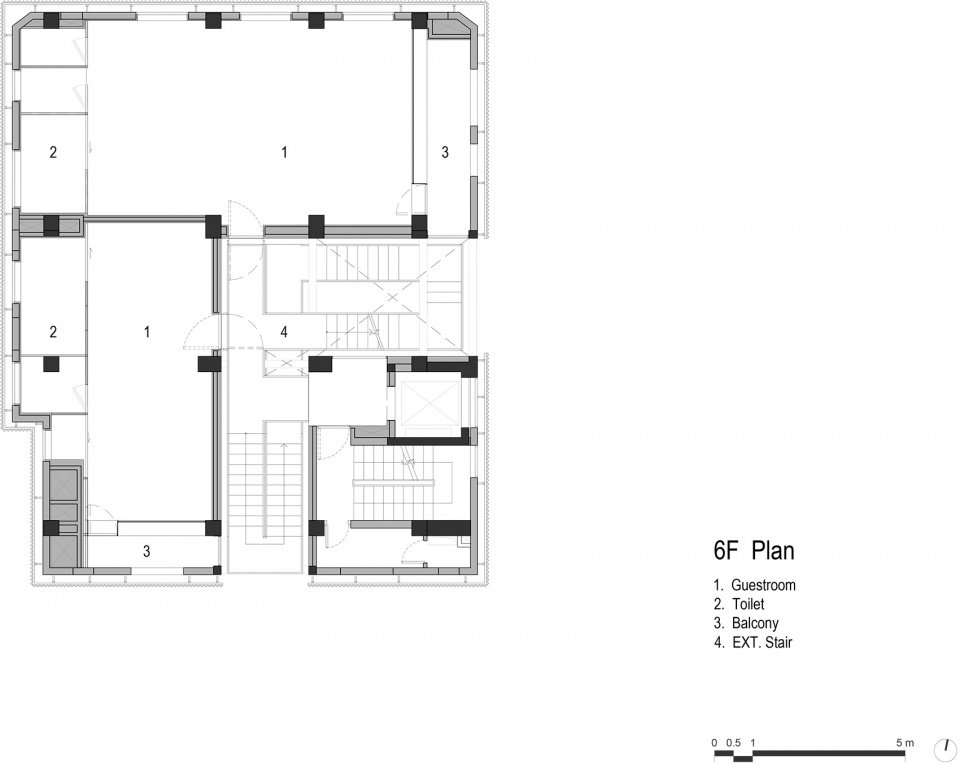
∇ 六層平麵圖 ©如恩設計研究室
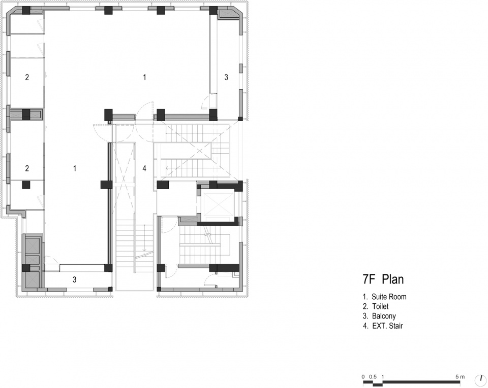
∇ 七層平麵圖 ©如恩設計研究室
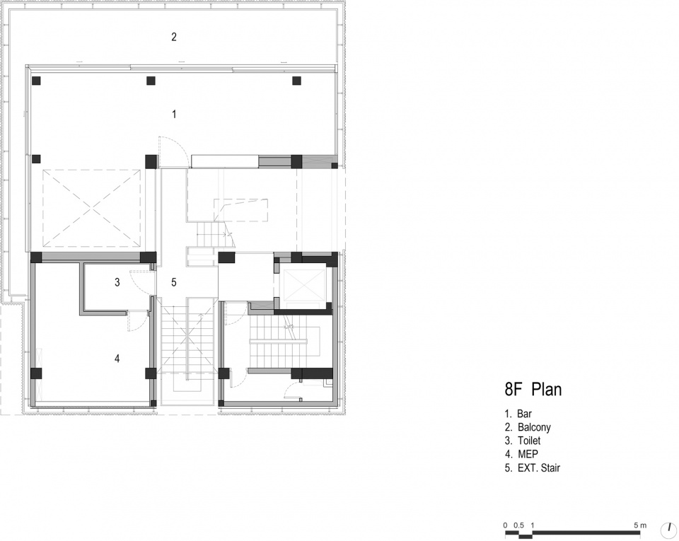
∇ 八層平麵圖 ©如恩設計研究室
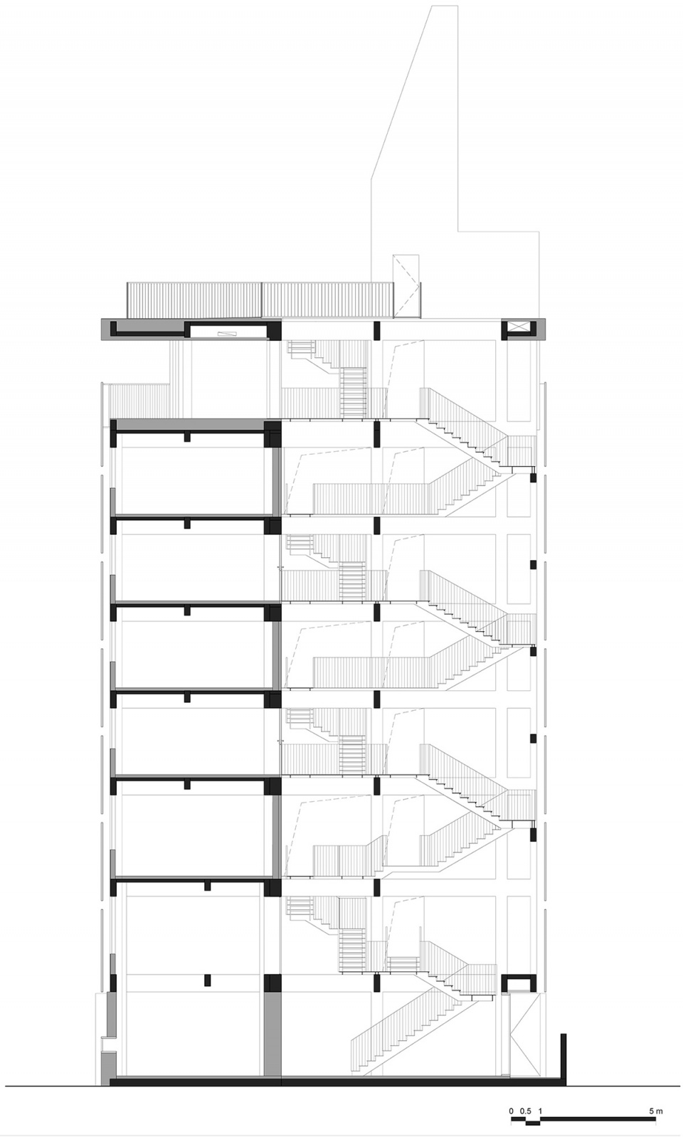
∇ 剖麵圖 ©如恩設計研究室
項目信息
地點:廣東省深圳市
時間:2021年
客戶:深圳市萬科發展有限公司
建築麵積:1,370平方米
主持建築師:郭錫恩,胡如珊
主持資深協理:陳建全
資深協理:張堇盈
協理: 許建
設計團隊:楊秉鑫,王典,程寧馨,葉凡,Bernardo Taliani de Marchio,賈城,唐曉棠,李傑祺,鄭芃芃,周原仰,餘琪晨韻,王誌康,舒桐,宋貞泰,劉凱妮,黃惠子,王呂齊眺
建築設計:如恩設計研究室
室內設計:如恩設計研究室
軟裝設計及采購:設計共和
顧問
設計管理:萬科集團城市研究院
當地設計院(建築):深圳市博萬建築設計事務所(普通合夥)
幕牆:深圳市朋格幕牆設計谘詢有限公司
當地設計院(室內):深圳市標高裝飾設計工程有限公司
燈光:大觀國際設計谘詢有限公司
景觀:深圳市園冶環境設計有限公司
施工方
施工總包:深圳市西部城建工程有限公司 幕牆:上海巨諾實業有限公司,深圳市西部城建工程有限公司 室內:深圳市創寶裝飾工程有限公司
鋼結構:深圳市創寶裝飾工程有限公司 門窗:旭格國際建材(北京)有限公司










































