Cassina所代表的,不僅是過去的未來,也是未來的未來。Cassina寧波店的設計中,正反設計以獨特的解構手法與空間語言,詮釋其品牌在過去很長的時間軌跡中,不斷超越過去、不斷進化的曆程。
1
潮流先鋒
Cassina作為設計潮流的旗幟,也是全球家具設計的風向標,在設計和材料方麵進行廣泛的實驗與探索,大膽創新,創造了許多經得起時間考驗的經典之作。其品牌所代表的先鋒與前衛,一直引領著全球設計的發展。作品不僅為意大利現代家居的巔峰時代做出巨大貢獻,也為世界的家具設計指引了方向。
Δ Cassina經典設計
享譽全球的成功,離不開時間的加持。如何解構Cassina的品牌內核與時間哲學,巧妙地將兩者融合並以建築空間的形式表達而出,對正反設計來說是一大挑戰。
品牌特性的全新詮釋,讓其中所蘊含的內核得以呈現,讓觀者獲得更貼切的感知,在理解Cassina品牌的同時,感知其隨時間而不斷超越過去並進階的過程。品牌與空間也在聯結的過程中相互成就,場域在被賦予深層含義的同時,品牌的認知與價值也在其中得以提升,以嶄新的表達方式與觀者對話,與世界對話。
2
建築與外界的延伸互動
在整個設計過程中,正反設計遇到的最大挑戰是外立麵的建造。最初嚐試使用不鏽鋼來打造接近鋁板的質感,卻難以達到理想效果。多次試驗後,最終決定采用鋁板作為主要材質。鋁板本身材質過軟且需打磨,然後上牆試樣,這無疑讓難度係數攀升,但預期效果也隨之呈現。
鋁板的肌理隨著時間的變化而滋生出不一樣的狀態與質感,自然的氧化又頓生時間感,自然的不確定性美感留痕於建築,建築也漸漸地與自然更契合。屋簷的設置亦納入自然尺度的考量之中。雨滴從簷邊滾落,滴墜於台階之上,讓顧客能夠“細聽空階雨滴”,聆聽大自然的輕聲細語。
△戶外分析圖
露台的設計,加強人與人之間的互動性,讓城市的氣息與建築空間更相貼切。對門店的長條直線樓梯進行改造,增加空間停留點,讓顧客在探索過程中獲得樂趣,也能在其中進行活動與交流。而另一方麵,則將周邊的生活氛圍牽引入室內,讓室內活動延伸到戶外露台,讓建築與外界相融合,讓自然氣息和煙火之味與建築交彙相洽。
3
過去與未來的交融解構
基於Cassina的品牌氣質,正反設計將居家生活理念融入展廳的設計中。家具設置成小型裝置作品,圍合模擬出不同的居家景致,構建溫馨卻不失質感的場域氛圍。
顧客徒步進入空間後,被博物館一般的展陳方式圍繞。
旋轉樓梯的設計,創造了向上的空間引導,激發繼續探索的欲望,讓觀者從時間與空間的雙重維度,自發性地去觀察與探索其中所蘊含的設計理念。
△一層空間分析圖
天花的設計靈感源於公元前27年羅馬的一座神秘建築——萬神廟。以其現代線條的流動性增添新的空間維度,打造視覺亮點的同時建立過去與未來的聯結點。
牆、地、天花一體的色彩基調為空間鋪陳施展多重可能。
明朗的線條浸潤在溫和的燈光之中,掠去冷硬的鋒利感,平添幾分朦朧意象,讓空闊感隨之而生。
玻璃圍塑而成的旋轉樓梯將質感與通透感相結合,為觀者帶來純淨且靈動的視覺感受,調和空間色係與材質的變化,編織張弛有度的氛圍。
△旋轉樓梯分析圖
△二層空間分析圖
不同形態與曲線的組合穿插,與現代家具的幾何感相襯,增加空間的秩序感與層次感,讓各部分空間獨立分隔卻又相互聯係,加深設計語言的飽滿度。
以園林框景的設計筆觸,勾勒一處正圓圓洞。
△圓洞分析圖
讓其他區域的光線與風景落印而下,為空間注入別出心裁的畫麵亮點。在光作用於環境的同時,為顧客帶來獨特的感官體驗。
物質在時間中永恒運動並持續變化,過去與未來在具象化的過程中交織相融,品牌的理念特性在時間的哲學中更迭超越。建築空間的構造,獨到的設計手法,讓Cassina的過去與未來以清晰明了且更深刻的方式呈展而出,品牌的先鋒性得以完美呈現於空間設計的每一處細節。
△1F平麵圖
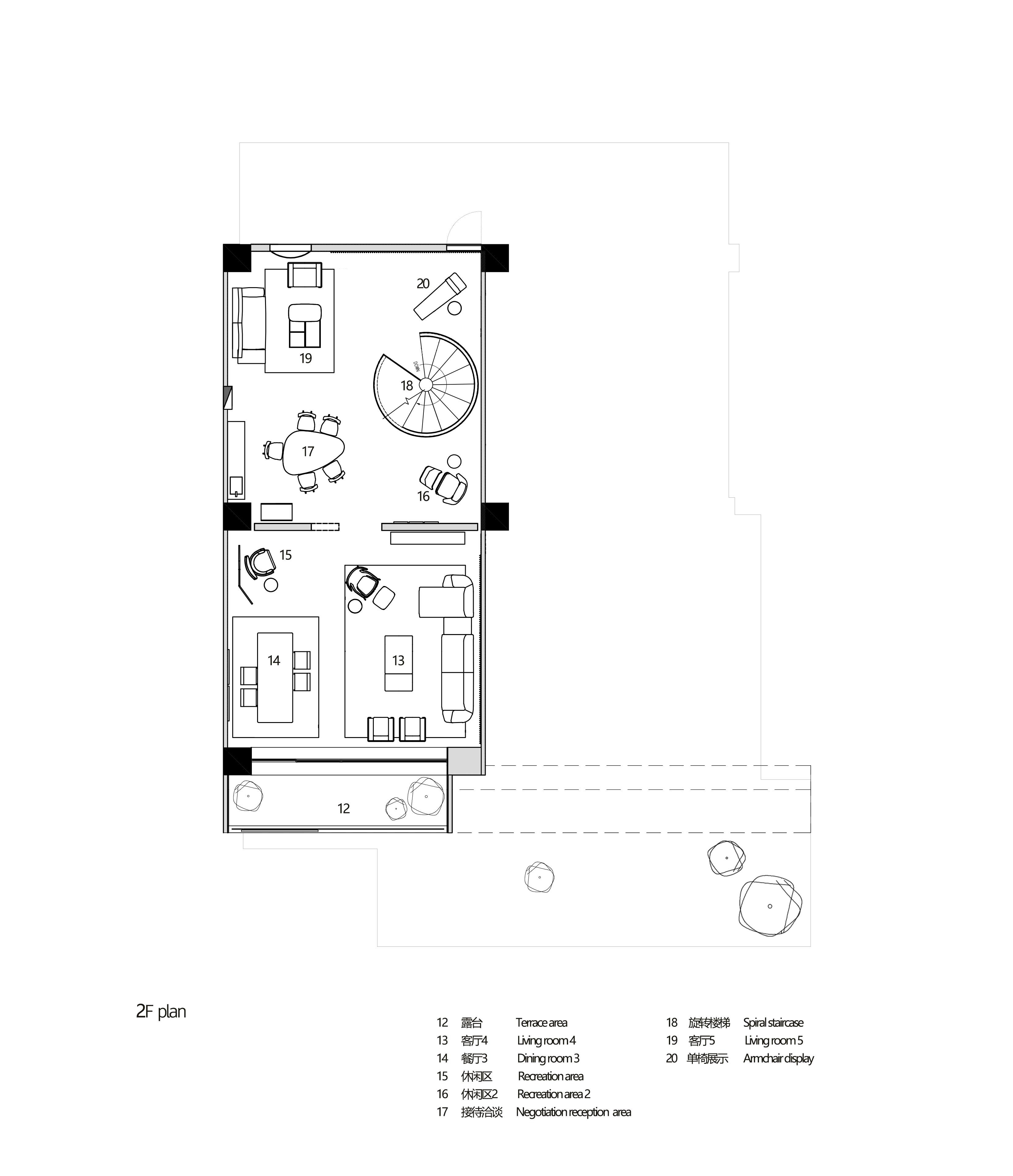
△2F平麵圖
項目信息
項目名稱|Cassina寧波店
項目地點|中國 浙江
項目商體|第六空間DERLOOK(寧波寧穿路店)
完工時間|2021.06
項目客戶|未來生活家LIVING
項目麵積|460平方米
設計公司|正反設計OUTIN. DESIGN
設計主持|王琛 W.C
設計管理|正反OUTIN – R.E.C Team
道具製造|正反OUTIN – R.E.C Team
燈光設計|正反OUTIN – R.E.C Team*雲曦照明
品牌視覺|BLacKSHeeP
陳列設計|四般Sìbān
市場媒體|殺菌
項目攝影|Wen Studio
主要物料|鋁板、清水混凝土、超白玻璃等























































