探索事物於不同角度的發散認知,以相對述平化的方式
Explore the divergent cognition of things from different angles, in a relatively flat way
來闡述其內在諸多的複雜可能性,挖掘更多不同的生活方式探討和對人性的再思考,讓空間更具可考究及情感共鳴的建立…
To elaborate its many complex possibilities, explore more different ways of life and rethink human nature, so that the space can be more tractable and the establishment of emotional resonance…
∇ 選址_瞰圖
相關介紹/
1954年創立於美國德克薩斯州休斯頓市,總占地麵積為500英畝(約202萬平方米),同時又經美國製冷協會AHRI認證,迄今為止是美國最成功的HVAC全空氣係統生產商,始終堅持美國原廠製造,相關市場占有率居美國第一。
其所帶來的是全新的“由享受型向健康型轉變”的家用空調理念。
理想居所應該是對人類理想生活方式的容納。
秩序
於‘間隔’來區分構造
Order
In the ‘interval’ to distinguish the structure
以‘斜向’的格局內切割,來作為動線交織的引入和過渡,切換塊麵構造的同時,於現有格局建立內‘秩序’的變化。
The “oblique” pattern cutting is used as the introduction and transition of the dynamic line interweaving, and the change of the “order” in the existing pattern is established while the block plane structure is switched.
以‘內建造’的方式來嫁接相鄰模塊的脈絡和關係,使其保持獨立性的同時,呼應整體,輔以動線的交織與所建立的互動。
In the way of “internal construction”, the vein and relationship of adjacent modules are grafted, so that it maintains independence while echoing the whole, supplemented by the interweaving of moving lines and the established interaction.
以獨立‘盒體’搭建的方式來連接抬高處,底部懸空處理,內置泛光的形式來強化相鄰層次的關係,半高人視高度以下,以外凸的玻璃材質來‘虛化’分區的界限,使其建立更多的關聯可能性。
An independent “box body” is built to connect the elevation, the bottom is suspended, the form of built-in flood light to strengthen the relationship between adjacent levels, the semi-high human eye height below, the convex glass material to “blur” the boundaries of the partition, so that it can establish more correlation possibilities.
入戶後的櫃體采用半弧麵的方式來弱化進門後的視覺厚重感,借由形體來引導行走的動線方式,轉而接至抬高區的外凸部分,四周保留原有結構的扇形構造,曲徑視覺至動線的環繞。
After entering the home, the cabinet adopts a semi-arc to weaken the visual weight after entering the door, guides the walking line by the form, turns to the convex part of the raised area, retains the fan structure of the original structure around, and the curved vision is surrounded by the moving line.
有別於‘私宅’方向的思路外散,對於商空項目來講,至關重要,打開各自獨立存在的功能位麵,使其建立更多的維係,不止於功能使用及空間階段的體驗,更傾向創造更多的‘定位屬性’探討和碰撞,跳脫私宅的‘獨立功能塊麵’而至整體性空間輸出,這點尤為重要,也是我們對於兩者的定位和區分理解。
Different from the “private house” direction of thinking, for the commercial space project, it is crucial to open their independent functional plane, so that it can establish more maintenance, not only functional use and spatial stage experience, but also more inclined to create more “positioning attributes” discussion and collision, skip the private house “independent functional block plane” to the overall spatial output, which is particularly important. It is also our understanding of the positioning and differentiation of the two.
場所
由塊麵‘秩序’來建立界限,結合功能使用的形體切換,使其‘圍合’至獨立空間的建立。
Venues
The boundary is established by the block surface ‘order’, combined with the functional use of the form switch, so that it ‘encloses’ to the establishment of independent space.
由側至右向的動線引導,借助櫃體的‘遮掩’來引入過區的理念波及,讓穿行動線以置邊緣化的形式來出現,製造內場景的交互及融合。
Guided by the moving line from the side to the right, the concept of passing the area is introduced with the help of the “cover” of the cabinet body, so that the passing line appears in the form of marginalization, and the interaction and integration of the inner scene are created.
整體至於抬高處的層次嫁接,以‘功能櫃體’來作為邊界的強化,使其建立起內輪廓的使用區域,釋放獨立區塊的密閉性,以開敞來環繞自由的流動。
As a whole, the layer grafting at the elevation is strengthened by the “function cabinet” as the boundary, so that it establishes the use area of the internal outline, releases the tightness of the independent block, and opens up to surround the free flow.
尺度
由‘比例’作為內開間的度量尺。
Dimensions
The “proportion” is used as the measuring scale of the inner space.
由近至深的尺度縮減再有擴,製造漸進的壓縮式心理轉換,接至緩衝區,作為分區之間串聯動線的交彙,而延伸至回形廊道的流暢。
The scale from near to deep is reduced and then expanded, creating a gradual compression psychological transformation, connecting to the buffer zone, as the intersection of the series of linkage lines between the partitions, and extending to the flow of the circular corridor.
頂部采用‘井’字金屬框架的形式來處理,區別牆地麵的邏輯而獨立存在,櫃體高度不到頂的‘間隔’來完整燈光的照度區域。
頂部櫃體的橫板采用金屬的形式來連接彼此相鄰的櫃體塊麵,搭至打印區的翻邊形體,使其鬆散的體塊元素歸於整體,且又可單獨存在。
The top is processed in the form of a “well” metal frame, which distinguishes the logic of the wall ground and exists independently, and the “interval” of the cabinet height does not reach the top to complete the illumination area of the light.
The horizontal plate of the top cabinet adopts the form of metal to connect the adjacent cabinet block surfaces to the flanged shape of the printing area, so that the loose block elements belong to the whole and can exist separately.
作為體塊之間的‘嫁接’,於盒體而置於台階之上,采用底部懸空的結構處理,使其以‘浮’的介質半聯通相鄰分區,實現對應錯層的視覺落差。
As the “graft” between the blocks, the box body is placed on the step, and the structure of the bottom is suspended, so that it is semi-connected to the adjacent partition with the “floating” medium to achieve the visual drop corresponding to the split-level.
考慮層高本身具備的優勢,內置雙層抬高來上延地麵與牆麵的關係梳理,連接且分斷的同時,優化空間層麵的視覺錯落秩序,以此來漸進流線的行走。
Considering the advantages of the height itself, the built-in double-layer elevation can sort out the relationship between the ground and the wall, connect and break at the same time, optimize the visual dislocation order of the spatial level, so as to gradually walk the streamline.
切入
以‘物件’來內置格局
Cut In
Use ‘objects’ to build patterns
以‘盒體’的概念切入來作為置於空間格局內的‘障礙體’,讓其圍繞而交錯,借由空洞開啟的形式來實現視線和心理感受的‘窺探視’欲望。
The concept of “box body” is introduced as the “obstacle body” placed in the spatial pattern, so that it is surrounded and staggered, and the desire of “prying eyes” of sight and psychological feelings is realized through the form of empty opening.
茗茶區采用‘井字格柵’的方式來延續天花的元素走向,底部內置景觀區的位麵,獨立牆,頂地麵的位麵的獨立存在,借助原有結構的斜麵走向,製造‘斜向壓縮’視角的體驗感受。
The tea area adopts the way of “tic-tac-toe grid” to continue the direction of the elements of the ceiling. The level of the built-in landscape area at the bottom, the independent wall, and the level of the top ground exist independently. With the inclined direction of the original structure, the experience of “oblique compression” perspective is created.
木作盒體以半搭接的方式連接抬高區域,外搭部分以外凸部分的結構來作為半承受裝飾構件,其他均保留原有的深淺結構部分,輔以燈光層次的二次強化分層。
The wood box body is connected to the elevating area in a half-lap way, and the structure of the outer lap part and the outer convex part is used as the semi-bearing decorative member, and the other parts retain the original deep and shallow structure part, supplemented by the secondary strengthening layering of the light level.
以結構作為呼應整體格局的線引,和諧整體後的再局部‘破壞’,以‘窗口’的形式來實現分區之間所建立的微妙關係,使其作為建築體的概念來進行思考。
The structure is used as the line guide that echoes the overall pattern, and the local “destruction” after the harmony of the whole is realized in the form of “window” to realize the subtle relationship established between the partitions, so that it is considered as the concept of the building body.
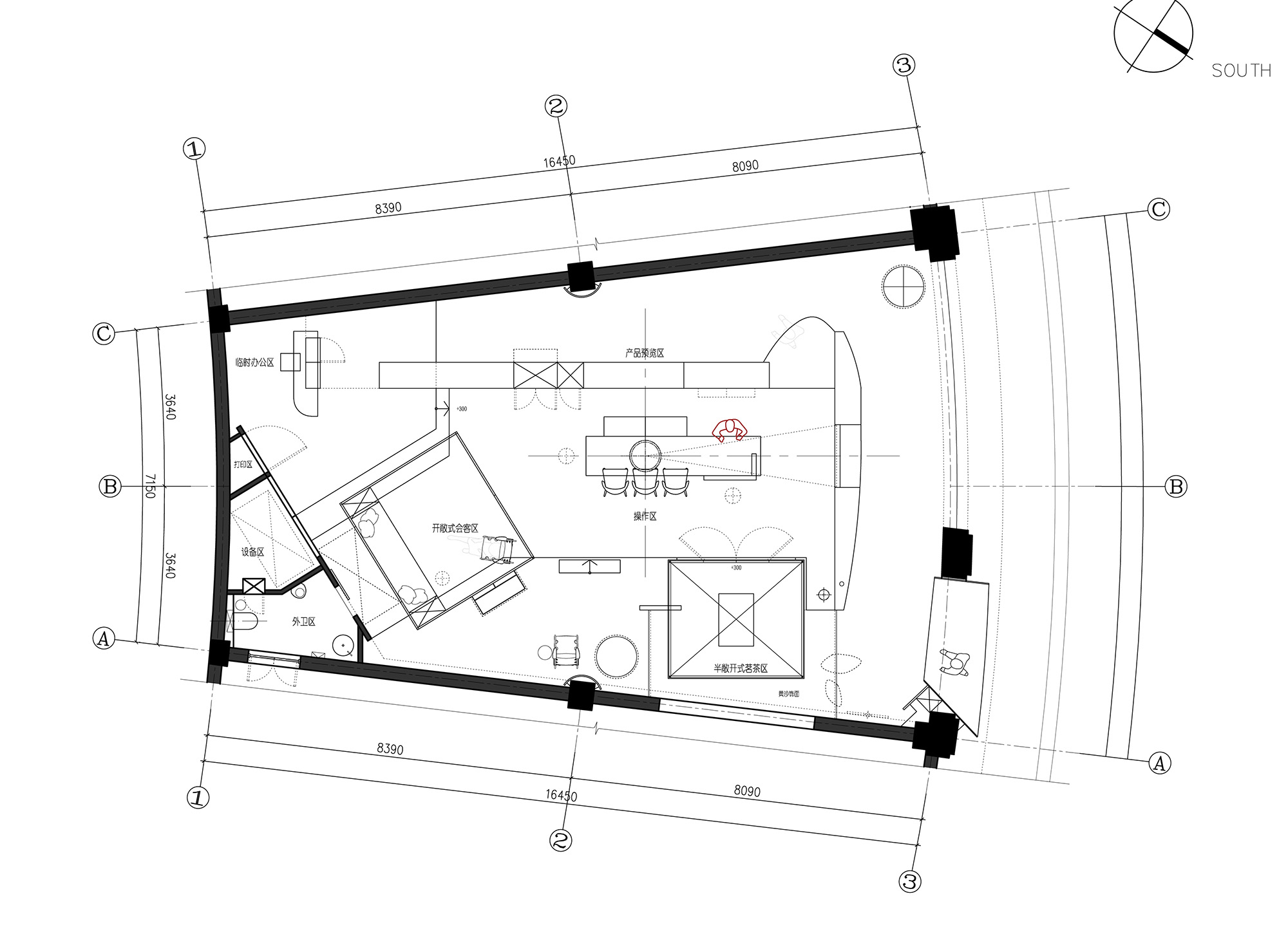
∇ 平麵圖
項目信息
項目名稱:Goodman 全空氣係統_瑞安店
Project name: Goodman All Air Systems _ Rui ‘an Store
項目地址:浙江省,溫州市,瑞安市
Project Address: Ruian, Wenzhou City, Zhejiang Province
主持設計師:蘭斯,林思思
Host designer: Lance Lindse
主創及設計團隊:隹聿設計工作室
Creative and design team: Zhui yu Studio
工程負責:夏兆武
Project leader: Xia Zhaowu
建築麵積:165 m²
Building area: 165 m²
項目完成時間:2023.9
Project Completion Time / 2023.8
攝影及剪輯:WM STUDIO
Plane Photography: WM STUDIO












































