Synergy Hall 是屬於 Synergist 的空間名稱。Synergist 和 Synergy Hall 都是新語(讀作 syn-er-gy)的同音字,鬆散地翻譯為“創造和討論一種新的空間語言”。在設計這個空間時,過渡空間的設計既體現了從一個空間到另一個空間的身體運動,也體現了一種心理狀態的轉變。
過渡空間的設計是:當一個人走過時,對於那些可能持續幾秒鍾的幾個步驟,人們知道自己被移動到了一個新的空間。在這方麵,過渡空間是冥想和哲學的。它既輕又深。在設計空間時,賦予可變性意味著適應各種動作,為空間增添樂趣元素,並使交叉角色屬於不同的時間框架。傳遞可變性需要分析行動、觀察心理狀態、技術解決方案和審美妥協。45度的鏡子作為一個可變元素,可以感知過渡空間90度角牆壁之外的東西,覆蓋服務空間不必要的視覺暴露,並確定整個空間的印象。
過渡空間的地板規劃為墊腳石式地板,在石頭之間的空間填充火山岩。當一個人毫不費力地向前邁出一步時,無需調整自己的步伐,注意到墊腳石之間的火山岩,昏暗的光線使人專注於自己的腳步。當一個人從外部進入空間並感知空間的變化時,就會發生自然的心理轉變。在設計工作空間時,緩衝空間與實際完成工作的空間一樣重要。
可以以多種模式完成工作並激發不同方向的思想的空間,但絕不需要強迫使用者參與行動。這些空間在工作和日常生活之間的邊界上充當緩衝區。緩衝空間是茶室。獨自一人,茶室是一個冥想的空間。茶室被規劃為一個多功能空間,不僅可以容納功能,還可以容納行動、目的和時間。
在規劃茶室時,空間的可變性是必不可少的。一個關鍵的考慮因素是可擴展性,以便該空間不僅可以容納會議和頭腦風暴會議,還可以容納講座、研討會和其他項目。解決方案是在韓國傳統建築的元素中找到的。“Angojigi”門可以向上和向外打開或沿水平軸滑動。通過插入的 Angojigi 門口,團隊室和樣品室的兩個空間擴展並相互重疊,為每個空間增添了功能和樂趣。一塊熨燙石作為一個低台階,使膝蓋更容易爬上茶室。
加入該元素是為了提醒設計師,看似不再有用途的物品可能會找到新的用途。這塊在家裏使用了幾十年的石頭,用於壓皺和軟化織物,在 Synergy Hall 中找到了新的用途,作為幫助那些起落腳的人的墊腳石。Synergy Hall 的牆壁采用膠合板製成。膠合板表麵在某些空間原封不動地裸露在外,而在其他空間則被厚厚的深色覆蓋。在不同的燈光下顯示相同的材料,空間被賦予了多樣但又統一的感覺。Synergy Hall 將工作空間外的照明保持在最低限度。這樣,由燈光和形式產生的陰影在整個空間中都有更大的存在感,而在陰影活躍的時間裏,人們最能集中注意力。
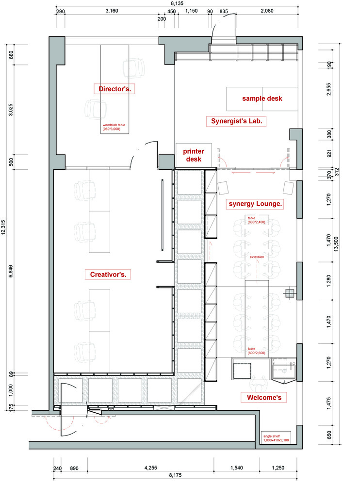
∇ 平麵圖




























