“市中心的社區記憶” Memory
景田是許多老深圳回憶的背景板,也是離中心區最近的老社區。一路之隔,卻有著與CBD完全不同的慢生活節奏和鄰裏氣氛我們兜兜轉轉花費了一年的時間協同客戶選址,慕然回首,就在客戶小時候常與同學放學一路溜達回家的新聞路上。
“我們希望成為這個記憶的一部分” To be a part of the memory
通過門頭懸挑的鋼板,製造出高吧以供消費者小憩,同時也方便了快遞小哥哥的取餐。可以開啟的窗戶最大限度的消解了對外的距離感,獲得了與顧客更親切交流的可能,來來往往的好奇的左鄰右裏也時不時探頭張望,並慢慢成為我們第一第二第三位常客。我們希望用小小的設計,對城市日漸冷清的社區氛圍,做出反抗和補充,通過加強與街區的交流讓我們真正地融入這一個街區——我們站立在這裏,就像我們一直都在,成為社區的微光。
20㎡的社區店 20㎡ community store
關於如何定義僅20㎡的咖啡空間,我們與客戶有過熱切的討論,最終客戶依然堅持在“舒服的社區咖啡”這一立意點——社區關懷是ANNND咖啡一直以來的初衷。這意味著我們不得不放棄更高效和更出彩的“窗口式咖啡”,轉而去研究更緊張的布局,極限的在這個空間中擠出了一個寬度適宜的卡座,並將壓縮掉的儲物空間通過懸垂的方式去補足。
∇ 分解軸測圖
“用細節擁抱客戶” Details
我們選取了不鏽鋼,水刷石去致敬高速發展的深圳進程中不可替代的記憶,以此維持了annnd慣有的“溫暖的酷”。但是在細節上我們用木材去貼近消費者的使用空間,用立麵的弧角和進門抬頭的弧麵去消解銳利感,讓店鋪以擁抱的姿態去歡迎每一個客戶。
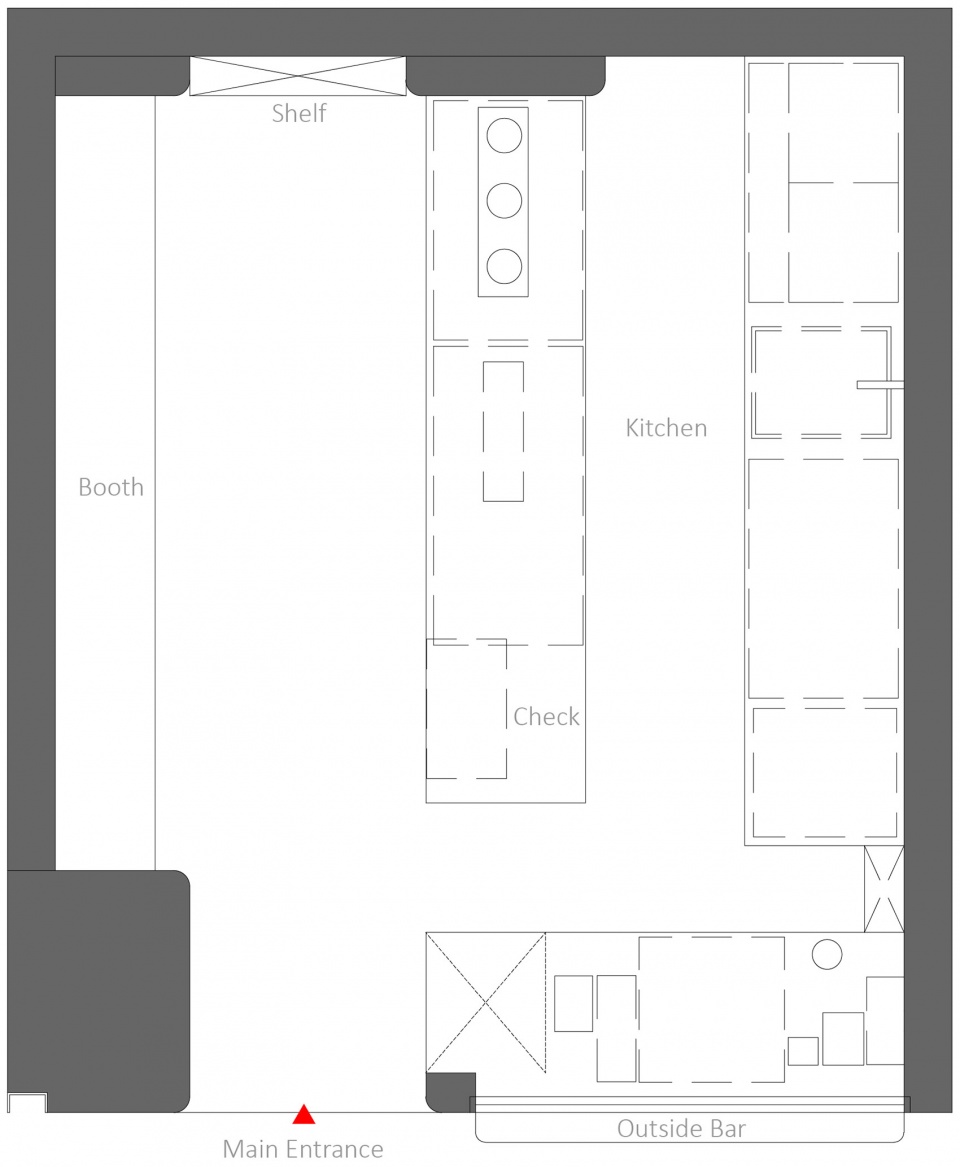
∇ 平麵圖
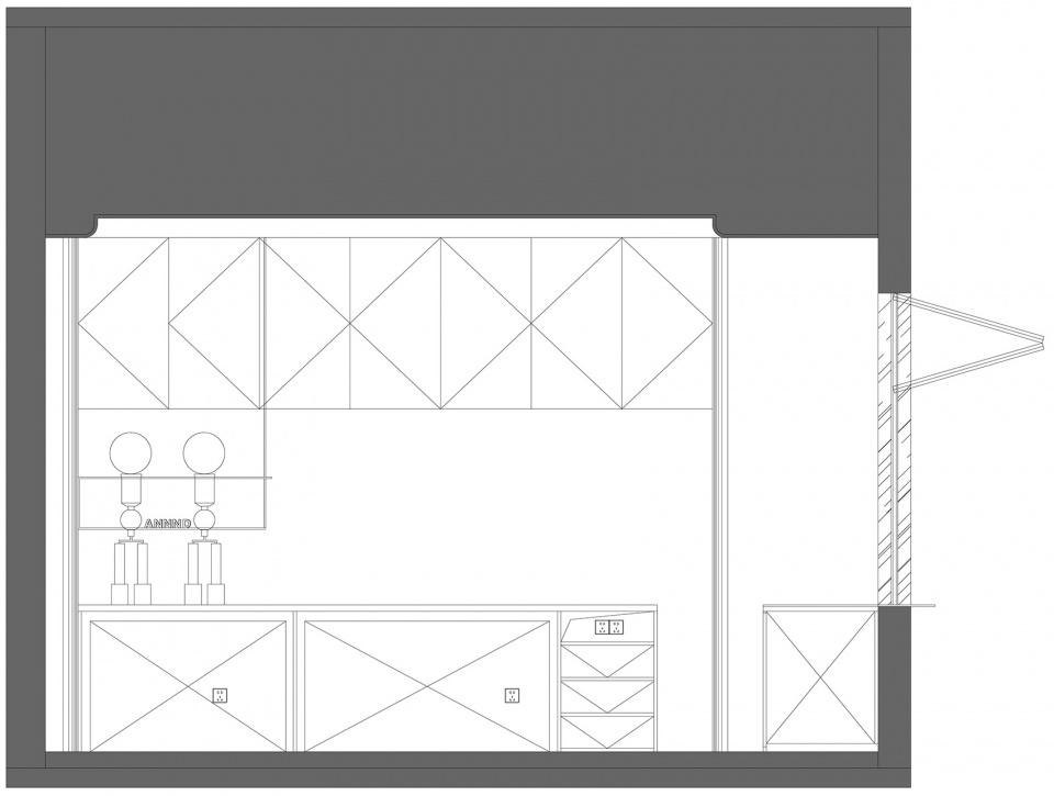
∇ 立麵圖
∇ 剖麵圖
∇ 咖啡機軸測圖
項目信息
項目名稱:Annnd Café
設計方:Ruhaus Studio
微信公眾號:如室建築設計事務所
項目設計&完成年份:2021
主創及設計團隊:王藝儒,朱丹丹。許丹琳。
項目地址:廣東省深圳市福田區新聞路與景田南五街交叉口合正名園二期一號樓19號
建築麵積:20m²
攝影版權:夏同,Guo























