請查收,來自美術館的一束光
“我們生於光。我們通過光感受四季。”——路易斯·康
∇ 室外光與室內空間,outdoor light and indoor space
路易斯·康是建築設計中光影運用的開拓者,他認為空間應該是一個能讓人在精神感受純粹的地方。在這裏,讓一些空間可以是“無限的”,但也有一些空間就應該完全地“有限”。不同光引發空間的不同節奏感,室內空間隨著光環境的變化而產生豐富的表情。
Louis Kang is a pioneer in the use of light and shadow in architectural design. He believes that space should be a place where people can feel pure in spirit. Here, some spaces can be “infinite”, but some spaces should be completely “limited”. Different lights lead to different rhythms of the space, and the indoor space produces rich expressions with the change of the light environment.
∇ 從吧台望向盒子,look at the box from the bar © 吳鑒泉
讓光變得自由又可控製,便成為設計RAyinGallery攝影空間的思考核心。
Making light free and controllable has become the thinking core of designing rayingallery photography space.
∇ 植物與結構,plant and structure © 吳鑒泉
空間與光是不可分離的,因為所有對建築的空間體驗都要有光。即使在完全的黑暗中,僅憑聽、摸或聞所掌握的具體的空間體驗,其實也參照了通過視覺和光線建立的對空間的理解。
Space and light are inseparable, because all the spatial experience of architecture should have light. Even in complete darkness, the specific spatial experience mastered only by listening, touching or smelling actually refers to the understanding of space established through vision and light.
∇ 入口空間,entrance space © 吳鑒泉
商業思維 BUSINESSMIND
本案項目位於太原市萬柏林區,緊鄰萬柏林生態園。項目希望圍繞品牌“留住此刻”,打造一家以故事性來記錄當下生活的攝影空間。“光”是攝影和空間兩個不同藝術領域中相通的元素,攝影就是光的藝術,而對於空間體驗也同樣重要。
The project is located in Wanbailin District, Taiyuan, close to Wanbailin ecological park. The project hopes to build a photography space with a story to record the current life around the brand “keep the moment”. “Light” is a common element in the two different art fields of photography and space. Photography is the art of light, and it is also important for space experience.
∇ 建築立麵,building facade © 吳鑒泉
∇ 軸測圖,axonometric © HOOOLDESIGN
光是組成攝影的重要部分,有光才有影。攝影就是用光來作畫,如何利用光與影的關係來構成影像和影調,是攝影創作中的一大關鍵。
Light is an important part of photography. Only with light can there be shadow. Photography is to draw with light. How to use the relationship between light and shadow to form images and tones is a key in photography creation.
∇ 改造過程,renovation process © HOOOLDESIGN
∇太陽從日出到日落,一分一秒都在改變位置,因此,照射在被攝體上的光也會隨著太陽位置的推移而不斷改變角度。隨著角度的改變,被攝體表麵的質感描寫,陰影的均衡都會直接影響整體的表現效果。
The sun changes its position every minute from sunrise to sunset. Therefore, the light shining on the subject will constantly change its angle with the passage of the sun’s position. With the change of angle, the texture description of the subject surface and the balance of shadow will directly affect the overall performance effect.
∇ 通透的一層大廳,a transparent first floor hall © 吳鑒泉
∇ 貫穿一層的連廊,corridor running through the first floor © 吳鑒泉
∇ 一層大廳回廊,lobby corridor on the first floor © 吳鑒泉
原建築為一個層高8米的鋼結構建築體,設計從光的三原色——“藍、紅、綠”的概念出發,由這三種不能再分解的基本色彩可以組合成無數其他色彩,以這三種顏色作為不同區域空間的主題色,預示著空間未來更多的變化。
The original building is a steel structure building with a height of 8 meters. The design starts from the concept of the three primary colors of light – “blue, red and green”. These three basic colors that can no longer be decomposed can be combined into countless other colors. These three colors are used as the theme colors of different regional spaces, indicating more changes in the space in the future.
∇ 另一側大廳視角,view of the hall on the other side © 吳鑒泉
∇ 視覺互動,visual interaction ©吳鑒泉
∇ 回廊細節,ambulatory details ©吳鑒泉
真正的空間體驗都具有身體性和多重感知性。每個引人注目的空間和場所勢必都有它獨具特色的光,而光通常也是最能直接調節情緒的空間特性。
The real spatial experience is physical and multi perceptual. Every eye-catching space and place is bound to have its unique light, and light is usually the spatial characteristic that can directly regulate emotion.
∇ 回廊內部窗口,cloister interior window ©吳鑒泉
設計方案從“來自美術館的一束光”為主題,在空間上讓光為建築的體量、空間和表麵賦予性格和表現力,顯示出材料的形狀、重量、硬度、肌理、溫度、光滑度、溫度等方麵,在拍攝的同時以光為主題的空間也能幫助靈感不斷迸發。
The design scheme takes “a beam of light from the art museum” as the theme, and allows light to give character and expressiveness to the volume, space and surface of the building in space, showing the shape, weight, hardness, texture, temperature, smoothness, temperature and other aspects of the material. While shooting, the space with light as the theme can also help the continuous burst of inspiration.
∇ 公共區域內部,Inside the public area ©吳鑒泉
光控製著生物體的生命進程,甚至人類的某些激素活動也依賴於光。光影響著我們的情緒、活躍性和體能水平。
Light controls the life process of organisms, and even some human hormone activities depend on light. Light affects our mood, activity and physical level.
雖然光通常被理解為一種純視覺現象,但它其實還與觸覺感知聯係在一起。在設計中,創造出一種捕捉並留住光線的空間,以便所有人可以用身體來感受,這是一種對“眼睛會觸摸”和“眼睛會感受”的理解和實現。當你睜開眼睛並允許這種感覺發生時,觸覺就從眼睛裏跑出來,就用手去摸一樣。
Although light is usually understood as a pure visual phenomenon, it is also associated with tactile perception. In the design, create a space to capture and retain light so that everyone can feel it with their body, which is an understanding and Realization of “eyes can touch” and “eyes can feel”. When you open your eyes and allow this feeling to happen, touch comes out of your eyes, just touch it with your hand.
∇ 室內“盒子”,Indoor “box” ©吳鑒泉
建築語言 ARCHITECTURALLANGUAGE
設計構思以展示作為所有空間的內核,從“光之畫廊”搭建整個空間形態,通過建築語言引入室內,形成高辨識度的視覺效果和空間記憶。設計上打破常規適用區域“一室一用”,使其滿足“一室多用”,賦予空間多重屬性,更大限度的促進空間與人的互動性,形成品牌在空間上的記憶。
The design concept takes exhibition as the core of all spaces, builds the whole space form from the “Gallery of light”, and introduces it into the interior through architectural language to form a highly recognizable visual effect and spatial memory. In terms of design, break the conventional applicable area of “one room and one use”, make it meet the requirements of “one room and multiple uses”, endow the space with multiple attributes, promote the interaction between space and people to a greater extent, and form the memory of the brand in space.
∇ 從廊道看向圓形公共區,from the corridor to the circular public area ©吳鑒泉
讓空間沐浴在一片方向不定的光線中,使光源變得捉摸不透。
Let the space bathe in a piece of light with uncertain direction, so that the light source becomes elusive.
∇ 圓形公共區,circular public area © HOOOLDESIGN
∇ 廊道踏步,corridor step © HOOOLDESIGN
通過前廳吧台對麵圓形公共區,可以看到懸挑的空間盒子,彼此獨立但又充滿一定的私密感。順著台階往裏走,立刻置身於一個層次更加複雜的空間之中,紅色配合燈光將空間點亮。每個空間都設有開口,保證其功能的同時又保留體驗的趣味。
Through the circular public area opposite the front bar, you can see the cantilevered space boxes, which are independent of each other but full of a certain sense of privacy. Walking down the steps, you will immediately be in a more complex space, and the red light will light up the space. Each space is equipped with openings to ensure its function while retaining the interest of experience.
∇ 選片區,select photo area © HOOOLDESIGN
在一層的公共空間中,光妥帖的透過結構的開口灑在區域內,通過設計的手法將建築體塊進行融合與穿插,讓人的活動在此更加多樣,設計將室外交往活動中最基礎的人際交往方式(散步、停留、小坐、觀賞、傾聽、交談)在室內進行規劃,保障最基礎的活動才能自然而然變化為更大型、更複雜的活動。
In the public space on the first floor, the light is properly sprinkled in the area through the opening of the structure. The building blocks are integrated and interspersed through the design method to make people’s activities more diverse. The design plans the most basic interpersonal communication methods (walking, staying, sitting, viewing, listening and talking) in outdoor communication activities indoors, Only by ensuring that the most basic activities can naturally change into larger and more complex activities.
∇ 多功能區,multi function area © HOOOLDESIGN
∇ 多功能區,multi function area © HOOOLDESIGN
設計中,不對光線進行均勻分布,增強場所感和私密感,營造出一種撫慰人心的拍攝體驗。光透過玻璃照在牆壁上,仿佛放慢了速度,使太陽光和照明設施在弧形牆的表麵和邊緣之間頑皮地跳躍反射。在牆壁中設計的狹縫,是為了把光擠壓成具有方向性的薄片,使它變成觸不到的一層刀刃,從而切斷空間中的黑暗。
In the design, the light is not evenly distributed to enhance the sense of place and privacy, creating a soothing shooting experience. The light shining on the wall through the glass seems to slow down, making the sunlight and lighting facilities jump and reflect playfully between the surface and edge of the arc wall. The slit designed in the wall is to squeeze the light into a directional sheet and turn it into an untouchable blade, so as to cut off the darkness in the space.
∇ 傍晚時分的二層廊道,the second floor corridor in the evening © HOOOLDESIGN
在空間中放置的“球”,運用弧形的白色表麵來發射光線,這些圓形轉角的表麵所創造出的明暗對比為光賦予了一種體驗上的物質性和造型感,也增強了光的在場感。這是經過鑄造的光,通過“球”讓光具有了物質的體征。
The “ball” placed in the space uses the arc-shaped white surface to emit light. The light and dark contrast created by the surface of these circular corners gives the light an experiential sense of materiality and modeling, and also enhances the sense of presence of the light. This is the cast light, which has the physical sign through the “ball”.
∇ 光影不明顯的二層廊道,the corridor on the second floor with no obvious light and shadow © HOOOLDESIGN
空間體驗 SPATIALEXPERIENCE
光隻有被包含在空間中,或通過它所照亮的表麵而得以具化時,它才能使人在體驗中的情感上感受到它的存在。在二樓的走道裏,從外立麵透進的自然光讓人感覺像是一件上天賜予過道的美好禮物,在黯淡背景的襯托下,幻化成了一幅氛圍感十足的油畫。
Only when light is contained in space or embodied through the surface it illuminates can it make people feel its existence in the emotion of experience. In the corridor on the second floor, the natural light penetrated from the facade makes people feel like a beautiful gift given by God to the aisle. Against the dark background, it turns into an oil painting with full atmosphere.
∇ 一、二層視覺互動,visual interaction © HOOOLDESIGN
設計時也在建築內部引入光線,利用窗洞的剖麵性質,在解決視覺舒適度的同時創造出一種神聖的照明體驗。牆體的厚實感、窗洞的深度感,以及窗洞的剖麵形式結合在一起,共同創造出一幅豐富多變的光影圖畫。
In the design, light is also introduced into the interior of the building, and the sectional nature of the window opening is used to create a sacred lighting experience while solving the visual comfort. The thickness of the wall, the depth of the window opening and the section form of the window opening are combined to create a rich and changeable light and shadow picture.
∇ 二層廊道休息區,corridor rest area on the second floor © HOOOLDESIGN
∇ 二層化妝區,makeup area on the second floor © HOOOLDESIGN
二層作為主要的拍攝區域,通過一大一小兩個體塊作為主要拍攝區域來進行使用。在這個縱向的空間裏,設計將空間挑高,讓拍攝也可以更加“自由”。半私密性的空間結構,讓拍攝活動也可以進行展示,讓等候區的客人也可以提前了解拍攝流程。
The second floor is the main shooting area, which is used by one large and one small block as the main shooting area. In this vertical space, the design will raise the space, so that shooting can be more “free”. The semi private space structure allows the shooting activities to be displayed, and the guests in the waiting area can also understand the shooting process in advance.
在此案例中,光線通過淺灰色水泥頂麵得以強調,在二層公共天井區域中,體塊間的融合、穿插、分離與疊加,讓空間靈活且賦予變化。在與陰影和黑暗發生關係的過程中,光的價值和情感力量都獲得了提升。
In this case, the light is emphasized through the light gray cement top surface. In the public patio area on the second floor, the integration, interleaving, separation and superposition between blocks make the space flexible and changeable. In the process of relationship with shadow and darkness, the value and emotional power of light have been improved.
∇ 二層洗手間,bathroom on the second floor © HOOOLDESIGN
為了保證空間的連續,在設計上避免掉漫長而筆直的步行線路,蜿蜒和富於變化的小路為空間增添趣味,豐富的過渡空間使不同形式和氛圍的空間加以融合,為情境之間創造無形的秩序。設計利用中國傳統匠師的手法去營造空間氛圍,讓人產生“遊”的欲望,身處其中也能領略到空間的豐富。
In order to ensure the continuity of space, long and straight walking lines are avoided in the design. Winding and changing paths add interest to the space, and rich transition spaces integrate the spaces of different forms and atmospheres to create an invisible order between situations. The design uses the techniques of traditional Chinese craftsmen to create a space atmosphere, which makes people have the desire to “swim”, and they can enjoy the richness of space when they are in it.
∇ 一、二層視覺互動,visual interaction © HOOOLDESIGN
∇ 拍攝區,photo area © HOOOLDESIGN
通過動線的規劃,將人際交往的接觸強度隨著空間體驗逐步遞增。不僅通過空間區域設計使探店、谘詢、拍攝等不同人群的活動保持了私密性,也將空間邊界柔性處理,去掉了傳統意義上的門,也以建築體塊的視覺差做了半私密的處理,讓空間得已“流動”。設計希望以一種輕鬆自在的方式讓相互交流有更多的機會。
Through the planning of moving line, the contact intensity of interpersonal communication will gradually increase with the spatial experience. Not only through the space area design, the activities of different groups such as shop exploration, consultation and shooting are kept private, but also the space boundary is handled flexibly, the door in the traditional sense is removed, and the semi private treatment is made with the poor vision of the building block, so that the space has been “flowing”. Design hopes to provide more opportunities for mutual communication in a relaxed way.
分析圖 ANALYSISDIAGRAM
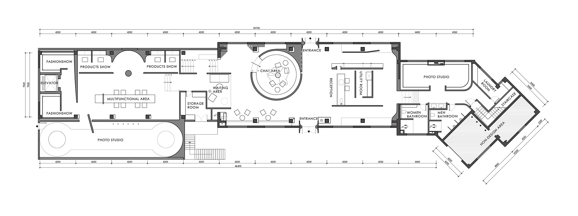
∇ 一層平麵圖,first floor plan © HOOOLDESIGN
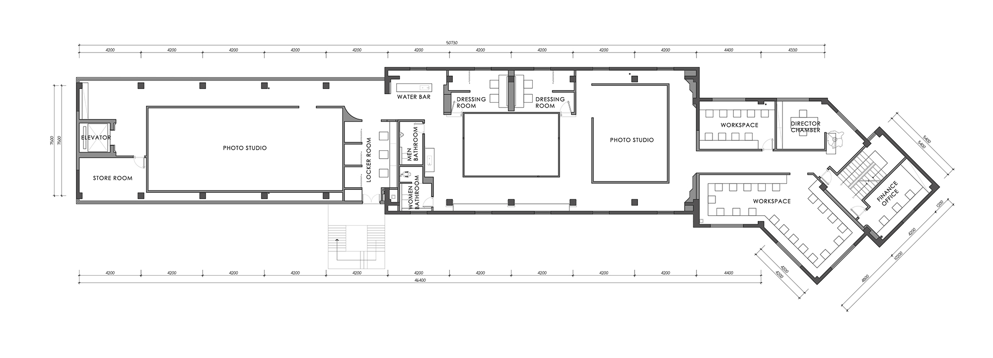
∇ 二層平麵圖,second floor plan © HOOOLDESIGN
∇ 三層平麵圖,third floor plan © HOOOLDESIGN
光為空間注入生命力並將物質世界融入影像之中
Light injects vitality into space and integrates the material world into images
項目信息
項目名稱:RAyinGallery
項目區位:山西太原
設計公司:HOOOLDESIGN事務所
主創設計師:韓磊
設計師團隊:荊超、黃德斌、鄭天陽、李靜怡、智鵬飛
照明團隊:LST商業照明設計
藝術壁材:JCC精創色彩設計中心
產品設計:艾諾一宅·係統家具
項目麵積:1400平方米
設計起止日期:2021.1
完工時間:2021.5
主要材料:水磨石、JCC肌理漆
業主名稱:任雅楠
項目攝影:吳鑒泉
Project Name: RAyinGallery
Project address: Taiyuan,Shanxi
Design company: HOOOLDESIGN STUDIO
Main designer: Han Lei
Assistant designers: JiLL 、Huang Debing 、Toren Tseng、Li Jingyi、Zhi Pengfei
Lighting Team:LST Lighting Design
Art Wall Material:JC COLOR DESIGN CENTRE
Product Design:AINO HOME
Project area: 1400m2
Design start and end date: 2021.1
Completion time: 2021.5
Main materials: terrazzo、 JCC texture paint
Name of owner: Ren Yanan
Project photographer: Wu Jianquan

















































